Connect

2777 Kendall Street, Wheat Ridge, CO – $1,190,000

  • 5 Beds
  • 4 Baths
  • 3,748 Sqft
  • .6 Acres
  • 5 Beds
  • 4 Baths
  • 3,748 Sqft
  • .6 Acres

New Search X

2777 Kendall Street

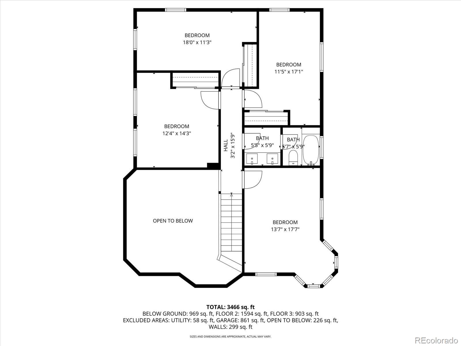
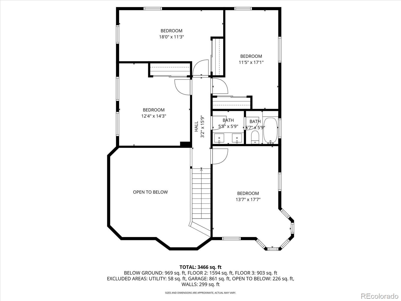
Welcome to this beautifully updated 5-bedroom, 4-bathroom home in the heart of Wheat Ridge, offering nearly 3,750 square feet of living space on a generous 0.6-acre lot. Built in 1998 and thoughtfully remodeled in 2025, this residence combines timeless curb appeal with modern upgrades. The main level features soaring ceilings, a spacious great room with a fireplace, and a gourmet kitchen with soft close cabinetry, quartz countertops, and luxury Forna appliances. The living area flows seamlessly to the patio and expansive backyard, perfect for entertaining. The primary suite is conveniently located on the main floor, complete with dual closets and a luxurious en suite bath with double vanities and a heated bidet seat. Upstairs, you’ll find three large bedrooms, each with built-in desks, plus a versatile bonus room ideal for a home office, playroom, or library. The finished walk-out basement offers a second kitchen, living area, and private bedroom with bath—perfect for multigenerational living, an au pair, or short-term rental income. Additional highlights include two home offices, a three-car oversized garage with RV parking, two fireplaces, and multiple “secret rooms” that add charm and character. The landscaped yard provides SO MUCH space for recreation, gardening, and gatherings, while the location offers quick access to Edgewater Market, Sloan’s Lake, and downtown Denver. This is a rare opportunity to own a spacious, move-in ready home on a large lot in a highly desirable Wheat Ridge neighborhood.

Listing Office: eXp Realty, LLC

Essential Information

  • MLS® #4688941
  • Price$1,190,000
  • Bedrooms5
  • Bathrooms4.00
  • Full Baths1
  • Half Baths1
  • Square Footage3,748
  • Acres0.60
  • Year Built1998
  • TypeResidential
  • Sub-TypeSingle Family Residence
  • StyleVictorian
  • StatusPending

Community Information

  • Address2777 Kendall Street
  • SubdivisionEdgewater
  • CityWheat Ridge
  • CountyJefferson
  • StateCO
  • Zip Code80214

Amenities

  • Parking Spaces4
  • ParkingConcrete, Oversized
  • # of Garages3

Utilities

Electricity Connected, Internet Access (Wired), Natural Gas Connected

Interior

  • HeatingForced Air, Natural Gas
  • CoolingCentral Air
  • FireplaceYes
  • # of Fireplaces2
  • StoriesTwo

Interior Features

Audio/Video Controls, Built-in Features, Eat-in Kitchen, High Ceilings

Appliances

Convection Oven, Dishwasher, Disposal, Gas Water Heater, Microwave, Range, Range Hood, Refrigerator

Fireplaces

Basement, Gas, Great Room, Insert

Exterior

  • RoofShingle
  • FoundationConcrete Perimeter, Slab

Exterior Features

Dog Run, Garden, Private Yard, Rain Gutters

Lot Description

Landscaped, Many Trees, Sprinklers In Front, Sprinklers In Rear

Windows

Double Pane Windows, Egress Windows

School Information

  • DistrictJefferson County R-1
  • ElementaryLumberg
  • MiddleJefferson
  • HighJefferson

Additional Information

  • Date ListedSeptember 27th, 2025

Listing Details

  • eXp Realty, LLC
Please provide a valid email address.

Terms and Conditions: The content relating to real estate for sale in this Web site comes in part from the Internet Data eXchange ("IDX") program of METROLIST, INC., DBA RECOLORADO® Real estate listings held by brokers other than RE/MAX Professionals are marked with the IDX Logo. This information is being provided for the consumers personal, non-commercial use and may not be used for any other purpose. All information subject to change and should be independently verified.

Copyright 2025 METROLIST, INC., DBA RECOLORADO® -- All Rights Reserved 6455 S. Yosemite St., Suite 500 Greenwood Village, CO 80111 USA

Listing information last updated on December 11th, 2025 at 4:03pm MST.