Connect

4812 S Cedar Road, Evergreen, CO – $599,000

  • 3 Beds
  • 2 Baths
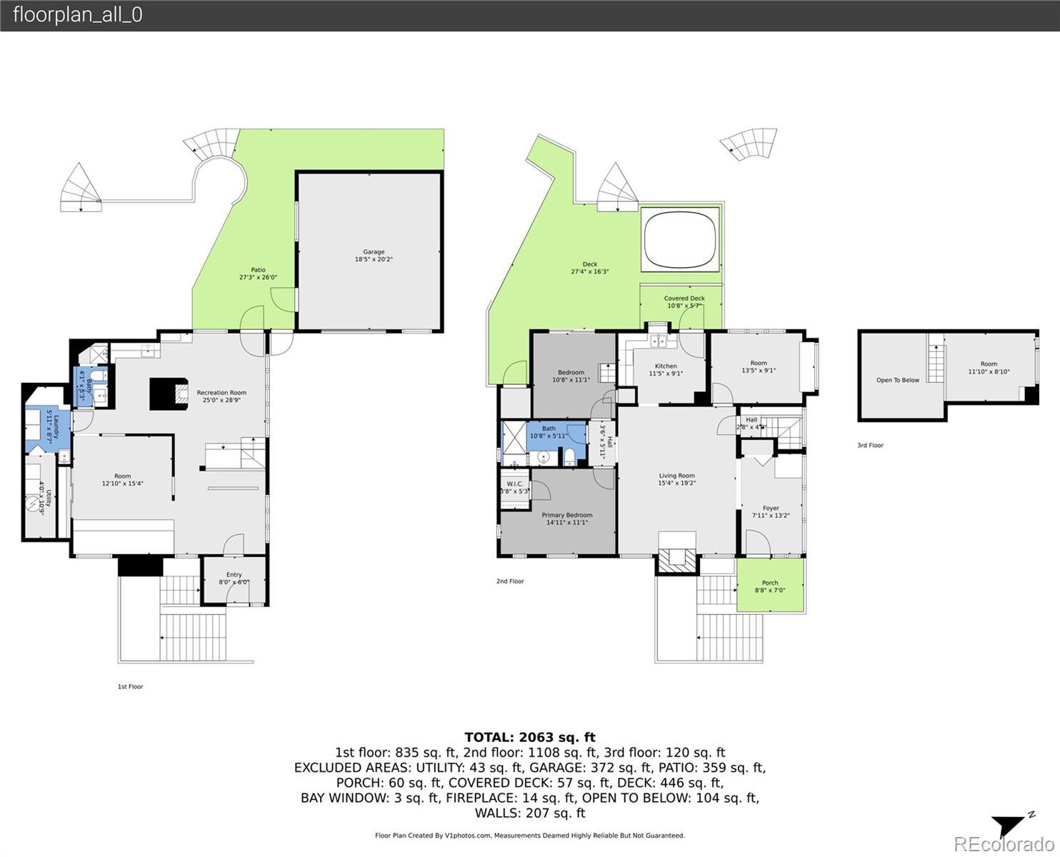
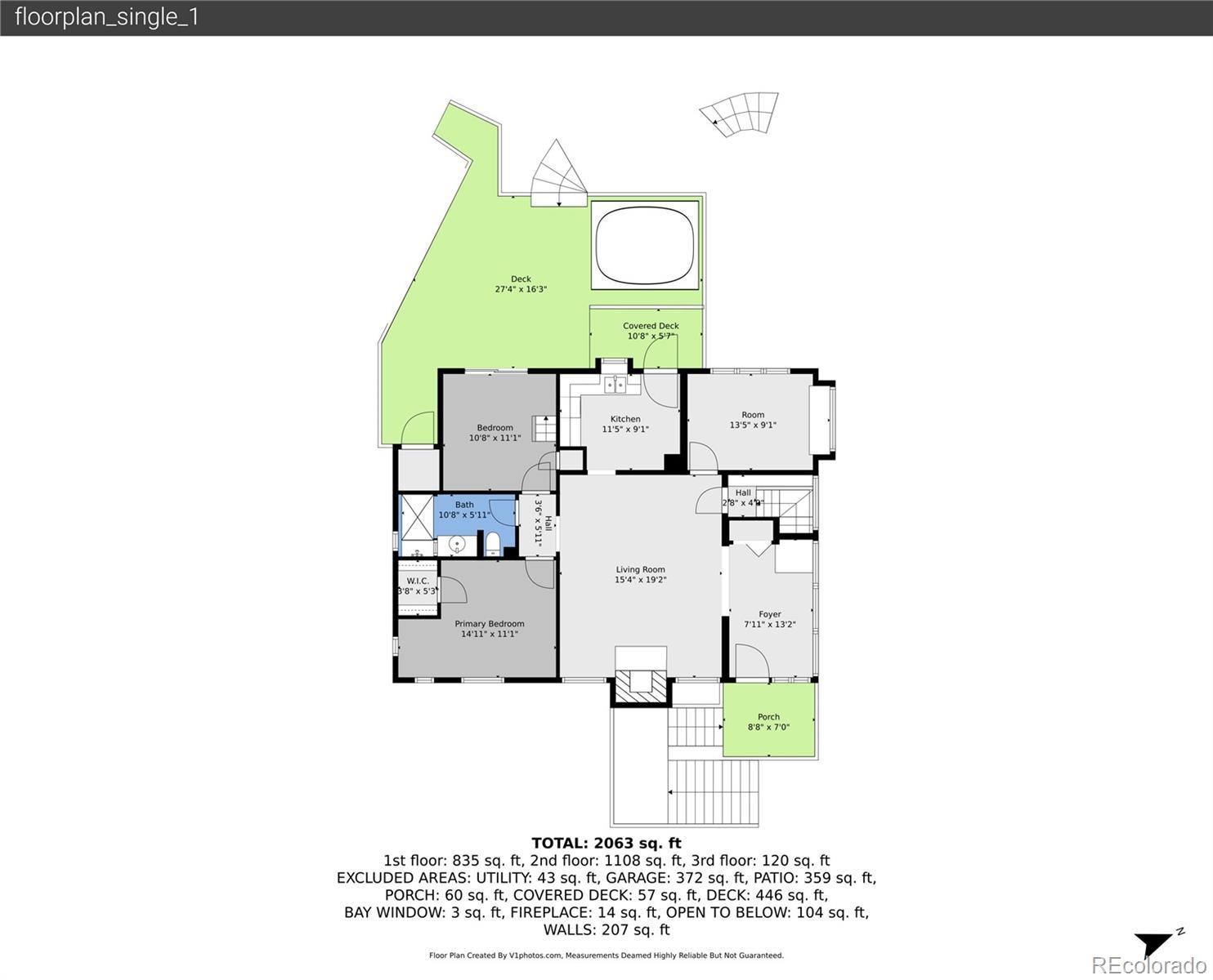
  • 2,082 Sqft
  • .2 Acres
  • 3 Beds
  • 2 Baths
  • 2,082 Sqft
  • .2 Acres

New Search X

4812 S Cedar Road

Built in 1941 and sitting right in the heart of the Evergreen Lake community, this one is for the visionaries. Let’s be clear. This is not the house you buy because it is perfect. This is the house you buy because it could be. If you have ever walked around Evergreen Lake and thought, “I want to live here,” this is your chance. You are walking distance to the lake and to downtown Evergreen. Coffee, concerts, skating in the winter, paddleboards in the summer, dinner with friends without ever moving your car. Location like this rarely opens up, especially at this price point and with this much upside. The home itself has 3 bedrooms, 2 bathrooms, an oversized one car garage, city water and sewer, and a great usable yard. The bones are there. The charm is there. The opportunity is absolutely there. But you need vision. Bring your contractor. Bring your designer. Bring your imagination. This is not for the faint of heart. It needs someone who can see past what is and lean into what could be. When you are done, you will have a very cool house in a very cool location that people will envy for decades. Because this property is all about the location. And you cannot renovate location. The listing agent must be present for all showings. Please schedule with ample notice and be sure to review the Seller’s Property Disclosure prior to booking your appointment. So much potential wrapped up in a 1941 classic in one of Evergreen’s most loved neighborhoods. If you are ready to create something special, this might just be your project.

Listing Office: Keller Williams Foothills Realty

Essential Information

  • MLS® #4702922
  • Price$599,000
  • Bedrooms3
  • Bathrooms2.00
  • Full Baths1
  • Square Footage2,082
  • Acres0.20
  • Year Built1941
  • TypeResidential
  • Sub-TypeSingle Family Residence
  • StyleCottage
  • StatusComing Soon

Community Information

  • Address4812 S Cedar Road
  • SubdivisionMary N Williams Estate
  • CityEvergreen
  • CountyJefferson
  • StateCO
  • Zip Code80439

Amenities

  • Parking Spaces2
  • ParkingAsphalt
  • # of Garages1
  • ViewWater

Utilities

Electricity Connected, Natural Gas Connected

Interior

  • Interior FeaturesEntrance Foyer, High Ceilings
  • AppliancesGas Water Heater, Microwave
  • HeatingForced Air
  • CoolingNone
  • FireplaceYes
  • # of Fireplaces2
  • StoriesMulti/Split

Fireplaces

Basement, Family Room, Wood Burning

Exterior

  • Lot DescriptionCorner Lot, Level
  • WindowsSkylight(s)
  • RoofComposition

Exterior Features

Fire Pit, Garden, Private Yard

School Information

  • DistrictJefferson County R-1
  • ElementaryWilmot
  • MiddleEvergreen
  • HighEvergreen

Additional Information

  • Date ListedFebruary 13th, 2026
  • ZoningMR-1

Listing Details

Keller Williams Foothills Realty

Please provide a valid email address.

Terms and Conditions: The content relating to real estate for sale in this Web site comes in part from the Internet Data eXchange ("IDX") program of METROLIST, INC., DBA RECOLORADO® Real estate listings held by brokers other than RE/MAX Professionals are marked with the IDX Logo. This information is being provided for the consumers personal, non-commercial use and may not be used for any other purpose. All information subject to change and should be independently verified.

Copyright 2026 METROLIST, INC., DBA RECOLORADO® -- All Rights Reserved 6455 S. Yosemite St., Suite 500 Greenwood Village, CO 80111 USA

Listing information last updated on February 18th, 2026 at 4:03am MST.