Connect

6102 S Logan Place, Centennial, CO – $599,000

  • 3 Beds
  • 2 Baths
  • 1,615 Sqft
  • .26 Acres
  • 3 Beds
  • 2 Baths
  • 1,615 Sqft
  • .26 Acres

New Search X

6102 S Logan Place

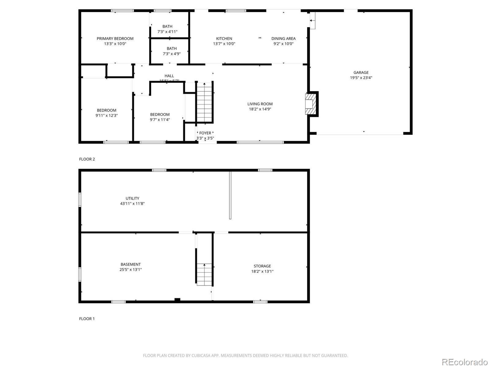
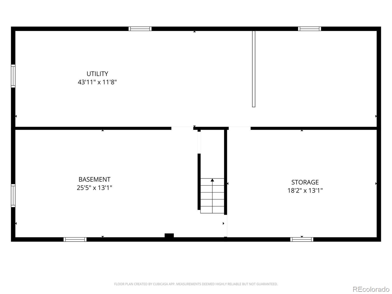
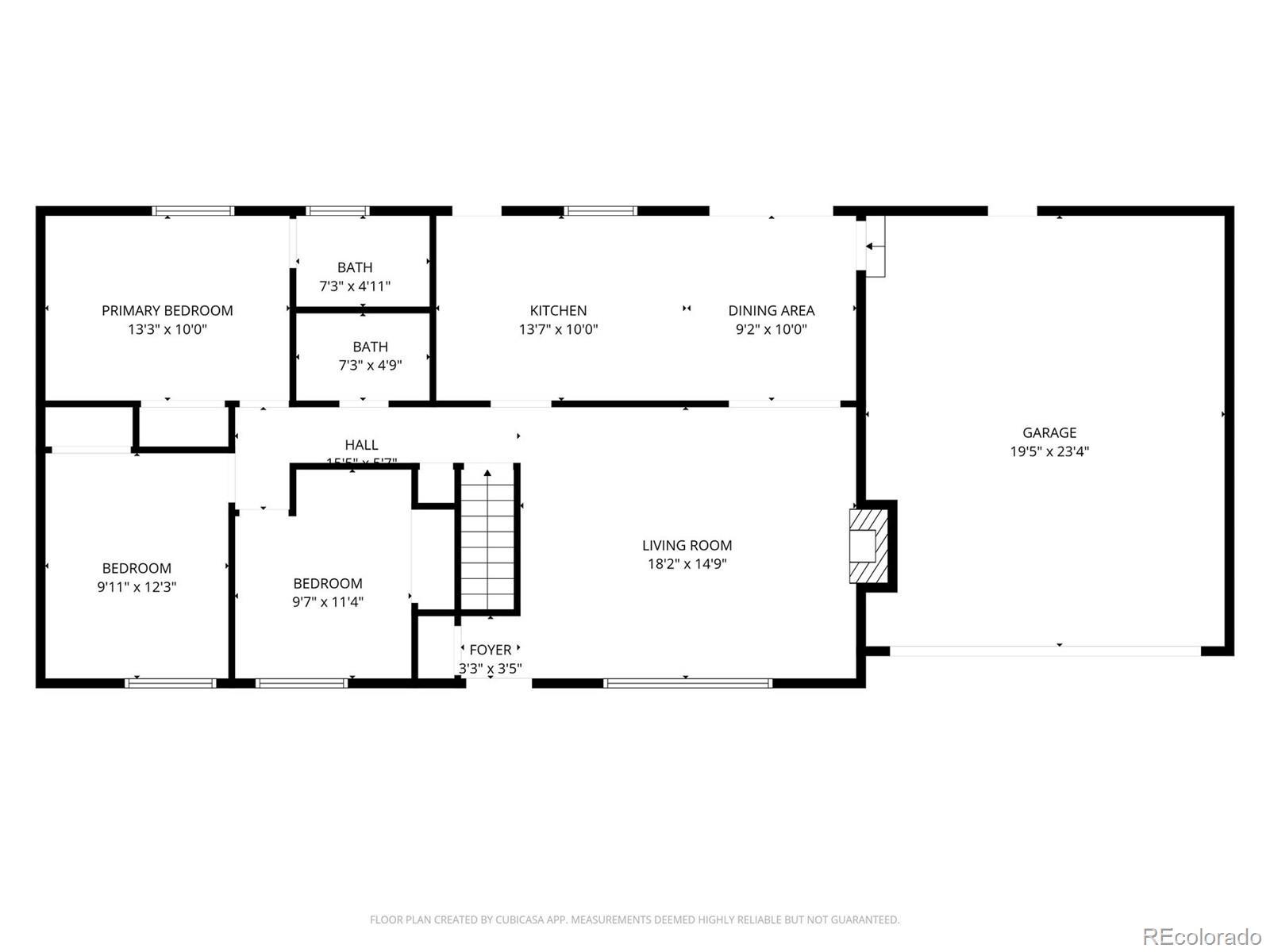
Welcome to this charming brick ranch, ideally located on a large .26 acre corner lot, a short walk from the High Line Canal Trail and Milliken Park. Freshly painted interior and gorgeous newly refinished hardwood flooring throughout. Bright and open Living Room is graced by a cove ceiling with original ceiling texture which adds a vintage touch. The lovely brick fireplace with slate hearth will keep you toasty warm on our chilly winter nights. Spacious Dining Room features a ceiling fan light fixture and a sliding door which opens to the expansive and private concrete patio and back yard. Cooking will be a pleasure in the updated Kitchen. Plenty of counter and cabinet space, handy breakfast bar. All appliances stay, including a Samsung gas cooktop. Primary Bedroom has 2 large windows and a ceiling fan light fixture. Ensuite ¾ bath which is updated with tile shower & flooring and a pedestal sink. 2 additional bedrooms feature vintage ceiling texture and sun-filled windows - nicely accommodated by a full hall bathroom. Extensive additional living space in the full basement which includes a Bonus Room and plenty of square footage just waiting to be finished. Lots of storage space. Newer A/C, newer windows, copper piping, solid 6 panel doors, sprinkler system. Peaceful and welcoming community with easy access to the treasured High Line Canal Trail, a 71-mile walking & biking trail and Milliken Park with its playground, baseball & soccer fields and picnic shelter. Outstanding Littleton Public Schools.

Listing Office: RE/MAX Professionals

Essential Information

  • MLS® #4713604
  • Price$599,000
  • Bedrooms3
  • Bathrooms2.00
  • Full Baths1
  • Square Footage1,615
  • Acres0.26
  • Year Built1965
  • TypeResidential
  • Sub-TypeSingle Family Residence
  • StyleTraditional
  • StatusPending

Community Information

  • Address6102 S Logan Place
  • SubdivisionSherwood Park
  • CityCentennial
  • CountyArapahoe
  • StateCO
  • Zip Code80121

Amenities

  • Parking Spaces2
  • # of Garages2

Utilities

Electricity Connected, Natural Gas Connected

Parking

Concrete, Exterior Access Door, Oversized

Interior

  • HeatingForced Air, Natural Gas
  • CoolingCentral Air
  • FireplaceYes
  • # of Fireplaces1
  • FireplacesLiving Room, Wood Burning
  • StoriesOne

Interior Features

Ceiling Fan(s), Open Floorplan, Primary Suite, Radon Mitigation System, Smoke Free

Appliances

Cooktop, Dishwasher, Disposal, Dryer, Gas Water Heater, Microwave, Refrigerator, Self Cleaning Oven, Washer

Exterior

  • Exterior FeaturesPrivate Yard
  • RoofComposition
  • FoundationConcrete Perimeter

Lot Description

Corner Lot, Level, Sprinklers In Front, Sprinklers In Rear

Windows

Double Pane Windows, Window Treatments

School Information

  • DistrictLittleton 6
  • ElementaryEast
  • MiddleEuclid
  • HighLittleton

Additional Information

  • Date ListedOctober 30th, 2025

Listing Details

  • RE/MAX Professionals
Please provide a valid email address.

Terms and Conditions: The content relating to real estate for sale in this Web site comes in part from the Internet Data eXchange ("IDX") program of METROLIST, INC., DBA RECOLORADO® Real estate listings held by brokers other than RE/MAX Professionals are marked with the IDX Logo. This information is being provided for the consumers personal, non-commercial use and may not be used for any other purpose. All information subject to change and should be independently verified.

Copyright 2025 METROLIST, INC., DBA RECOLORADO® -- All Rights Reserved 6455 S. Yosemite St., Suite 500 Greenwood Village, CO 80111 USA

Listing information last updated on November 5th, 2025 at 3:03pm MST.