Connect

6884 E 149th Avenue, Thornton, CO – $547,750

  • 3 Beds
  • 3 Baths
  • 1,868 Sqft
  • .07 Acres
  • 3 Beds
  • 3 Baths
  • 1,868 Sqft
  • .07 Acres

New Search X

6884 E 149th Avenue

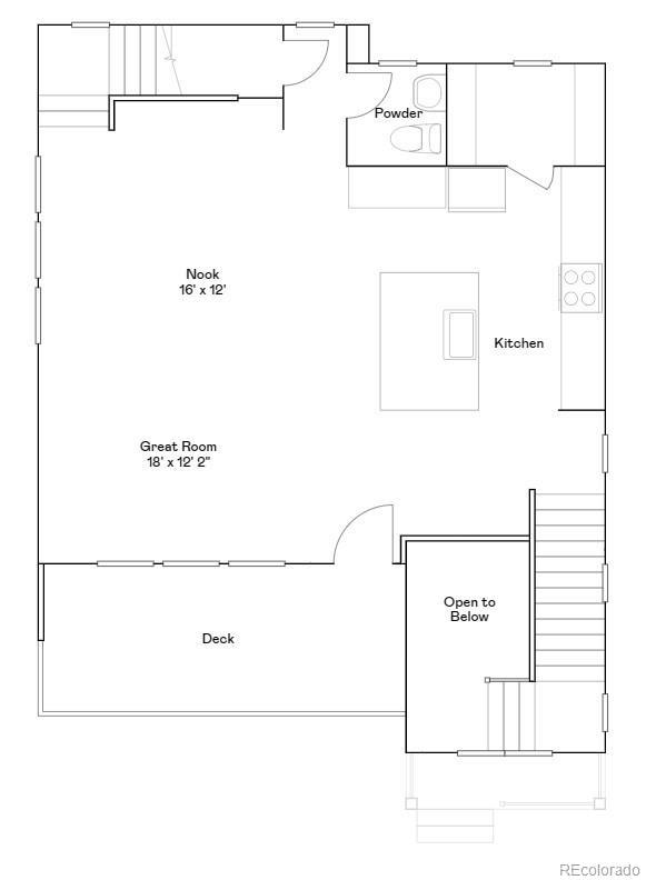
*** This home eligible for special 3.75% financing - Terms and conditions apply - Ask for details!***Welcome to the Skyline Collection by Lennar, where modern design blends seamlessly with everyday functionality. This well-appointed three-story home offers a spacious two-bay garage on the entry level, complete with extra storage for added organization. The second floor showcases a bright, open-concept layout connecting the kitchen, dining area, and Great Room—creating an ideal setting for both entertaining and daily living. A private deck extends the living space outdoors, perfect for relaxing or hosting guests. All three bedrooms are thoughtfully situated on the top floor, including a spacious owner’s suite featuring a serene bedroom retreat, private en-suite bath, and walk-in closet. The conveniently located laundry room near the bedrooms enhances everyday ease. Located in a vibrant community, residents enjoy close proximity to upscale shopping and dining at Denver Premium Outlets, as well as year-round recreation and fitness opportunities at Trail Winds Recreation Center. Estimated completion date is April 2026.

Listing Office: Coldwell Banker Realty 56

Essential Information

  • MLS® #4784209
  • Price$547,750
  • Bedrooms3
  • Bathrooms3.00
  • Full Baths1
  • Half Baths1
  • Square Footage1,868
  • Acres0.07
  • Year Built2024
  • TypeResidential
  • Sub-TypeSingle Family Residence
  • StatusActive

Community Information

  • Address6884 E 149th Avenue
  • SubdivisionParterre
  • CityThornton
  • CountyAdams
  • StateCO
  • Zip Code80602

Amenities

  • Parking Spaces2
  • # of Garages2

Amenities

Garden Area, Park, Parking, Playground, Tennis Court(s), Trail(s)

Utilities

Cable Available, Electricity Connected, Phone Available

Interior

  • HeatingForced Air
  • CoolingCentral Air
  • StoriesTri-Level

Interior Features

Eat-in Kitchen, Entrance Foyer, High Ceilings, High Speed Internet, Kitchen Island, Open Floorplan, Pantry, Primary Suite, Quartz Counters, Walk-In Closet(s)

Appliances

Dishwasher, Disposal, Microwave, Oven, Refrigerator

Exterior

  • Exterior FeaturesBalcony, Rain Gutters
  • Lot DescriptionCul-De-Sac
  • WindowsDouble Pane Windows
  • RoofComposition

School Information

  • DistrictSchool District 27-J
  • ElementaryWest Ridge
  • MiddleRoger Quist
  • HighRiverdale Ridge

Additional Information

  • Date ListedFebruary 17th, 2026

Listing Details

  • Coldwell Banker Realty 56
Please provide a valid email address.

Terms and Conditions: The content relating to real estate for sale in this Web site comes in part from the Internet Data eXchange ("IDX") program of METROLIST, INC., DBA RECOLORADO® Real estate listings held by brokers other than RE/MAX Professionals are marked with the IDX Logo. This information is being provided for the consumers personal, non-commercial use and may not be used for any other purpose. All information subject to change and should be independently verified.

Copyright 2026 METROLIST, INC., DBA RECOLORADO® -- All Rights Reserved 6455 S. Yosemite St., Suite 500 Greenwood Village, CO 80111 USA

Listing information last updated on February 18th, 2026 at 2:18pm MST.