Connect

2804 Rose Hill Street, Strasburg, CO – $375,000

  • 3 Beds
  • 2 Baths
  • 1,014 Sqft
  • .18 Acres
  • 3 Beds
  • 2 Baths
  • 1,014 Sqft
  • .18 Acres

New Search X

2804 Rose Hill Street

Welcome to 2804 Rose Hill St, where single-level living meets thoughtful updates and a calm, open backdrop. The kitchen, dining, and living areas connect easily, creating a space that feels warm, comfortable, and simple to make your own. Light filters through the main living area throughout the day, adding a natural sense of ease to the home. In 2025, the property received meaningful improvements, including new A/C, roof, siding, and appliances, all aimed at reducing ongoing maintenance and offering long-term confidence. The backyard extends to open space, providing a more private setting and a peaceful view. Wolf Creek Run offers a pool, playground, pavilion, and walking paths, giving you everyday access to outdoor amenities close to home. Nearby groceries, dining, and quick access to I-70 keep daily routines convenient and connected. A move-in-ready home with a relaxed, welcoming feel—ready for its next chapter.

Listing Office: Nookhaven Homes

Essential Information

  • MLS® #4853334
  • Price$375,000
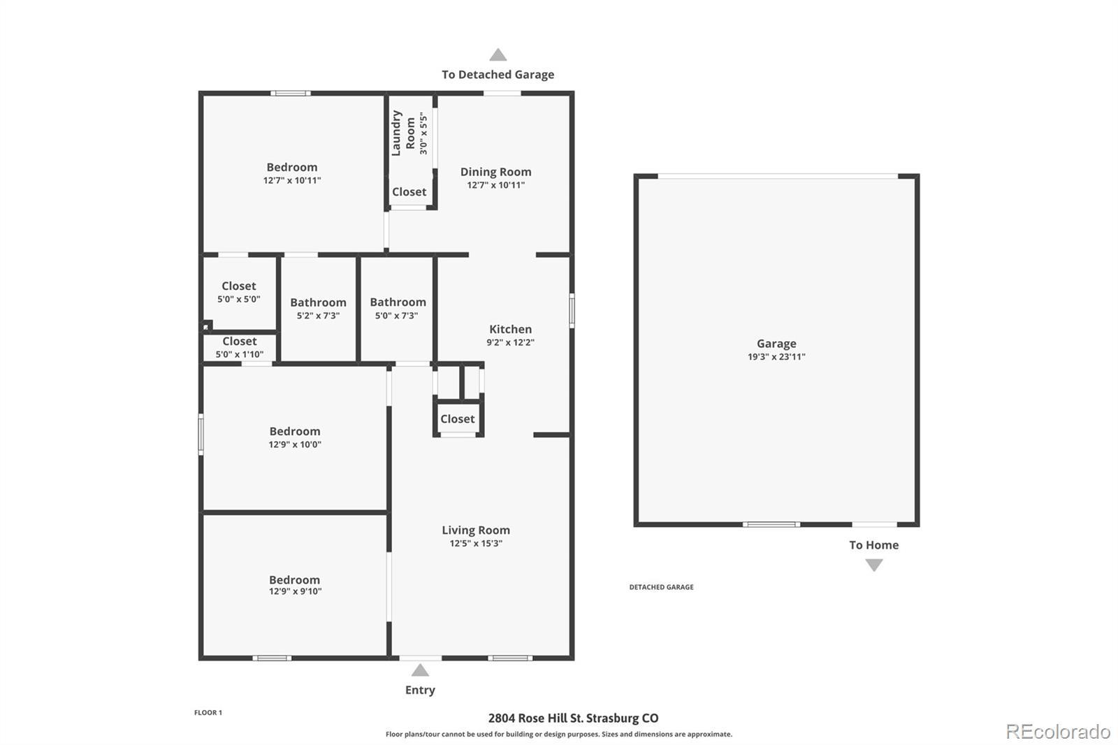
  • Bedrooms3
  • Bathrooms2.00
  • Full Baths2
  • Square Footage1,014
  • Acres0.18
  • Year Built2012
  • TypeResidential
  • Sub-TypeSingle Family Residence
  • StatusPending

Community Information

  • Address2804 Rose Hill Street
  • SubdivisionWolf Creek Run
  • CityStrasburg
  • CountyAdams
  • StateCO
  • Zip Code80136

Amenities

  • Parking Spaces2
  • # of Garages2

Amenities

Park, Parking, Playground, Pool

Interior

  • HeatingForced Air
  • CoolingCentral Air
  • StoriesOne

Interior Features

Laminate Counters, No Stairs, Pantry, Walk-In Closet(s)

Appliances

Dishwasher, Dryer, Microwave, Range, Refrigerator, Washer

Exterior

  • Exterior FeaturesPrivate Yard, Rain Gutters
  • WindowsDouble Pane Windows
  • RoofShingle

Lot Description

Sprinklers In Front, Sprinklers In Rear

School Information

  • DistrictStrasburg 31-J
  • ElementaryStrasburg
  • MiddleHemphill
  • HighStrasburg

Additional Information

  • Date ListedNovember 6th, 2025
  • ZoningP-U-D

Listing Details

  • Nookhaven Homes
Please provide a valid email address.

Terms and Conditions: The content relating to real estate for sale in this Web site comes in part from the Internet Data eXchange ("IDX") program of METROLIST, INC., DBA RECOLORADO® Real estate listings held by brokers other than RE/MAX Professionals are marked with the IDX Logo. This information is being provided for the consumers personal, non-commercial use and may not be used for any other purpose. All information subject to change and should be independently verified.

Copyright 2026 METROLIST, INC., DBA RECOLORADO® -- All Rights Reserved 6455 S. Yosemite St., Suite 500 Greenwood Village, CO 80111 USA

Listing information last updated on January 27th, 2026 at 10:48pm MST.