Connect

1803 E 36th Avenue, Denver, CO – $499,000

  • 3 Beds
  • 2 Baths
  • 1,038 Sqft
  • ½ Acres
  • 3 Beds
  • 2 Baths
  • 1,038 Sqft
  • ½ Acres

New Search X

1803 E 36th Avenue

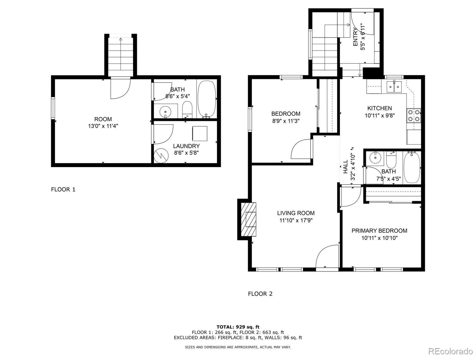
Look no further than this CHARMING BUNGALOW in the sought after Cole neighborhood! This functional home lives LARGE IN STYLE and combines HISTORIC CHARM and MODERN UPDATES. The moment you enter, FRESH PAINT and thoughtful design updates greet you with a sense of warmth and pride. NATURAL LIGHT spills into the main living area while the kitchen brings a burst of personality with emerald green cabinets, BRAND NEW STAINLESS STEEL FRIDGE, and playful touches that make everyday moments more enjoyable. The layout flows comfortably, offering everything you need without an inch of wasted space. Downstairs, the FINISHED BASEMENT expands your options with a FULL BATHROOM and EGRESS WINDOW, perfect for guests, hobbies, or a cozy retreat. A BRAND NEW WATER HEATER and modern hardware updates throughout add both peace of mind and style. Outside, a PRIVATE BACKYARD PATIO invites relaxed evenings and easy weekend hangouts. Whether it’s morning coffee or dinner under the stars, the space feels like an extension of the home and is perfect for gardening, hosting, or simply enjoying Colorado's 300+ days of sun. Just beyond your front door, the neighborhood buzzes with energy. You’re within WALKING DISTANCE to all that Cole & RiNo have to offer, including the French restaurant BRASSERIE BRIXTON and hip cocktail bar YACHT CLUB. Just minutes from major highways for an easy commute or a quick 15 minute walk to the RTD A Line at 38th & Blake. Whether you’re a first-time buyer, an investor, or looking to downsize in style, this property delivers charm, space, and location in one tidy package. This property qualifies for Sunflower Bank's Community Reinvestment Act (CRA) program which offers 1.75% of loan amount (up to $7,000) lender credit towards Closing Costs, Pre-paids or Buy-down. This program is approved for 2nd homes and investment property financing. Call Nelson Howe at Sunflower Bank - (303)949-8869. nelson.howe@sunflowerbank.com

Listing Office: 8z Real Estate

Essential Information

  • MLS® #4987943
  • Price$499,000
  • Bedrooms3
  • Bathrooms2.00
  • Full Baths2
  • Square Footage1,038
  • Acres0.05
  • Year Built1900
  • TypeResidential
  • Sub-TypeSingle Family Residence
  • StyleBungalow
  • StatusPending

Community Information

  • Address1803 E 36th Avenue
  • SubdivisionCole
  • CityDenver
  • CountyDenver
  • StateCO
  • Zip Code80205

Amenities

Utilities

Electricity Connected, Natural Gas Available, Natural Gas Connected

Interior

  • HeatingForced Air, Natural Gas
  • CoolingAir Conditioning-Room
  • FireplaceYes
  • # of Fireplaces1
  • FireplacesLiving Room
  • StoriesOne

Interior Features

Built-in Features, Ceiling Fan(s), Eat-in Kitchen, Laminate Counters, Pantry, Vaulted Ceiling(s)

Appliances

Dishwasher, Disposal, Dryer, Microwave, Oven, Refrigerator, Washer

Exterior

  • Exterior FeaturesPrivate Yard, Rain Gutters
  • Lot DescriptionCorner Lot, Level
  • WindowsDouble Pane Windows
  • RoofUnknown

School Information

  • DistrictDenver 1
  • ElementaryHarrington
  • MiddleWhittier E-8
  • HighManual

Additional Information

  • Date ListedMay 30th, 2025
  • ZoningU-SU-A1

Listing Details

  • 8z Real Estate
Please provide a valid email address.

Terms and Conditions: The content relating to real estate for sale in this Web site comes in part from the Internet Data eXchange ("IDX") program of METROLIST, INC., DBA RECOLORADO® Real estate listings held by brokers other than RE/MAX Professionals are marked with the IDX Logo. This information is being provided for the consumers personal, non-commercial use and may not be used for any other purpose. All information subject to change and should be independently verified.

Copyright 2025 METROLIST, INC., DBA RECOLORADO® -- All Rights Reserved 6455 S. Yosemite St., Suite 500 Greenwood Village, CO 80111 USA

Listing information last updated on November 5th, 2025 at 2:34pm MST.