Connect

5282 Devon Avenue, Castle Rock, CO – $625,000

  • 5 Beds
  • 4 Baths
  • 2,969 Sqft
  • .12 Acres
  • 5 Beds
  • 4 Baths
  • 2,969 Sqft
  • .12 Acres

New Search X

5282 Devon Avenue

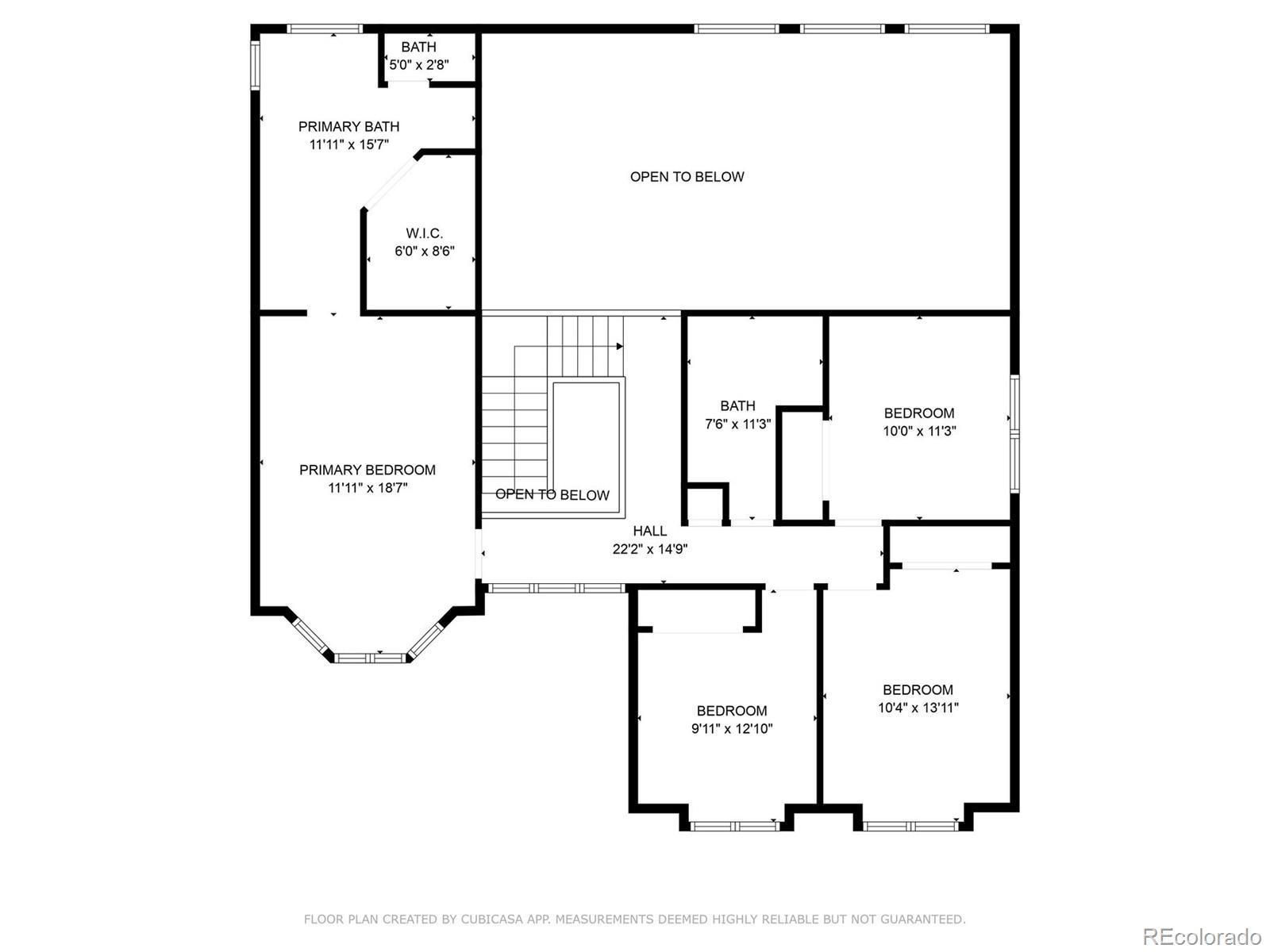
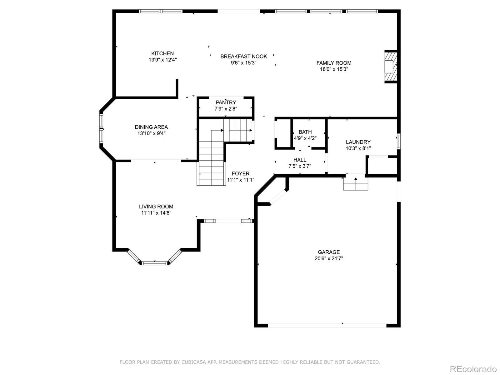
Wow! Great price on this 5 bedroom home! Plenty of space for everyone and a gorgeous 25x14 covered deck to enjoy Colorado evenings all year round! Brand new carpet throughout! 18x18 tile flooring flows from the entry into the fully remodeled kitchen featuring granite counters, knotty alder cabinetry, stainless steel appliances (including a unique stove with gas cooktop/electric oven!), under cabinet lighting, lighted storage cubbies and a large pantry. Vaulted ceilings in the dining area and family room with plenty of windows to provide natural light, plus a cozy gas fireplace. Step out onto the amazing covered deck with a low maintenance backyard and shed for storage. Completing the main level is a formal living room and formal dining area, 1/2 bath, and laundry with storage and laundry sink. Upstairs is your primary bedroom with vaulted ceiling, walk-in closet and 5 piece bath with brand new tile flooring! There are 3 additional bedrooms upstairs and a remodeled bath with heated floors, granite counters and gorgeous tile. The finished basement offers a workshop with extra lighting and built-in workbench, and a huge 5th bedroom with double closets that could also serve as a playroom, craft room or whatever suits your needs! Basement also has a ¾ bath with slate tile, a bonus area with attached shelves and a crawlspace for extra storage. This neighborhood offers so many amenities! Parks, pool, schools and trails close by... plus downtown Castle Rock is just minutes away. BONUS - Home Warranty included!

Listing Office: RE/MAX Alliance

Essential Information

  • MLS® #5038678
  • Price$625,000
  • Bedrooms5
  • Bathrooms4.00
  • Full Baths2
  • Half Baths1
  • Square Footage2,969
  • Acres0.12
  • Year Built1993
  • TypeResidential
  • Sub-TypeSingle Family Residence
  • StyleTraditional
  • StatusActive

Community Information

  • Address5282 Devon Avenue
  • SubdivisionFounders Village
  • CityCastle Rock
  • CountyDouglas
  • StateCO
  • Zip Code80104

Amenities

  • Parking Spaces2
  • # of Garages2

Amenities

Clubhouse, Park, Playground, Pool

Utilities

Electricity Connected, Natural Gas Connected

Interior

  • HeatingForced Air, Natural Gas
  • CoolingCentral Air
  • FireplaceYes
  • # of Fireplaces1
  • FireplacesFamily Room, Gas Log
  • StoriesTwo

Interior Features

Breakfast Bar, Ceiling Fan(s), Five Piece Bath, Granite Counters, Pantry, Primary Suite, Radon Mitigation System, Smoke Free, Tile Counters, Vaulted Ceiling(s), Walk-In Closet(s)

Appliances

Convection Oven, Dishwasher, Disposal, Dryer, Gas Water Heater, Microwave, Range, Refrigerator, Washer

Exterior

  • Exterior FeaturesLighting
  • WindowsSkylight(s), Window Coverings
  • RoofComposition

Lot Description

Corner Lot, Landscaped, Sprinklers In Front, Sprinklers In Rear

School Information

  • DistrictDouglas RE-1
  • ElementaryRock Ridge
  • MiddleMesa
  • HighDouglas County

Additional Information

  • Date ListedMay 21st, 2025
  • ZoningRes

Listing Details

  • RE/MAX Alliance
Please provide a valid email address.

Terms and Conditions: The content relating to real estate for sale in this Web site comes in part from the Internet Data eXchange ("IDX") program of METROLIST, INC., DBA RECOLORADO® Real estate listings held by brokers other than RE/MAX Professionals are marked with the IDX Logo. This information is being provided for the consumers personal, non-commercial use and may not be used for any other purpose. All information subject to change and should be independently verified.

Copyright 2025 METROLIST, INC., DBA RECOLORADO® -- All Rights Reserved 6455 S. Yosemite St., Suite 500 Greenwood Village, CO 80111 USA

Listing information last updated on October 29th, 2025 at 12:18am MDT.