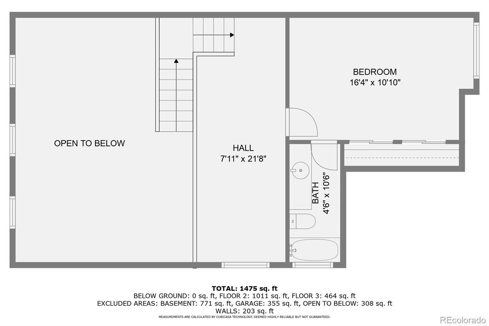
A turnkey townhome with two primary suites. The entryway has tile floors. Special features include new carpet, new window coverings, and new flooring with fresh paint throughout. The main floor offers a large primary bedroom and a full bathroom. The living room features new carpet and a gas fireplace, and is open to the dining room. French doors in the living room open to a lovely patio. The kitchen, laundry room, and bathrooms have new flooring. The laundry room is located on the main level with new flooring and fresh paint. The loft makes a great seating area or office, featuring new carpet and paint. The second primary suite is located on the second level and features a private bathroom with new flooring, new carpet, and window coverings. An unfinished basement includes three egress windows. The basement can make a great bonus room for storage or a workout area. This is a great community that's centrally located between Wadsworth and Sheridan. And only five minutes from 285/Hampden Ave. There are nearby stores and restaurants. And near the Belmar shopping center.
Listing Office: MB Bahl Markerting Group  
 
Cable Available, Electricity Available, Phone Available
Ceiling Fan(s), High Ceilings, Laminate Counters, Primary Suite, Smoke Free, Vaulted Ceiling(s)
Cooktop, Dishwasher, Disposal, Dryer, Refrigerator, Washer
Double Pane Windows, Skylight(s), Window Coverings
 MB Bahl Markerting Group
MB Bahl Markerting Group Terms and Conditions: The content relating to real estate for sale in this Web site comes in  part from the Internet Data eXchange ("IDX") program of METROLIST, INC., DBA RECOLORADO® Real estate listings held by brokers other than RE/MAX Professionals are marked with the IDX Logo. This information is being  provided for the consumers personal, non-commercial use and may not be  used for any other purpose. All information subject to change and  should be independently verified.
 Terms and Conditions: The content relating to real estate for sale in this Web site comes in  part from the Internet Data eXchange ("IDX") program of METROLIST, INC., DBA RECOLORADO® Real estate listings held by brokers other than RE/MAX Professionals are marked with the IDX Logo. This information is being  provided for the consumers personal, non-commercial use and may not be  used for any other purpose. All information subject to change and  should be independently verified.
Copyright 2025 METROLIST, INC., DBA RECOLORADO® -- All Rights Reserved 6455 S. Yosemite St., Suite 500 Greenwood Village, CO 80111 USA
Listing information last updated on October 31st, 2025 at 6:48am MDT.