Connect

1397 Cottonwood Street, Broomfield, CO – $2,200,000

  • $2.2M Price
  • 10,343 Sqft
  • $2.2M Price
  • 10,343 Sqft

New Search X

1397 Cottonwood Street

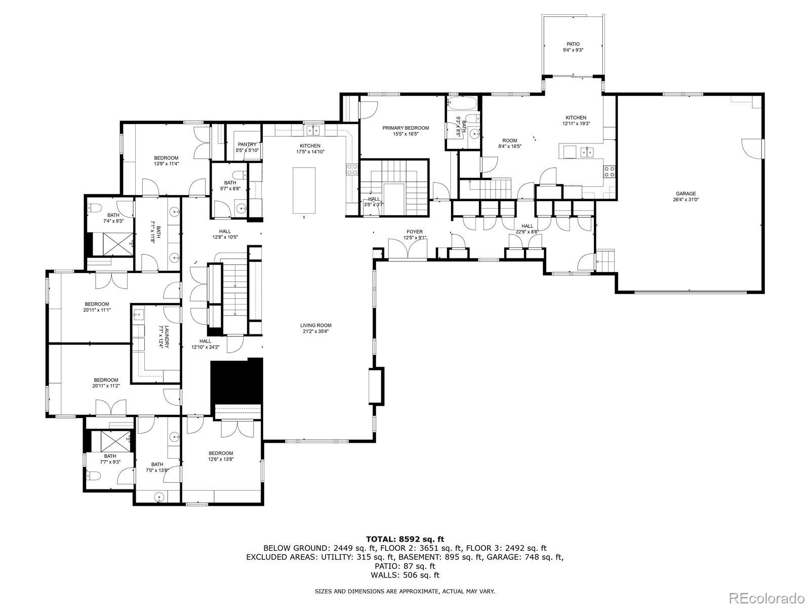
The Cottonwood House offering is a modern group home facility located in central Broomfield just minutes from Commons Park and Open Space. The three-level building, as currently configured, offers 8 private bedrooms with a Jack & Jill restrooms, Group kitchen and great room, a 2-bedroom managers apartment, an “weekender” guest room with private bath, laundry on both floors and a huge basement for offices, storage, recreation and more. There is an attached two car garage and beautiful landscaped grounds. The building is ready for an elevator with an existing shaft common to all three floors in addition to multiple staircases. The location caters to the growing local population of Broomfield, with convenient access to Denver, Boulder, Superior, Louisville, Lafeyette, Longmont, Westminster, Northglenn and Thornton. The adjacent Grove at Cottonwood broke ground in July offering 40 new units of supportive housing next door. The property is currently vacant and available excepting a short term care taker arrangement and month to month construction office lease. All transaction structures will be considered prioritizing a quick fee simple sale.

Listing Office: Crosbie Real Estate Group LLC

Essential Information

  • MLS® #5140174
  • Price$2,200,000
  • Bathrooms0.00
  • Square Footage10,343
  • Acres0.00
  • Year Built2012
  • TypeCommercial Sale
  • Sub-TypeMulti Family
  • StatusActive

Community Information

  • Address1397 Cottonwood Street
  • CityBroomfield
  • CountyBroomfield
  • StateCO
  • Zip Code80020

Amenities

  • Parking Spaces2
  • # of Garages2

Utilities

Cable Available, Electricity Connected, Natural Gas Connected, Phone Connected, Sewer Connected

Exterior

  • Lot DescriptionCul-De-Sac, Landscaped

Additional Information

  • Date ListedAugust 25th, 2025
  • ZoningR-1

Listing Details

  • Crosbie Real Estate Group LLC
Please provide a valid email address.

Terms and Conditions: The content relating to real estate for sale in this Web site comes in part from the Internet Data eXchange ("IDX") program of METROLIST, INC., DBA RECOLORADO® Real estate listings held by brokers other than RE/MAX Professionals are marked with the IDX Logo. This information is being provided for the consumers personal, non-commercial use and may not be used for any other purpose. All information subject to change and should be independently verified.

Copyright 2025 METROLIST, INC., DBA RECOLORADO® -- All Rights Reserved 6455 S. Yosemite St., Suite 500 Greenwood Village, CO 80111 USA

Listing information last updated on November 6th, 2025 at 2:18am MST.