Connect

3820 S Delaware Street, Englewood, CO – $600,000

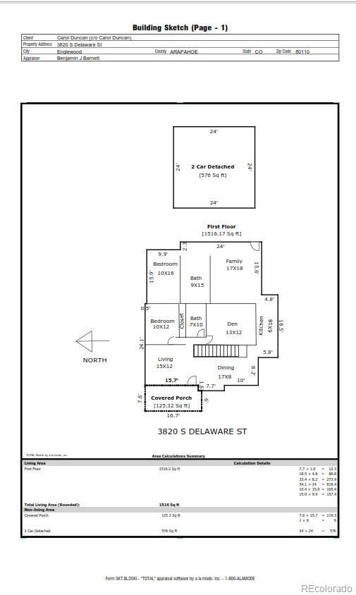
  • 3 Beds
  • 2 Baths
  • 2,333 Sqft
  • .15 Acres
  • 3 Beds
  • 2 Baths
  • 2,333 Sqft
  • .15 Acres

New Search X

3820 S Delaware Street

Charming Brick Bungalow w/Addition that Includes Family Room, Primary Bedroom & Bathroom w/Mini Splits for Heating/Cooling*Primary Bathroom Tile Floor w/Radiant Heat*Original Hardwood Floors & Cove Ceilings in Living Room, Foyer & Main Level Bedrooms*Updated Kitchen with Cabinet Storage and Generous Counter Space*This Home Has a Ton of Storage Space*New Carpet in Family Room & Basement*New Interior Paint*Newer Windows Installed in 2021*New Garage Door*Sprinkler System Front & Backyard w/6 Zones*Sprinklers Also Placed in Raised Garden Beds*Fruit Bearing Apple Tree & Grape Vines*Flagstone Patio for Summer Barbecues and Outdoor Fun*Fully Fenced Backyard*Zero Scaped*Detached 2 Car Garage Provides Additional Work & Storage Space*Raised Garden Beds w/Sprinklers*RV/Boat Parking Beside Garage*City of Englewood Replaced Lead Service Lines and Valves*Seller Replaced the Galvanized Steel Main to House w/Copper in 2023*Close to Bellview, Progress & Cornerstone Parks*Golf Courses in Every Direction Including Cherry Hills*Transit Transportation*Premier Shopping and Restaurants Nearby*Easy Access to I-25, Downton Denver, Hwy 85, Hwy 285 & DTC*

Listing Office: Keller Williams Realty Downtown LLC

Essential Information

  • MLS® #5150513
  • Price$600,000
  • Bedrooms3
  • Bathrooms2.00
  • Full Baths1
  • Square Footage2,333
  • Acres0.15
  • Year Built1950
  • TypeResidential
  • Sub-TypeSingle Family Residence
  • StyleBungalow
  • StatusActive

Community Information

  • Address3820 S Delaware Street
  • CityEnglewood
  • CountyArapahoe
  • StateCO
  • Zip Code80110

Subdivision

Hamilton & Killies Bdwy Heights

Amenities

  • Parking Spaces2
  • # of Garages2

Utilities

Electricity Available, Natural Gas Connected

Parking

Concrete, Exterior Access Door

Interior

  • Interior FeaturesBuilt-in Features
  • CoolingAir Conditioning-Room
  • StoriesOne

Appliances

Dishwasher, Microwave, Oven, Range, Refrigerator

Heating

Forced Air, Natural Gas, Radiant Floor

Exterior

  • Exterior FeaturesGarden, Private Yard
  • RoofComposition
  • FoundationSlab

Lot Description

Level, Sprinklers In Front, Sprinklers In Rear

Windows

Double Pane Windows, Egress Windows

School Information

  • DistrictEnglewood 1
  • ElementaryClayton
  • MiddleEnglewood
  • HighEnglewood

Additional Information

  • Date ListedNovember 5th, 2025

Listing Details

Keller Williams Realty Downtown LLC

Please provide a valid email address.

Terms and Conditions: The content relating to real estate for sale in this Web site comes in part from the Internet Data eXchange ("IDX") program of METROLIST, INC., DBA RECOLORADO® Real estate listings held by brokers other than RE/MAX Professionals are marked with the IDX Logo. This information is being provided for the consumers personal, non-commercial use and may not be used for any other purpose. All information subject to change and should be independently verified.

Copyright 2025 METROLIST, INC., DBA RECOLORADO® -- All Rights Reserved 6455 S. Yosemite St., Suite 500 Greenwood Village, CO 80111 USA

Listing information last updated on December 31st, 2025 at 1:03pm MST.