Connect

12560 W Us Highway 50, Salida, CO – $1,250,000

  • 3 Beds
  • 2 Baths
  • 2,996 Sqft
  • 14.62 Acres
  • 3 Beds
  • 2 Baths
  • 2,996 Sqft
  • 14.62 Acres

New Search X

12560 W Us Highway 50

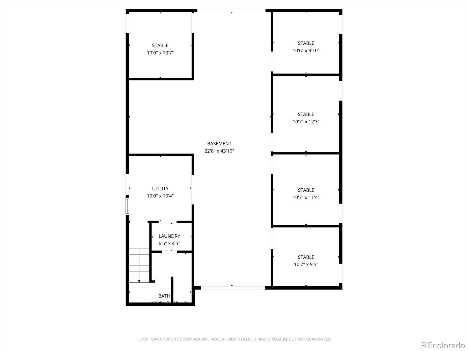
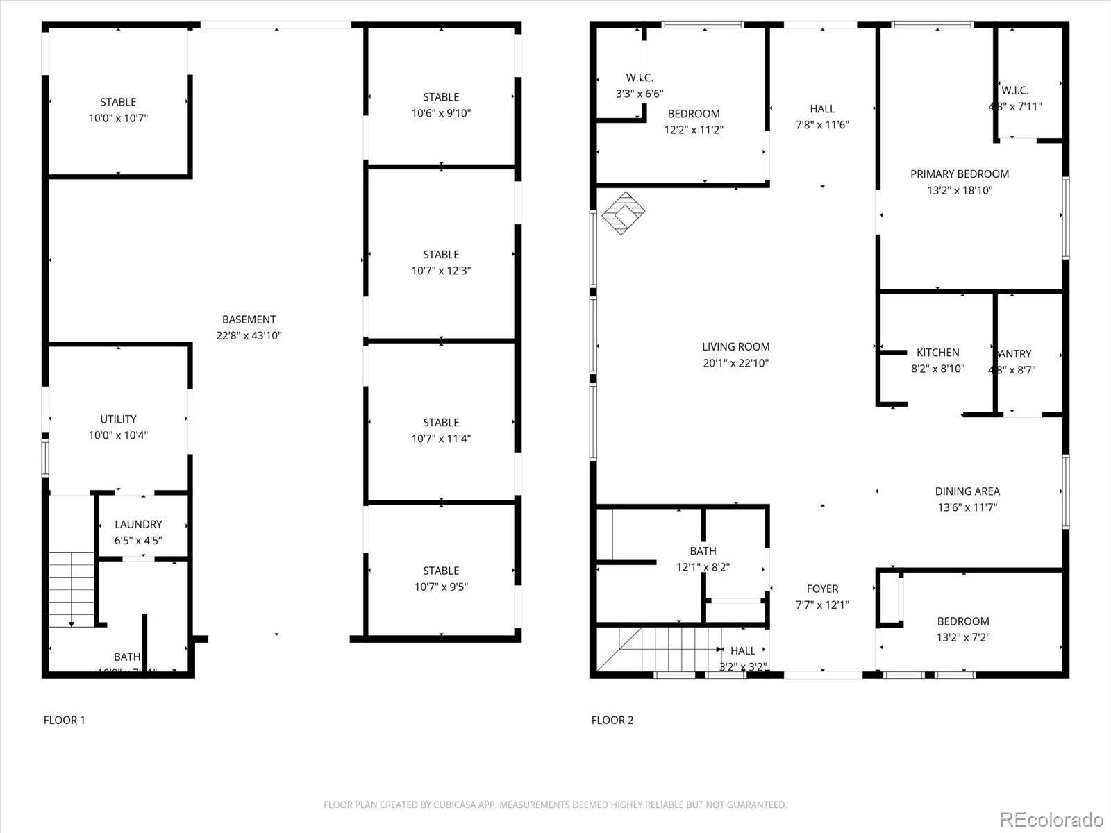
This is a true barndominium horse property with water rights, irrigated pasture, and a full equestrian setup on almost fifteen acres just outside Salida. The home sits above the working barn and captures long views of the Collegiate Peaks and the Arkansas River valley. The lower level is all function. You enter into a foyer that connects to a mudroom and laundry room, along with a three quarter bath that is ideal after barn work or time in the arena. From here you have direct interior access to the five stall barn and tack room, with wide aisles and concrete floors designed for everyday use. Upstairs is the main living space, bright and open with vaulted ceilings, exposed beams, and a wall of windows that frame the mountains. The living and dining areas flow together around a cozy stove and open to a practical kitchen with solid cabinetry and plenty of counter space. This level includes three bedrooms and a three quarter bath. Warm wood floors run throughout. Outside, the property is built for horses. There is an arena that measures about two hundred feet by one hundred fifty feet, five paddocks with loafing sheds, and vinyl fencing. About ten acres of pasture are flood irrigated, backed by strong water rights that include a one tenth ownership in the Nolan Ditch and the Pinon Ditch dedicated to CME. Additional outbuildings handle storage, tools, and equipment. The setting feels open and private, yet you are minutes from downtown Salida, Monarch Mountain, and the Arkansas River. A rare chance to own a true barndominium with real water rights, irrigated pasture, a full working barn and arena, and comfortable living space in the Heart of the Rockies.

Listing Office: Century 21 Community First

Essential Information

  • MLS® #5172023
  • Price$1,250,000
  • Bedrooms3
  • Bathrooms2.00
  • Square Footage2,996
  • Acres14.62
  • Year Built2006
  • TypeResidential
  • Sub-TypeSingle Family Residence
  • StyleMountain Contemporary, Rustic
  • StatusActive

Community Information

  • Address12560 W Us Highway 50
  • CitySalida
  • CountyChaffee
  • StateCO
  • Zip Code81201

Subdivision

COUNTRY MEADOWS ESTATES AMENDED

Amenities

  • UtilitiesElectricity Connected
  • Parking Spaces8
  • # of Garages2
  • ViewMeadow, Mountain(s), Valley

Parking

Unpaved, Gravel, Exterior Access Door, Finished Garage, Lighted, Storage, Tandem

Interior

  • HeatingForced Air, Wood Stove
  • CoolingNone
  • FireplaceYes
  • # of Fireplaces1
  • StoriesTwo

Interior Features

Ceiling Fan(s), Entrance Foyer, High Ceilings, Open Floorplan, Pantry, Solid Surface Counters, Vaulted Ceiling(s), Walk-In Closet(s)

Appliances

Dishwasher, Disposal, Dryer, Range, Refrigerator, Washer

Fireplaces

Great Room, Wood Burning Stove

Exterior

  • RoofComposition

Exterior Features

Balcony, Lighting, Private Yard

Lot Description

Corner Lot, Cul-De-Sac, Ditch, Irrigated, Level, Meadow, Near Ski Area, Suitable For Grazing

School Information

  • DistrictSalida R-32
  • ElementaryLongfellow
  • MiddleSalida
  • HighSalida

Additional Information

  • Date ListedNovember 26th, 2025
  • ZoningResidential Rural (RR)

Listing Details

  • Century 21 Community First
Please provide a valid email address.

Terms and Conditions: The content relating to real estate for sale in this Web site comes in part from the Internet Data eXchange ("IDX") program of METROLIST, INC., DBA RECOLORADO® Real estate listings held by brokers other than RE/MAX Professionals are marked with the IDX Logo. This information is being provided for the consumers personal, non-commercial use and may not be used for any other purpose. All information subject to change and should be independently verified.

Copyright 2026 METROLIST, INC., DBA RECOLORADO® -- All Rights Reserved 6455 S. Yosemite St., Suite 500 Greenwood Village, CO 80111 USA

Listing information last updated on January 15th, 2026 at 12:48pm MST.