Connect

1715 Globe Court, Fort Collins, CO – $975,000

  • 5 Beds
  • 5 Baths
  • 4,195 Sqft
  • .2 Acres
  • 5 Beds
  • 5 Baths
  • 4,195 Sqft
  • .2 Acres

New Search X

1715 Globe Court

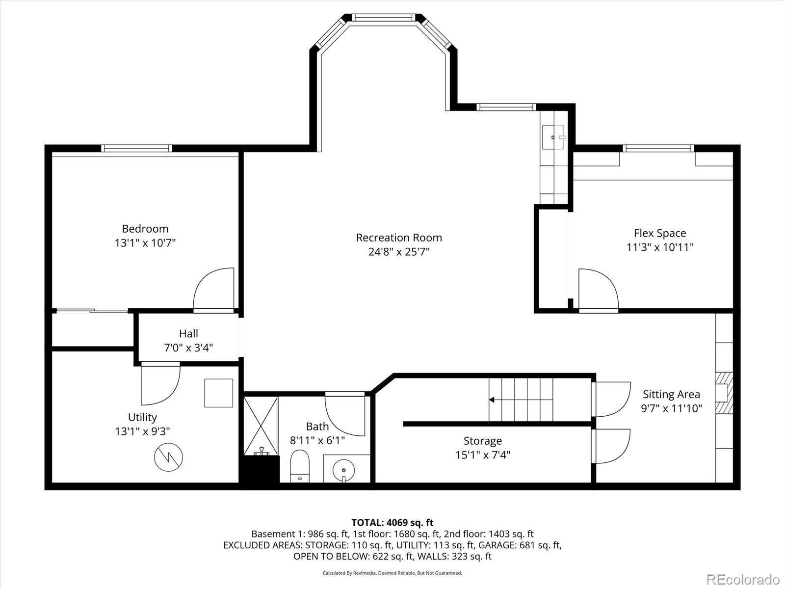
Nestled on .2 acres in Willow Springs! Updated 5 bedroom, 5 bathroom beauty with a 3-car garage on a cul-de-sac backing to a greenbelt with access to the community pool, clubhouse, tennis courts, walking trails, parks and ponds! The main level features beautiful wood flooring and a dedicated office with vaulted ceiling, plantation shutters and French doors - ideal for working from home. The living room is filled with natural light from several large windows while the dining room is accented by a coffered ceiling. The updated kitchen is gorgeous with wood flooring, farmhouse sink, double ovens, gas range, large island with a prep sink, abundant cabinetry and a spacious corner pantry. The breakfast nook with bay windows overlooks the backyard and greenbelt beyond. The family room features high ceilings, built-ins, a gas fireplace, and direct access to the composite deck—perfect for indoor-outdoor living. A spacious tiled laundry and mudroom features a sink basin, upper and lower cabinets, coat closet and the washer & dryer are included. Upstairs, the primary suite offers a sitting area and an updated five-piece bath with dual sinks, granite countertops, standalone tub, walk-in shower, walk-in closet, linen closet and corner windows above the tub. Two bedrooms share a Jack-and-Jill bath with double sinks and an additional upper-level bedroom has a private 3/4 ensuite bath. The garden-level basement is designed for relaxation, entertaining and home projects featuring a cozy room with fireplace and built-ins, a craft room with cabinetry and granite countertop and a large rec room with wet bar, mini-fridge, projector and screen and a game-table area with bay windows. An additional bedroom and 3/4 bath, along with space for storage complete the basement. The drywalled 3-car garage has an exterior door to the backyard. New furnace & AC in 2021. Just a few minutes to Harmony Rd and endless amenities. Check out the floor plans with the photos as well as the 3D tour!

Listing Office: RE/MAX Alliance

Essential Information

  • MLS® #5218546
  • Price$975,000
  • Bedrooms5
  • Bathrooms5.00
  • Full Baths2
  • Half Baths1
  • Square Footage4,195
  • Acres0.20
  • Year Built1999
  • TypeResidential
  • Sub-TypeSingle Family Residence
  • StatusActive

Community Information

  • Address1715 Globe Court
  • SubdivisionWillow Springs
  • CityFort Collins
  • CountyLarimer
  • StateCO
  • Zip Code80528

Amenities

  • Parking Spaces3
  • # of Garages3

Amenities

Clubhouse, Pool, Tennis Court(s)

Utilities

Electricity Connected, Natural Gas Connected

Parking

Dry Walled, Exterior Access Door

Interior

  • HeatingForced Air
  • CoolingCentral Air
  • FireplaceYes
  • # of Fireplaces2
  • FireplacesBasement, Family Room
  • StoriesTwo

Interior Features

Breakfast Bar, Built-in Features, Ceiling Fan(s), Eat-in Kitchen, Entrance Foyer, Five Piece Bath, Granite Counters, High Ceilings, Jack & Jill Bathroom, Kitchen Island, Open Floorplan, Pantry, Primary Suite, Radon Mitigation System, Smart Thermostat, Smoke Free, Walk-In Closet(s), Wet Bar

Appliances

Bar Fridge, Dishwasher, Disposal, Double Oven, Dryer, Microwave, Range, Refrigerator, Sump Pump, Washer

Exterior

  • Exterior FeaturesPrivate Yard
  • RoofComposition
  • FoundationSlab

Lot Description

Cul-De-Sac, Greenbelt, Irrigated, Landscaped, Level, Many Trees, Sprinklers In Front, Sprinklers In Rear

Windows

Bay Window(s), Window Treatments

School Information

  • DistrictPoudre R-1
  • ElementaryKruse
  • MiddleBoltz
  • HighFort Collins

Additional Information

  • Date ListedFebruary 5th, 2026
  • ZoningLMN

Listing Details

  • RE/MAX Alliance
Please provide a valid email address.

Terms and Conditions: The content relating to real estate for sale in this Web site comes in part from the Internet Data eXchange ("IDX") program of METROLIST, INC., DBA RECOLORADO® Real estate listings held by brokers other than RE/MAX Professionals are marked with the IDX Logo. This information is being provided for the consumers personal, non-commercial use and may not be used for any other purpose. All information subject to change and should be independently verified.

Copyright 2026 METROLIST, INC., DBA RECOLORADO® -- All Rights Reserved 6455 S. Yosemite St., Suite 500 Greenwood Village, CO 80111 USA

Listing information last updated on February 10th, 2026 at 11:48pm MST.