Connect

7351 Meadow View, Parker, CO – $775,000

  • 5 Beds
  • 5 Baths
  • 4,683 Sqft
  • .29 Acres
  • 5 Beds
  • 5 Baths
  • 4,683 Sqft
  • .29 Acres

New Search X

7351 Meadow View

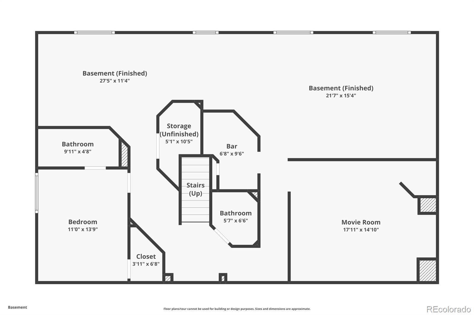
Spacious 5 bed / 5 bath home on a 0.29-acre corner lot on a cul-de-sac within the Pinery South community. Designed for functionality and open living, this 4,842 sq ft residence features real wood floors, vaulted ceilings, and a bright layout. The main floor includes a dedicated office, formal dining, and a large kitchen with upgraded cabinets, granite counters, stainless appliances, and a center island that opens to the family room and fireplace. The upper level offers a loft and a generous primary suite with dual closets and five-piece bath. Finished garden-level basement adds a fifth bedroom with ensuite bath, theater/media room, wet bar, and flexible bonus areas for gym or recreation. 3-car garage with rear entry door. Outdoor living highlights include a west-facing deck with sunset views, covered front porch, sprinkler system, and an included hot tub. Three-car garage with EV outlet and ample storage. Roof (2016), furnace & water heater (2020), and a radon mitigation system add peace of mind. Smart thermostat and lighting systems enhance energy efficiency. Located near Bayou Gulch Regional Park, Colorado Horse Park, Ponderosa High, and Sagewood Middle School, with convenient access to shopping, dining, and commuter routes into Parker and Denver. Fiber internet available. Includes 3D walkthrough and video tour

Listing Office: HomeSmart

Essential Information

  • MLS® #5224878
  • Price$775,000
  • Bedrooms5
  • Bathrooms5.00
  • Full Baths3
  • Half Baths2
  • Square Footage4,683
  • Acres0.29
  • Year Built1994
  • TypeResidential
  • Sub-TypeSingle Family Residence
  • StyleContemporary
  • StatusPending

Community Information

  • Address7351 Meadow View
  • SubdivisionThe Pinery
  • CityParker
  • CountyDouglas
  • StateCO
  • Zip Code80134

Amenities

  • Parking Spaces3
  • # of Garages3

Parking

Concrete, Dry Walled, Exterior Access Door, Finished Garage, Floor Coating

Interior

  • HeatingForced Air, Natural Gas
  • CoolingCentral Air
  • FireplaceYes
  • # of Fireplaces1
  • FireplacesFamily Room
  • StoriesTwo

Interior Features

Breakfast Bar, Ceiling Fan(s), Five Piece Bath, High Ceilings, High Speed Internet, Open Floorplan, Radon Mitigation System, Vaulted Ceiling(s), Walk-In Closet(s), Wet Bar

Appliances

Bar Fridge, Dishwasher, Disposal, Gas Water Heater, Microwave, Refrigerator, Self Cleaning Oven

Exterior

  • WindowsBay Window(s)
  • RoofComposition
  • FoundationStructural

Lot Description

Corner Lot, Cul-De-Sac, Sprinklers In Front, Sprinklers In Rear

School Information

  • DistrictDouglas RE-1
  • ElementaryNortheast
  • MiddleSagewood
  • HighPonderosa

Additional Information

  • Date ListedNovember 20th, 2025
  • ZoningPDU

Listing Details

  • HomeSmart
Please provide a valid email address.

Terms and Conditions: The content relating to real estate for sale in this Web site comes in part from the Internet Data eXchange ("IDX") program of METROLIST, INC., DBA RECOLORADO® Real estate listings held by brokers other than RE/MAX Professionals are marked with the IDX Logo. This information is being provided for the consumers personal, non-commercial use and may not be used for any other purpose. All information subject to change and should be independently verified.

Copyright 2025 METROLIST, INC., DBA RECOLORADO® -- All Rights Reserved 6455 S. Yosemite St., Suite 500 Greenwood Village, CO 80111 USA

Listing information last updated on December 5th, 2025 at 6:03pm MST.