Connect

7804 S Cherokee Trail, Centennial, CO – $762,800

  • 4 Beds
  • 4 Baths
  • 2,581 Sqft
  • .06 Acres
  • 4 Beds
  • 4 Baths
  • 2,581 Sqft
  • .06 Acres

New Search X

7804 S Cherokee Trail

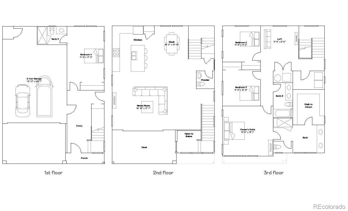
**Contact builder today about Special Financing for this home - terms and conditions apply** Available NOW! Gorgeous Overlook 3-story in the brand new Vermilion community features 4 beds (3 upper / 1 lower), 3.5 baths, loft, great room, kitchen, 2.5 car garage and crawlspace. Gorgeous finishes and upgrades throughout including Quartz package, luxury vinyl plank flooring, stainless steel appliances, spacious balcony and more. The builder provides the latest in energy efficiency and state of the art technology with several fabulous floorplans to choose from. Energy efficiency, and technology/connectivity seamlessly blended with luxury to make your new house a home. Vermilion Creek offers single family homes for every lifestyle. Close to dining, shopping, entertainment and other amenities. Photos are model only and subject to change. Finishes subject to change. Private Fencing / Whole House Blinds included with this home. Adjacent to walkway, open area. Enjoy easy access to Tagawa Gardens and the Cherry Creek Trails right outside your neighborhood

Listing Office: RE/MAX Professionals

Essential Information

  • MLS® #5301592
  • Price$762,800
  • Bedrooms4
  • Bathrooms4.00
  • Full Baths1
  • Half Baths1
  • Square Footage2,581
  • Acres0.06
  • Year Built2026
  • TypeResidential
  • Sub-TypeSingle Family Residence
  • StatusActive

Community Information

  • Address7804 S Cherokee Trail
  • SubdivisionVermilion
  • CityCentennial
  • CountyArapahoe
  • StateCO
  • Zip Code80016

Amenities

  • Parking Spaces2
  • ParkingConcrete
  • # of Garages2

Utilities

Electricity Available, Electricity Connected, Natural Gas Available, Natural Gas Connected, Phone Available

Interior

  • HeatingElectric
  • CoolingCentral Air
  • StoriesThree Or More

Interior Features

Breakfast Bar, Kitchen Island, Open Floorplan, Primary Suite, Smoke Free, Walk-In Closet(s)

Appliances

Dishwasher, Disposal, Microwave, Refrigerator

Exterior

  • WindowsDouble Pane Windows
  • RoofComposition

School Information

  • DistrictCherry Creek 5
  • ElementaryRed Hawk Ridge
  • MiddleLiberty
  • HighGrandview

Additional Information

  • Date ListedFebruary 25th, 2026

Listing Details

  • RE/MAX Professionals
Please provide a valid email address.

Terms and Conditions: The content relating to real estate for sale in this Web site comes in part from the Internet Data eXchange ("IDX") program of METROLIST, INC., DBA RECOLORADO® Real estate listings held by brokers other than RE/MAX Professionals are marked with the IDX Logo. This information is being provided for the consumers personal, non-commercial use and may not be used for any other purpose. All information subject to change and should be independently verified.

Copyright 2026 METROLIST, INC., DBA RECOLORADO® -- All Rights Reserved 6455 S. Yosemite St., Suite 500 Greenwood Village, CO 80111 USA

Listing information last updated on February 26th, 2026 at 8:48pm MST.