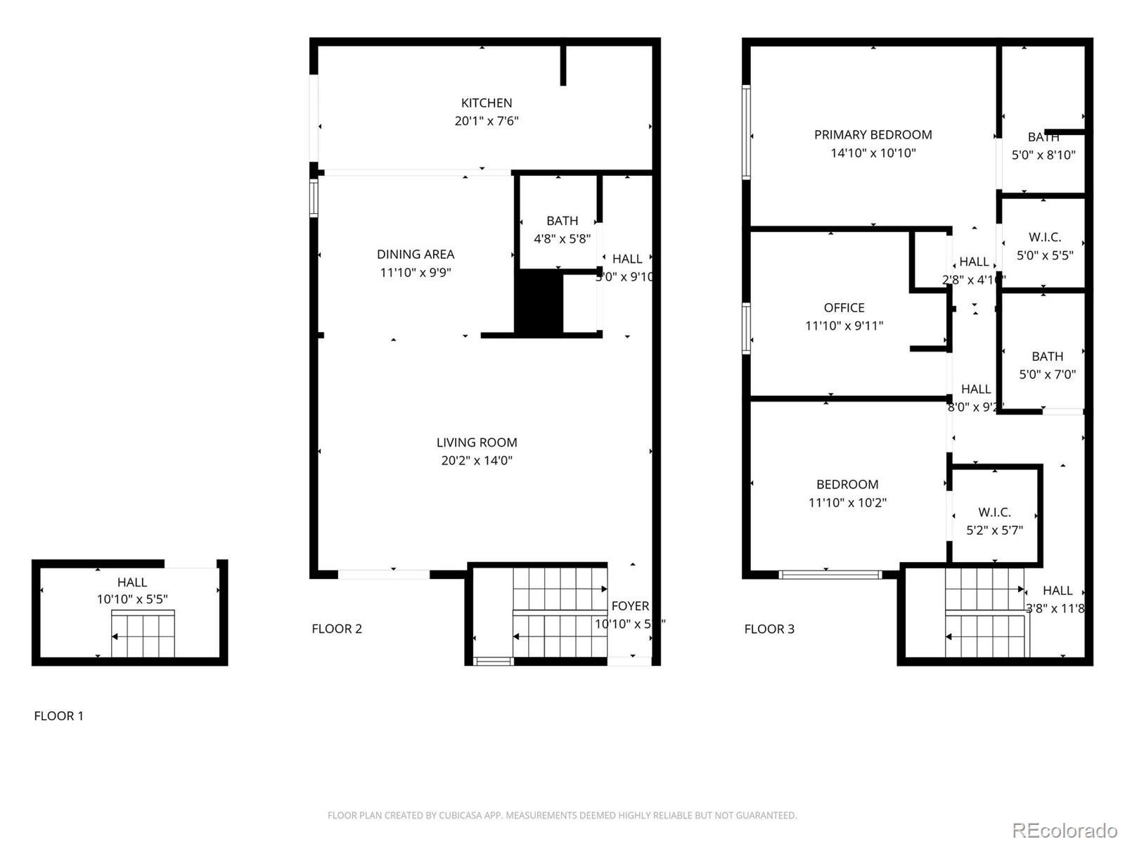
Light and bright 3 BEDROOM, 3 BATH corner unit townhome (legal description is condo) in SE Denver with over 1,500 square ft of living area and 2-assigned parking spaces in an under-cover, secure garage. The home has been remodeled to create an open living space. Double pane windows, sliding doors, and sliding interior glass doors were added. There is an in-home full size washer and dryer, granite kitchen counters, and new carpet throughout. Abundant sunlight fills the first floor which has a patio off the living area and balcony off the kitchen. The fenced private patio offers wonderful outdoor space for reading, a garden, and a place for a pet. The second floor has 3 bedrooms and 2 baths. Two of the three bedrooms have walk-in closets. The two assigned parking spaces in the garage have additional storage cabinets and are steps from the lower level entry door of the home. The building is approved for FHA loans. The HOA fee includes exterior maintenance (without roof), water, trash, sewer, snow removal, and maintenance of the grounds. Great location near Shopping, Parks, Restaurants, and the Colorado Athletic Club. The elementary school is Bradley International, a Blue Ribbon school offering a Gifted & Talented program and International Baccalaureate curriculum.
Listing Office: Wallace Properties  
 
Cable Available, Electricity Connected, Internet Access (Wired), Natural Gas Available, Phone Available
Granite Counters, Open Floorplan, Smoke Free, Walk-In Closet(s)
Landscaped, Near Public Transit
Double Pane Windows, Window Coverings
 Wallace Properties
Wallace Properties Terms and Conditions: The content relating to real estate for sale in this Web site comes in  part from the Internet Data eXchange ("IDX") program of METROLIST, INC., DBA RECOLORADO® Real estate listings held by brokers other than RE/MAX Professionals are marked with the IDX Logo. This information is being  provided for the consumers personal, non-commercial use and may not be  used for any other purpose. All information subject to change and  should be independently verified.
 Terms and Conditions: The content relating to real estate for sale in this Web site comes in  part from the Internet Data eXchange ("IDX") program of METROLIST, INC., DBA RECOLORADO® Real estate listings held by brokers other than RE/MAX Professionals are marked with the IDX Logo. This information is being  provided for the consumers personal, non-commercial use and may not be  used for any other purpose. All information subject to change and  should be independently verified.
Copyright 2025 METROLIST, INC., DBA RECOLORADO® -- All Rights Reserved 6455 S. Yosemite St., Suite 500 Greenwood Village, CO 80111 USA
Listing information last updated on October 31st, 2025 at 9:49am MDT.