Connect

3226 W Dakota Avenue, Denver, CO – $584,900

  • 3 Beds
  • 4 Baths
  • 1,521 Sqft
  • .08 Acres
  • 3 Beds
  • 4 Baths
  • 1,521 Sqft
  • .08 Acres

New Search X

3226 W Dakota Avenue

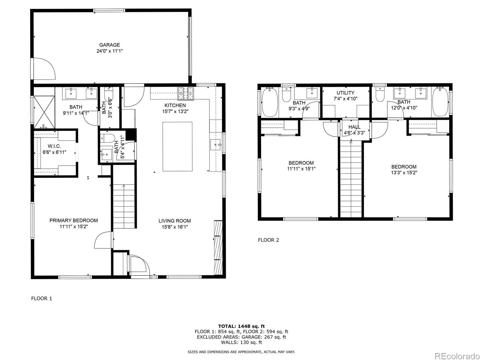
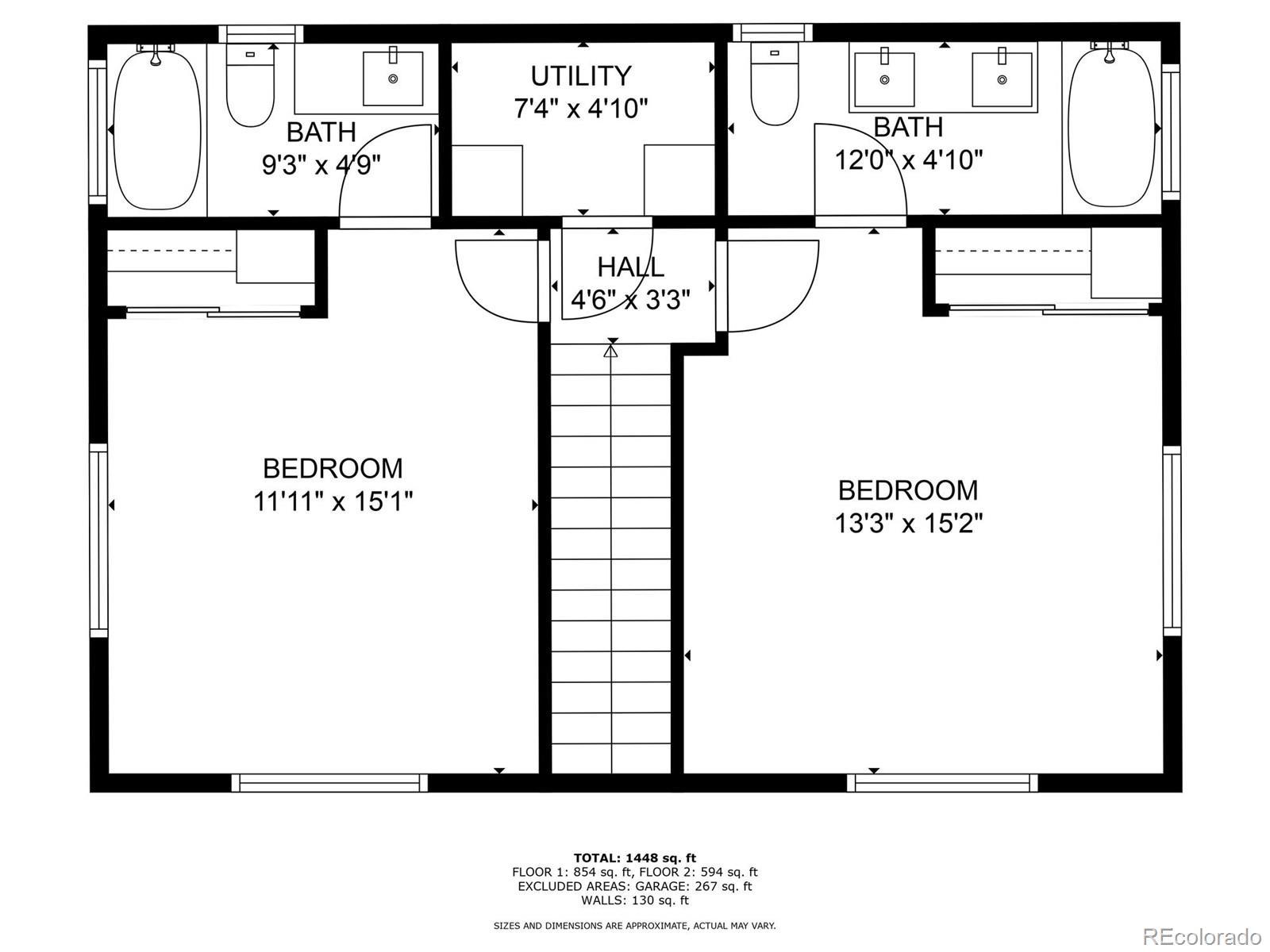
New Construction Home at 3226 W Dakota in Denver! This newly built 3-bedroom, 4-bathroom home offers a modern design and convenient layout in a great location. The main floor features an open-concept living space, including a bright living room and a functional kitchen with a central island. The spacious main-floor master suite includes a walk-in closet and a private en-suite bathroom with double sinks.Upstairs, you’ll find two additional bedrooms, each with its own en-suite bathroom, along with a conveniently located laundry area. An attached 1-car garage and shared driveway add to the home’s practicality. An attached 1-car garage and a shared driveway provide parking and storage options while maintaining low-maintenance living. Centrally located, this property is just minutes from downtown Denver, offering easy access to top dining spots, shopping centers, schools, and local entertainment. Whether you’re commuting to work, exploring the city, or enjoying the nearby mountains, this home puts everything within reach. The home is expected to be completed by mid to late March. Don’t miss this opportunity to make this your new address!

Listing Office: Legacy 100 Real Estate Partners LLC

Essential Information

  • MLS® #5378002
  • Price$584,900
  • Bedrooms3
  • Bathrooms4.00
  • Full Baths2
  • Half Baths1
  • Square Footage1,521
  • Acres0.08
  • Year Built2025
  • TypeResidential
  • Sub-TypeSingle Family Residence
  • StyleContemporary
  • StatusActive

Community Information

  • Address3226 W Dakota Avenue
  • SubdivisionWestwood
  • CityDenver
  • CountyDenver
  • StateCO
  • Zip Code80219

Amenities

  • Parking Spaces1
  • ParkingConcrete, Tandem
  • # of Garages1

Interior

  • HeatingForced Air
  • CoolingCentral Air
  • StoriesTwo

Interior Features

Eat-in Kitchen, Kitchen Island, Open Floorplan, Primary Suite, Walk-In Closet(s)

Appliances

Dishwasher, Disposal, Oven, Refrigerator

Exterior

  • Exterior FeaturesPrivate Yard, Rain Gutters
  • Lot DescriptionLevel
  • WindowsDouble Pane Windows
  • RoofComposition

School Information

  • DistrictDenver 1
  • ElementaryMunroe
  • MiddleKepner
  • HighWest

Additional Information

  • Date ListedJanuary 20th, 2025
  • ZoningE-TU-C

Listing Details

Legacy 100 Real Estate Partners LLC

Please provide a valid email address.

Terms and Conditions: The content relating to real estate for sale in this Web site comes in part from the Internet Data eXchange ("IDX") program of METROLIST, INC., DBA RECOLORADO® Real estate listings held by brokers other than RE/MAX Professionals are marked with the IDX Logo. This information is being provided for the consumers personal, non-commercial use and may not be used for any other purpose. All information subject to change and should be independently verified.

Copyright 2025 METROLIST, INC., DBA RECOLORADO® -- All Rights Reserved 6455 S. Yosemite St., Suite 500 Greenwood Village, CO 80111 USA

Listing information last updated on November 5th, 2025 at 11:33pm MST.