Connect

8530 W 52nd Avenue A3, Arvada, CO – $645,000

  • $645k Price
  • 4 Beds
  • 3 Baths
  • 1,967 Sqft
  • $645k Price
  • 4 Beds
  • 3 Baths
  • 1,967 Sqft

New Search X

8530 W 52nd Avenue A3

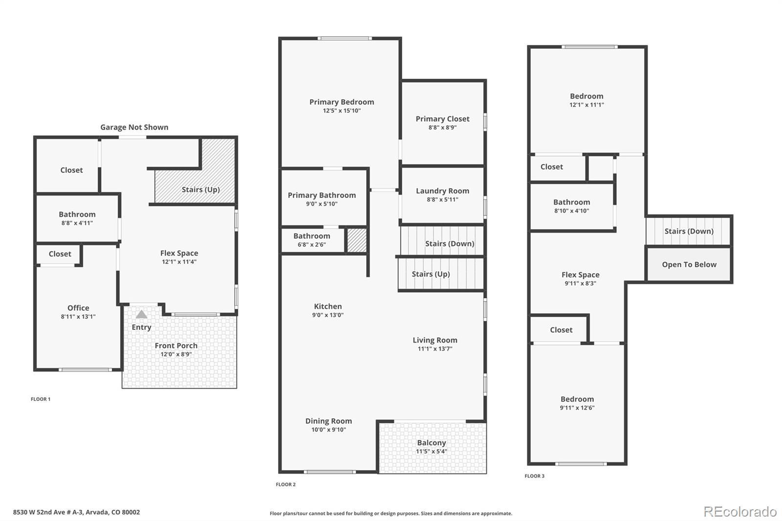
Welcome to Hidden Acres, an exclusive collection of 16 oversized townhomes offering 1800 to 2,100 square feet of thoughtfully designed living space. These bright, modern residences feature open concept floorplans with 3 to 4 bedrooms and 3 to 4 bathrooms, elevated finishes, and clean contemporary design throughout. On the main level, enjoy a dedicated office with a closet, ideal as a conforming bedroom, plus an additional flex space perfect for a media room or second living area, and a full bath. A utility closet and a potential mudroom space just off the stairs add everyday convenience. The second level is the heart of the home, where the kitchen, dining, and living areas flow seamlessly together. The primary suite is also on this level and includes an expansive walk in closet and a spa like bath with a double vanity. An oversized laundry room offers space for a utility sink and extra storage. Upstairs, the third floor includes two secondary bedrooms, great for kids, guests, or roommates, along with an additional flex space and a full bath, ideal for a home office, reading nook, or bonus retreat. Perfectly positioned near Olde Town Arvada, you will love having a walkable Main Street district filled with local shops, boutiques, galleries, restaurants, breweries, and even a winery, plus a packed calendar of community events, live music, and seasonal festivals. Olde Town also features a designated sip and stroll zone, allowing you to enjoy a beverage from participating locations within the district during posted hours. Minutes to Golden and within easy reach of downtown Denver, Berkeley, and Tennyson Street, this is low maintenance living in a standout new community, complete with a low, nominal HOA.

Listing Office: MODUS Real Estate

Essential Information

  • MLS® #5386064
  • Price$645,000
  • Bedrooms4
  • Bathrooms3.00
  • Full Baths2
  • Square Footage1,967
  • Acres0.00
  • Year Built2025
  • TypeResidential
  • Sub-TypeTownhouse
  • StyleContemporary
  • StatusActive

Community Information

  • Address8530 W 52nd Avenue A3
  • SubdivisionHidden Acres
  • CityArvada
  • CountyJefferson
  • StateCO
  • Zip Code80002

Amenities

  • Parking Spaces2
  • # of Garages2

Utilities

Cable Available, Electricity Available, Electricity Connected, Natural Gas Connected

Parking

220 Volts, Dry Walled, Oversized, Storage

Interior

  • HeatingForced Air, Natural Gas
  • CoolingCentral Air
  • StoriesTri-Level

Appliances

Dishwasher, Disposal, Gas Water Heater, Microwave, Oven, Range, Refrigerator, Self Cleaning Oven

Exterior

  • WindowsDouble Pane Windows
  • RoofShingle

Exterior Features

Balcony, Garden, Lighting, Rain Gutters, Smart Irrigation

School Information

  • DistrictJefferson County R-1
  • ElementaryArvada K-8
  • MiddleNorth Arvada
  • HighArvada

Additional Information

  • Date ListedFebruary 4th, 2026

Listing Details

  • MODUS Real Estate
Please provide a valid email address.

Terms and Conditions: The content relating to real estate for sale in this Web site comes in part from the Internet Data eXchange ("IDX") program of METROLIST, INC., DBA RECOLORADO® Real estate listings held by brokers other than RE/MAX Professionals are marked with the IDX Logo. This information is being provided for the consumers personal, non-commercial use and may not be used for any other purpose. All information subject to change and should be independently verified.

Copyright 2026 METROLIST, INC., DBA RECOLORADO® -- All Rights Reserved 6455 S. Yosemite St., Suite 500 Greenwood Village, CO 80111 USA

Listing information last updated on February 9th, 2026 at 12:19am MST.