Connect

8705 Cloverleaf Circle, Parker, CO – $520,000

  • 4 Beds
  • 4 Baths
  • 1,848 Sqft
  • .09 Acres
  • 4 Beds
  • 4 Baths
  • 1,848 Sqft
  • .09 Acres

New Search X

8705 Cloverleaf Circle

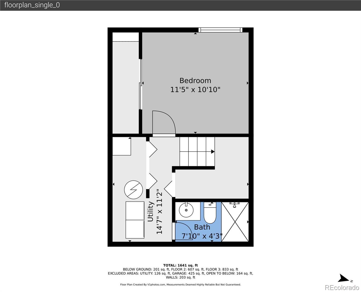
Welcome to this four-bedroom, four-bathroom home located in Cottonwood! This charming home offers thoughtful updates throughout, including fresh paint, brand new carpet, updated lighting and more! The main level boasts an open concept layout with a bright living room that features soaring high ceilings, a stylish dining area, and a spacious kitchen with ample amounts of cabinetry and generous counter space. Plus, all appliances included, talk about move-in ready! Upstairs, the primary suite offers vaulted ceilings, plenty of space, natural light, and access to a private en-suite bathroom with a double vanity and a shower/tub combo, how perfect! Two additional bedrooms, a full bathroom, and a versatile office are found upstairs, perfect for working from home. But wait, there's more! Head downstairs to the finished basement, which adds even more room to grow with the fourth bedroom, a full bathroom, and the laundry room, ideal for guests or a teen retreat. Venture outside to the backyard oasis, where you will find a spacious patio and grass area, great for kids, pets, and hosting outdoor gatherings. Nestled in the heart of Parker, you will love the prime location offering easy access to just about anywhere, including I-25, Denver Technology Center, Downtown Denver and Denver International Airport! Just minutes from historic Main Street in Downtown Parker, this home puts you at the heart of a vibrant and welcoming community. Stroll along charming streets lined with locally owned boutiques, coffee shops, and one-of-a-kind stores, or enjoy a night out at one of the many dining spots. Plenty of shopping, dining, and entertainment options are right across the street and include Boondocks, Trader Joe's, Paris Baguette, and more! For those who love the outdoors, there’s easy access to miles of walking and biking trails, beautiful parks, and the nearby Rueter-Hess Reservoir, offering paddleboarding, fishing and scenic views. This home truly offers the best of Colorado living!

Listing Office: EXIT Realty DTC, Cherry Creek, Pikes Peak.

Essential Information

  • MLS® #5399263
  • Price$520,000
  • Bedrooms4
  • Bathrooms4.00
  • Full Baths3
  • Half Baths1
  • Square Footage1,848
  • Acres0.09
  • Year Built1995
  • TypeResidential
  • Sub-TypeSingle Family Residence
  • StyleTraditional
  • StatusPending

Community Information

  • Address8705 Cloverleaf Circle
  • SubdivisionCottonwood
  • CityParker
  • CountyDouglas
  • StateCO
  • Zip Code80134

Amenities

  • Parking Spaces2
  • # of Garages2

Utilities

Cable Available, Internet Access (Wired)

Parking

Concrete, Dry Walled, Lighted

Interior

  • HeatingForced Air
  • CoolingCentral Air
  • StoriesTwo

Interior Features

Breakfast Bar, Ceiling Fan(s), High Ceilings, High Speed Internet, Jack & Jill Bathroom, Open Floorplan, Pantry, Primary Suite, Smoke Free, Vaulted Ceiling(s)

Appliances

Dishwasher, Disposal, Dryer, Gas Water Heater, Microwave, Range, Refrigerator, Self Cleaning Oven, Washer

Exterior

  • Exterior FeaturesPrivate Yard, Rain Gutters
  • WindowsDouble Pane Windows
  • RoofComposition

Lot Description

Irrigated, Landscaped, Near Public Transit, Sprinklers In Front, Sprinklers In Rear

School Information

  • DistrictDouglas RE-1
  • ElementaryPine Lane Prim/Inter
  • MiddleSierra
  • HighChaparral

Additional Information

  • Date ListedSeptember 18th, 2025
  • ZoningPDU

Listing Details

EXIT Realty DTC, Cherry Creek, Pikes Peak.

Please provide a valid email address.

Terms and Conditions: The content relating to real estate for sale in this Web site comes in part from the Internet Data eXchange ("IDX") program of METROLIST, INC., DBA RECOLORADO® Real estate listings held by brokers other than RE/MAX Professionals are marked with the IDX Logo. This information is being provided for the consumers personal, non-commercial use and may not be used for any other purpose. All information subject to change and should be independently verified.

Copyright 2025 METROLIST, INC., DBA RECOLORADO® -- All Rights Reserved 6455 S. Yosemite St., Suite 500 Greenwood Village, CO 80111 USA

Listing information last updated on December 2nd, 2025 at 8:03am MST.