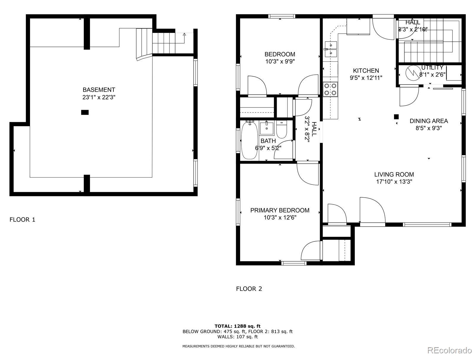
Price Improvement on this Beautiful Home on Expansive Lot in Harvey Park/Mar Lee! Welcome to your new beginning in one of Denver’s most sought-after neighborhoods. This inviting home sits on a generous 7,860 Square Foot lot in the established Harvey Park/Mar Lee area, giving you space to grow, entertain, garden, or simply enjoy the great outdoors—hard to find at this price point! Inside, you’ll find a cozy and practical layout typical of Denver starter homes, with bedrooms, versatile living spaces, and abundant natural light. You'll appreciate the comfortable bungalow style living and practical updates as well a fully finished basement, providing extra living space perfect for a family room, home office, or guest retreat. Enjoy the flexibility to customize this versatile area to suit your needs, making it ideal for entertaining or comfortable everyday living. Loads of Updates Throughout! Newer Kitchen and Bathroom. All Appliances stay with the property. Main floor laundry. Newer Furnace and AC. Fresh paint inside and out. Newer double pane windows. Newer Electric Service Panel, Refinished Red Oak Hardwood Floors. Classic Coved Ceilings. Whether you’re a first-time homeowner or looking to right-size, this property delivers the ideal foundation. Key Features: Large lot—over 7,800 Sq Ft—for future expansion, gardening, or pets. Situated between Harvey Park and Mar Lee, both known for quiet streets, park access, and a true neighborhood feel. Quick access to city amenities, schools, and light rail. Ample space for outdoor entertaining or future additions. Perfect for buyers seeking a property with long-term value in an up-and-coming part of Denver. This property qualifies for the Affordable Home Mortgage - a 3% Down Payment, Closing Cost Assistance, and No PMI! Ready to make your move? Schedule your showing today and discover the charm of Denver’s best-kept secret for new homeowners!
Listing Office: Your Castle Realty LLC  
 
Air Conditioning-Room, Central Air
 Your Castle Realty LLC
Your Castle Realty LLC Terms and Conditions: The content relating to real estate for sale in this Web site comes in  part from the Internet Data eXchange ("IDX") program of METROLIST, INC., DBA RECOLORADO® Real estate listings held by brokers other than RE/MAX Professionals are marked with the IDX Logo. This information is being  provided for the consumers personal, non-commercial use and may not be  used for any other purpose. All information subject to change and  should be independently verified.
 Terms and Conditions: The content relating to real estate for sale in this Web site comes in  part from the Internet Data eXchange ("IDX") program of METROLIST, INC., DBA RECOLORADO® Real estate listings held by brokers other than RE/MAX Professionals are marked with the IDX Logo. This information is being  provided for the consumers personal, non-commercial use and may not be  used for any other purpose. All information subject to change and  should be independently verified.
Copyright 2025 METROLIST, INC., DBA RECOLORADO® -- All Rights Reserved 6455 S. Yosemite St., Suite 500 Greenwood Village, CO 80111 USA
Listing information last updated on October 31st, 2025 at 7:18am MDT.