Connect

3411-3429 W 38th Avenue, Denver, CO – $2,100,000

  • $2.1M Price
  • .29 Acres
  • $2.1M Price
  • .29 Acres

New Search X

3411-3429 W 38th Avenue

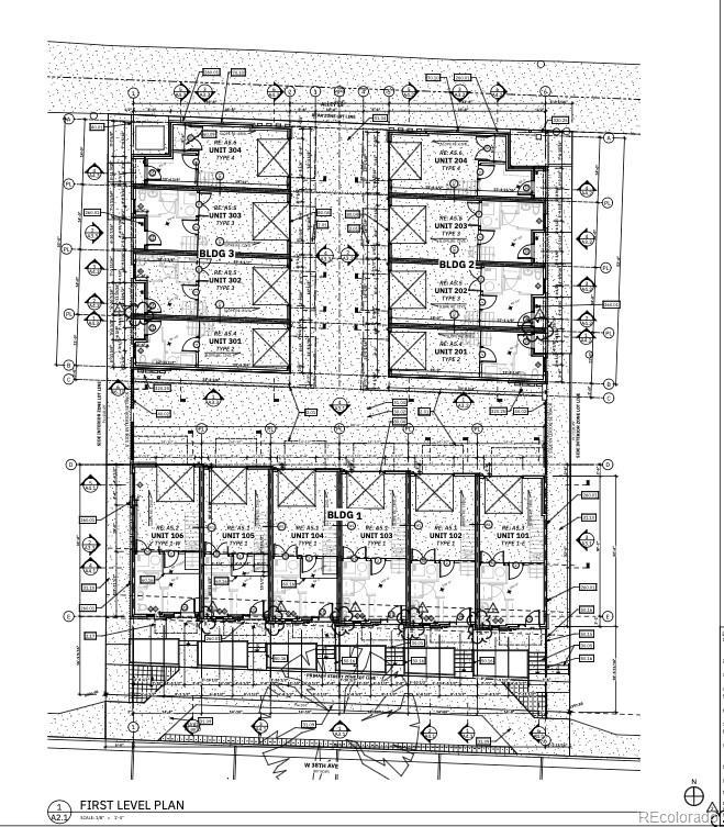
DEVELOPMENT PROJECT - Plans approved for 14 townhomes. SDP approved prior to the expanded affordable housing requirement ** Each townhome is 2 beds / 2.5 baths, ranging from 1,000-1,400 square feet. Each home has private outdoor space (roof deck or balcony) and private, one-car garage. ** Units are all fee simple, no HOA (party wall only.) Floor plans designed for individual sale to owner-occupants or for rental tenants. Sell or lease each individual unit separately, allowing for maximum exit flexibility. ** Ideal location in Berkeley/Tennyson, Highlands neighborhood of NW Denver. Ten blocks to Tennyson corridor, within one block of multiple coffee shops, restaurants, and personal care services (e.g. nail and hair salon, dentist, etc.) Quick access to I-25 and I-70. ** List price includes architectural plans, structural plans, MEP, soil, environmental testing, survey, permit review fees, as these are completed. Current addresses are 3411+3417, 3425+3429 W 38th Ave. New addresses have been assigned to building plans.

Listing Office: Red Lodge Realty

Essential Information

  • MLS® #5442770
  • Price$2,100,000
  • Bathrooms0.00
  • Acres0.29
  • TypeLand
  • Sub-TypeImproved Land
  • StatusActive

Community Information

  • Address3411-3429 W 38th Avenue
  • SubdivisionBerkeley
  • CityDenver
  • CountyDenver
  • StateCO
  • Zip Code80211

Amenities

  • ParkingDry Walled, Parking Lot

Utilities

Electricity Available, Electricity Connected, Natural Gas Available, Natural Gas Connected, Sewer Connected

School Information

  • DistrictDenver 1

Additional Information

  • Date ListedSeptember 16th, 2025
  • ZoningU-MS-3

Listing Details

  • Red Lodge Realty
Please provide a valid email address.

Terms and Conditions: The content relating to real estate for sale in this Web site comes in part from the Internet Data eXchange ("IDX") program of METROLIST, INC., DBA RECOLORADO® Real estate listings held by brokers other than RE/MAX Professionals are marked with the IDX Logo. This information is being provided for the consumers personal, non-commercial use and may not be used for any other purpose. All information subject to change and should be independently verified.

Copyright 2025 METROLIST, INC., DBA RECOLORADO® -- All Rights Reserved 6455 S. Yosemite St., Suite 500 Greenwood Village, CO 80111 USA

Listing information last updated on December 31st, 2025 at 11:03am MST.