Connect

2143 S Acoma Street, Denver, CO – $1,349,900

  • 10 Beds
  • 6 Baths
  • 4,239 Sqft
  • .17 Acres
  • 10 Beds
  • 6 Baths
  • 4,239 Sqft
  • .17 Acres

New Search X

2143 S Acoma Street

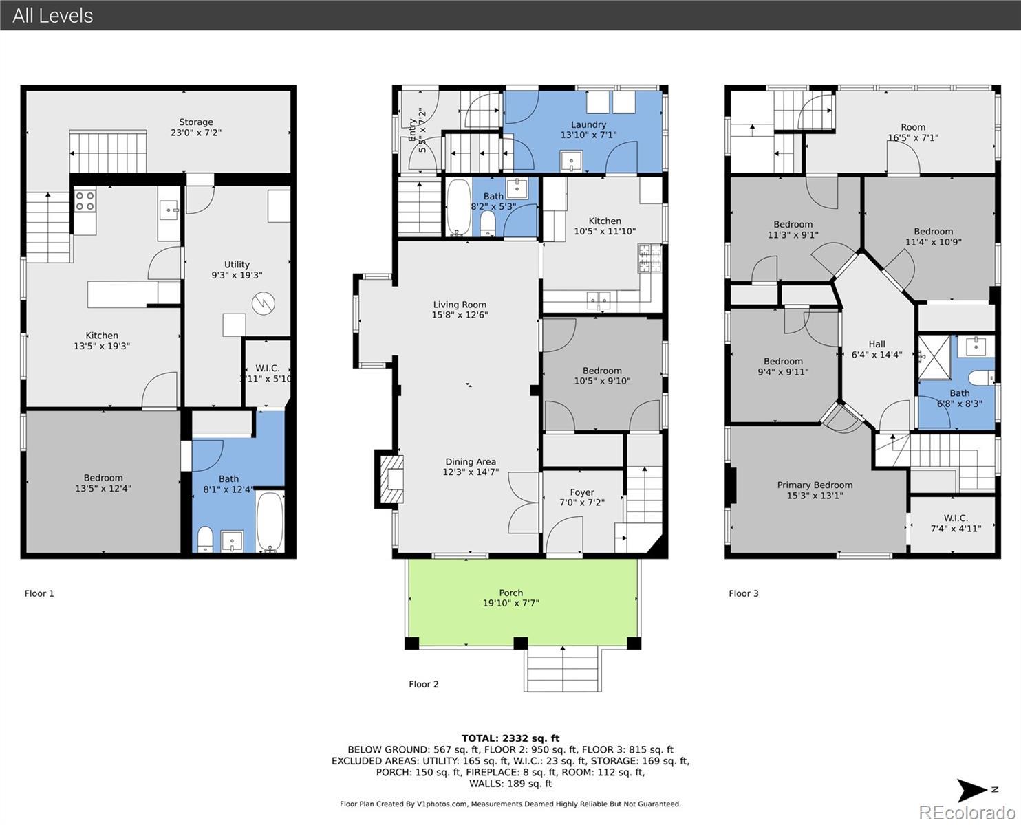
225k IN PRICE IMPROVEMENTS! Incredible opportunity in the HOT SoBo neighborhood! Own a vintage Victorian with $4,300-$5,300 monthly extra income potential to help pay the mortgage OR potential 8K+ if fully rented from a finished basement apartment AND a newly constructed (2021) 2-story Guest House (3 Units and over 4200+ finished sf). This unique property combines classic charm with modern updates and multiple living configurations. The main home features a large covered front porch, welcoming foyer, grand living and dining rooms, a main-floor bedroom/office, full bath, and a spacious laundry/mudroom. The updated kitchen offers functionality and style. Upstairs boasts a large primary bedroom with walk-in closet, 3 additional bedrooms, a fully remodeled bath, and a bright sunroom with stunning mountain and sunset views. The separate basement apartment includes its own entrance, updated kitchen, living room, bedroom, full bath, and generous storage space—with room to expand or customize. The newly built Guest House features a modern kitchen with solid-surface countertops, breakfast bar, and stainless steel appliances. The open living room includes a wall-mounted fireplace. Upstairs you’ll find 2 primary suites, each with en-suite baths and walk-in closets. The main level also includes 2 additional bedrooms and a full bath. Perfect for multigenerational living, Airbnb, or investment! Located 1 block off vibrant South Broadway, near light rail, with quick highway access. Minutes to DU and close to restaurants, shopping and so much more! The possibilities are endless in this ready for move-in property!

Listing Office: MSC Real Estate Advisors

Essential Information

  • MLS® #5508703
  • Price$1,349,900
  • Bedrooms10
  • Bathrooms6.00
  • Square Footage4,239
  • Acres0.17
  • Year Built1903
  • TypeResidential Income
  • Sub-TypeTriplex
  • StyleUrban Contemporary, Victorian
  • StatusActive

Community Information

  • Address2143 S Acoma Street
  • SubdivisionRosedale
  • CityDenver
  • CountyDenver
  • StateCO
  • Zip Code80223

Amenities

  • Parking Spaces5
  • ParkingGravel
  • ViewMountain(s)

Utilities

Electricity Connected, Internet Access (Wired), Natural Gas Connected

Interior

  • HeatingForced Air, Natural Gas
  • CoolingCentral Air
  • FireplaceYes
  • # of Fireplaces2
  • FireplacesDining Room, Living Room
  • StoriesTwo

Interior Features

Ceiling Fan(s), Entrance Foyer, High Ceilings, Kitchen Island, Open Floorplan, Pantry, Primary Suite, Vaulted Ceiling(s), Walk-In Closet(s)

Appliances

Dishwasher, Disposal, Dryer, Electric Water Heater, Microwave, Oven, Range, Range Hood, Refrigerator, Washer

Exterior

  • Exterior FeaturesPrivate Yard
  • Lot DescriptionLevel, Sprinklers In Front
  • RoofComposition

Foundation

Block, Concrete Perimeter, Slab

School Information

  • DistrictDenver 1
  • ElementaryAsbury
  • MiddleGrant
  • HighSouth

Additional Information

  • Date ListedMay 29th, 2025
  • ZoningU-RH-2.5

Listing Details

  • MSC Real Estate Advisors
Please provide a valid email address.

Terms and Conditions: The content relating to real estate for sale in this Web site comes in part from the Internet Data eXchange ("IDX") program of METROLIST, INC., DBA RECOLORADO® Real estate listings held by brokers other than RE/MAX Professionals are marked with the IDX Logo. This information is being provided for the consumers personal, non-commercial use and may not be used for any other purpose. All information subject to change and should be independently verified.

Copyright 2025 METROLIST, INC., DBA RECOLORADO® -- All Rights Reserved 6455 S. Yosemite St., Suite 500 Greenwood Village, CO 80111 USA

Listing information last updated on November 7th, 2025 at 7:33am MST.