Connect

2151 Elizabeth Drive, Parker, CO – $1,700,000

  • 3 Beds
  • 2 Baths
  • 2,592 Sqft
  • 35 Acres
  • 3 Beds
  • 2 Baths
  • 2,592 Sqft
  • 35 Acres

New Search X

2151 Elizabeth Drive

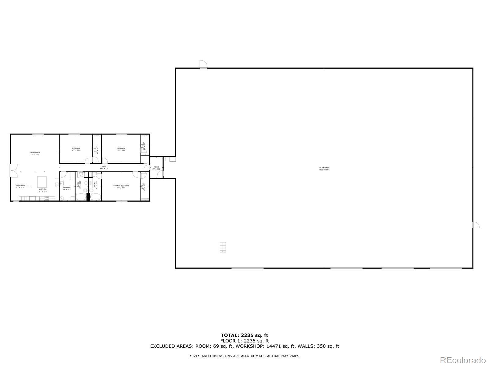
Can I tell you about the house that could actually PAY you to own it? This isn’t your average acreage property. On 35 wide-open acres, you’ll find a solidly built 3-bedroom, 2-bath ranch-style home with 2x6 construction, 5/8” drywall, and 2,592 sq. ft. of practical, no-nonsense living space. But that’s just the beginning. Attached to the home is a 15,000 sq. ft. building, and here’s where things get interesting. A rare zoning variance allows an indoor storage business, and the current rates are about $10 per linear foot. The current owner is already operating a successful storage business, and many of the existing renters want to stay, which means this is a turnkey income opportunity from day one. You can keep the business running as it is, expand it, or reimagine the space entirely. The current owner also uses part of the building for an RV and boat repair shop, and there is an upper-level storage area that could be expanded to generate even more revenue. This property gives you options. You can continue the storage business and add new services. You can live onsite and manage it yourself. You can rent out the house to employees or tenants while focusing on the storage side. Agricultural zoning keeps the possibilities wide open. There is more here than just the business potential. A lofting shed, chicken coop, small orchard, a small shooting range, and a backup generator all add to the property’s appeal. No gimmicks and no fluff, just a unique opportunity for someone who thinks differently. If you are looking for “typical,” this isn’t it. If you have been waiting for the kind of opportunity that lets you live your life your way with built-in income and room to grow, you will want to see this one for yourself.

Listing Office: Real Broker, LLC DBA Real

Essential Information

  • MLS® #5690651
  • Price$1,700,000
  • Bedrooms3
  • Bathrooms2.00
  • Full Baths2
  • Square Footage2,592
  • Acres35.00
  • Year Built2016
  • TypeResidential
  • Sub-TypeSingle Family Residence
  • StatusActive

Community Information

  • Address2151 Elizabeth Drive
  • SubdivisionMeadowbrook Ranch
  • CityParker
  • CountyElbert
  • StateCO
  • Zip Code80138

Amenities

  • UtilitiesElectricity Connected
  • Parking Spaces3
  • ViewPlains

Interior

  • HeatingForced Air
  • CoolingNone
  • StoriesOne

Interior Features

Eat-in Kitchen, Kitchen Island

Appliances

Dishwasher, Microwave, Range, Refrigerator

Exterior

  • Lot DescriptionCul-De-Sac, Sloped
  • RoofComposition

School Information

  • DistrictDouglas RE-1
  • ElementaryNortheast
  • MiddleSagewood
  • HighPonderosa

Additional Information

  • Date ListedSeptember 3rd, 2025
  • ZoningA

Listing Details

  • Real Broker, LLC DBA Real
Please provide a valid email address.

Terms and Conditions: The content relating to real estate for sale in this Web site comes in part from the Internet Data eXchange ("IDX") program of METROLIST, INC., DBA RECOLORADO® Real estate listings held by brokers other than RE/MAX Professionals are marked with the IDX Logo. This information is being provided for the consumers personal, non-commercial use and may not be used for any other purpose. All information subject to change and should be independently verified.

Copyright 2026 METROLIST, INC., DBA RECOLORADO® -- All Rights Reserved 6455 S. Yosemite St., Suite 500 Greenwood Village, CO 80111 USA

Listing information last updated on February 10th, 2026 at 6:04pm MST.