Connect

275 Tam O Shanter Way, Monument, CO – $1,075,000

  • 3 Beds
  • 4 Baths
  • 4,353 Sqft
  • .68 Acres
  • 3 Beds
  • 4 Baths
  • 4,353 Sqft
  • .68 Acres

New Search X

275 Tam O Shanter Way

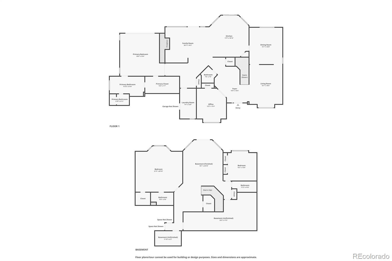
Welcome to your peaceful retreat in the heart of Woodmoor, perfectly positioned along the third hole of the Woodmoor Golf Course with stunning mountain views. This spacious ranch style home offers true main level living and an inviting layout designed for comfort and convenience. Step into a welcoming foyer that flows into a dedicated office with French doors and a closet, ideal for working from home. The living room features built ins, a gas fireplace, and a sliding glass door that leads to an expansive deck where you can enjoy breathtaking mountain views and unparalleled golf course scenery. The kitchen is spacious with abundant counter space, a gas range, and a large eat in dining area. The formal dining room has a dual sided fireplace shared with the adjoining family room, creating the perfect setting for gatherings and celebrating life’s moments. The primary suite is a relaxing retreat with deck access, a walk in closet that connects from the bedroom and the primary bathroom, and beautiful views to wake up to every morning. The main level also includes a powder room and a convenient laundry room with access to the garage. The walkout basement offers even more space, including a family room with patio access and mountain views, two large bedrooms, one with an ensuite bathroom and walk in closet, a second laundry room, a hall bathroom, a safe room, and massive storage areas including access to an impressively tall crawl space and stairs that lead directly to the garage. This home has been lovingly maintained. While the finishes are ready for updating, the potential is extraordinary. Woodmoor Country Club members enjoy golf, tennis, pickleball, fitness facilities, and dining. Come experience the lifestyle, setting, and space that make this property a rare opportunity in Woodmoor.

Listing Office: eXp Realty, LLC

Essential Information

  • MLS® #5707981
  • Price$1,075,000
  • Bedrooms3
  • Bathrooms4.00
  • Full Baths3
  • Half Baths1
  • Square Footage4,353
  • Acres0.68
  • Year Built1992
  • TypeResidential
  • Sub-TypeSingle Family Residence
  • StatusActive

Community Information

  • Address275 Tam O Shanter Way
  • SubdivisionWoodmoor Country Club
  • CityMonument
  • CountyEl Paso
  • StateCO
  • Zip Code80132

Amenities

  • Parking Spaces3
  • # of Garages3
  • ViewGolf Course, Mountain(s)

Amenities

Clubhouse, Golf Course, Pool, Security, Tennis Court(s), Trail(s)

Utilities

Cable Available, Electricity Connected, Natural Gas Connected

Parking

Circular Driveway, Concrete, Exterior Access Door, Insulated Garage, Oversized, Storage

Interior

  • HeatingForced Air, Natural Gas
  • CoolingNone
  • FireplaceYes
  • # of Fireplaces2
  • StoriesOne

Interior Features

Built-in Features, Ceiling Fan(s), Entrance Foyer, Five Piece Bath, High Ceilings, High Speed Internet, Kitchen Island, Open Floorplan, Pantry, Primary Suite, Smoke Free, Vaulted Ceiling(s), Walk-In Closet(s)

Appliances

Dishwasher, Disposal, Microwave, Oven, Range, Refrigerator

Fireplaces

Dining Room, Family Room, Gas, Living Room

Exterior

  • Exterior FeaturesPrivate Yard
  • RoofConcrete
  • FoundationSlab

Lot Description

Fire Mitigation, Landscaped, Many Trees

Windows

Double Pane Windows, Window Coverings, Window Treatments

School Information

  • DistrictLewis-Palmer 38
  • ElementaryLewis-Palmer
  • MiddleLewis-Palmer
  • HighPalmer Ridge

Additional Information

  • Date ListedOctober 30th, 2025
  • ZoningRS-20000

Listing Details

  • eXp Realty, LLC
Please provide a valid email address.

Terms and Conditions: The content relating to real estate for sale in this Web site comes in part from the Internet Data eXchange ("IDX") program of METROLIST, INC., DBA RECOLORADO® Real estate listings held by brokers other than RE/MAX Professionals are marked with the IDX Logo. This information is being provided for the consumers personal, non-commercial use and may not be used for any other purpose. All information subject to change and should be independently verified.

Copyright 2025 METROLIST, INC., DBA RECOLORADO® -- All Rights Reserved 6455 S. Yosemite St., Suite 500 Greenwood Village, CO 80111 USA

Listing information last updated on November 4th, 2025 at 9:48pm MST.