Connect

4465 W Yale Avenue, Denver, CO – $665,000

  • 4 Beds
  • 3 Baths
  • 1,998 Sqft
  • .2 Acres
  • 4 Beds
  • 3 Baths
  • 1,998 Sqft
  • .2 Acres

New Search X

4465 W Yale Avenue

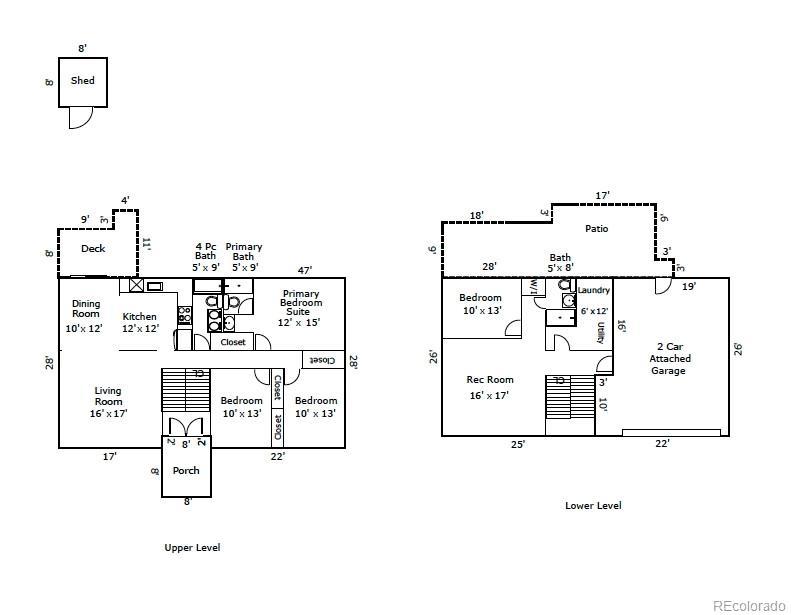
Rarely available, this home is one of a limited number of properties with the opportunity for membership to the private Lakeridge Association amenities just northwest of the property. Beaming with natural light and set on a sprawling 8,700-square-foot lot, this bi-level home offers unforgettable outdoor living with breathtaking, unobstructed mountain views. Inside, the atmosphere is bright and inviting, with two spacious living rooms, including one anchored by a classic wood-burning fireplace that creates a warm focal point. All bathrooms have been updated and two feature new glass shower doors, adding modern style to the home’s functional layout. With all appliances included, this property is truly move-in ready. Outside, you will find a deck, large yard, patio, dog run, an oversized two-car garage, three additional off-street parking spaces, and extra room for an RV or boat. Recent upgrades provide peace of mind, including a brand-new roof (2026), new water heater (2026), updated electrical panel (2026), and a Level 2 EV charger (2026). Owners may choose to join the local voluntary association for $850 per year, which includes exclusive access to Wolcott Lake, non-motorized watercraft friendly, a main dock, beachfront area, pavilion and patio, barbeque pit, picnic area, walking path, tennis court, basketball court, playground, volleyball lawn, and parking lot, all extending the outdoor lifestyle value well beyond the home itself. Optional association details are available at LAKERIDGEDENVER.COM. With its rare private-lake membership, all-above ground living, extensive updates, and exceptional mountain-view setting, this home is a unique find in Denver.

Listing Office: Compass - Denver

Essential Information

  • MLS® #5710719
  • Price$665,000
  • Bedrooms4
  • Bathrooms3.00
  • Full Baths1
  • Square Footage1,998
  • Acres0.20
  • Year Built1971
  • TypeResidential
  • Sub-TypeSingle Family Residence
  • StatusActive

Community Information

  • Address4465 W Yale Avenue
  • SubdivisionHarvey Park
  • CityDenver
  • CountyDenver
  • StateCO
  • Zip Code80219

Amenities

  • Parking Spaces6
  • # of Garages2
  • ViewMountain(s)
  • Is WaterfrontYes
  • WaterfrontLake Front

Interior

  • HeatingForced Air
  • CoolingCentral Air
  • FireplaceYes
  • # of Fireplaces1
  • FireplacesBasement
  • StoriesBi-Level

Interior Features

Ceiling Fan(s), Granite Counters, Open Floorplan, Primary Suite, Smoke Free

Appliances

Dishwasher, Dryer, Range, Refrigerator, Washer

Exterior

  • Exterior FeaturesDog Run, Private Yard
  • RoofShingle
  • FoundationSlab

School Information

  • DistrictDenver 1
  • ElementaryDoull
  • MiddleHenry
  • HighJohn F. Kennedy

Additional Information

  • Date ListedMarch 5th, 2026
  • ZoningS-SU-D

Listing Details

  • Compass - Denver
Please provide a valid email address.

Terms and Conditions: The content relating to real estate for sale in this Web site comes in part from the Internet Data eXchange ("IDX") program of METROLIST, INC., DBA RECOLORADO® Real estate listings held by brokers other than RE/MAX Professionals are marked with the IDX Logo. This information is being provided for the consumers personal, non-commercial use and may not be used for any other purpose. All information subject to change and should be independently verified.

Copyright 2026 METROLIST, INC., DBA RECOLORADO® -- All Rights Reserved 6455 S. Yosemite St., Suite 500 Greenwood Village, CO 80111 USA

Listing information last updated on March 5th, 2026 at 10:33pm MST.