Connect

1025 N Acoma Street, Denver, CO – $3,250,000

  • $3.3M Price
  • 6,626 Sqft
  • .26 Acres
  • $3.3M Price
  • 6,626 Sqft
  • .26 Acres

New Search X

1025 N Acoma Street

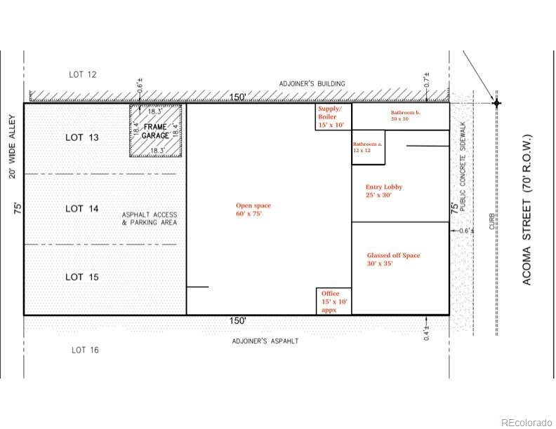
This prime spaces offers many options. With a clear height of 12' and a drive-in garage door, accessed through the alley. There are essentially two spaces that can be used together or separately. The rear, warehouse open space, is approximately 4600 sq/ft of space that could be used for storage, workshop, gym, beer garden, staging and so much more. In the front portion of the building is an additional 2000 sq/ft that could be offices, retails space, waiting room, showroom, or more. It also houses the two restrooms which are complete with showers and changing space. Out back you will find a paved surface lot with 10 parking spaces. In addition there is also a separate 2 car garage making for 12 parking spots.

Listing Office: My Denver Real Estate

Essential Information

  • MLS® #5816724
  • Price$3,250,000
  • Bathrooms0.00
  • Square Footage6,626
  • Acres0.26
  • Year Built1982
  • TypeCommercial Sale
  • Sub-TypeIndustrial
  • StatusActive

Community Information

  • Address1025 N Acoma Street
  • CityDenver
  • CountyDenver
  • StateCO
  • Zip Code80204

Amenities

  • UtilitiesElectricity Connected
  • Parking Spaces12
  • ParkingAsphalt
  • # of Garages2

Exterior

  • RoofTar/Gravel

Additional Information

  • Date ListedMay 23rd, 2025
  • ZoningD-GT

Listing Details

  • My Denver Real Estate
Please provide a valid email address.

Terms and Conditions: The content relating to real estate for sale in this Web site comes in part from the Internet Data eXchange ("IDX") program of METROLIST, INC., DBA RECOLORADO® Real estate listings held by brokers other than RE/MAX Professionals are marked with the IDX Logo. This information is being provided for the consumers personal, non-commercial use and may not be used for any other purpose. All information subject to change and should be independently verified.

Copyright 2025 METROLIST, INC., DBA RECOLORADO® -- All Rights Reserved 6455 S. Yosemite St., Suite 500 Greenwood Village, CO 80111 USA

Listing information last updated on December 29th, 2025 at 1:18pm MST.