Connect

2538 Carefree Way, Crestone, CO – $3,500,000

  • $3.5M Price
  • 27,540 Sqft
  • 23.08 Acres
  • $3.5M Price
  • 27,540 Sqft
  • 23.08 Acres

New Search X

2538 Carefree Way

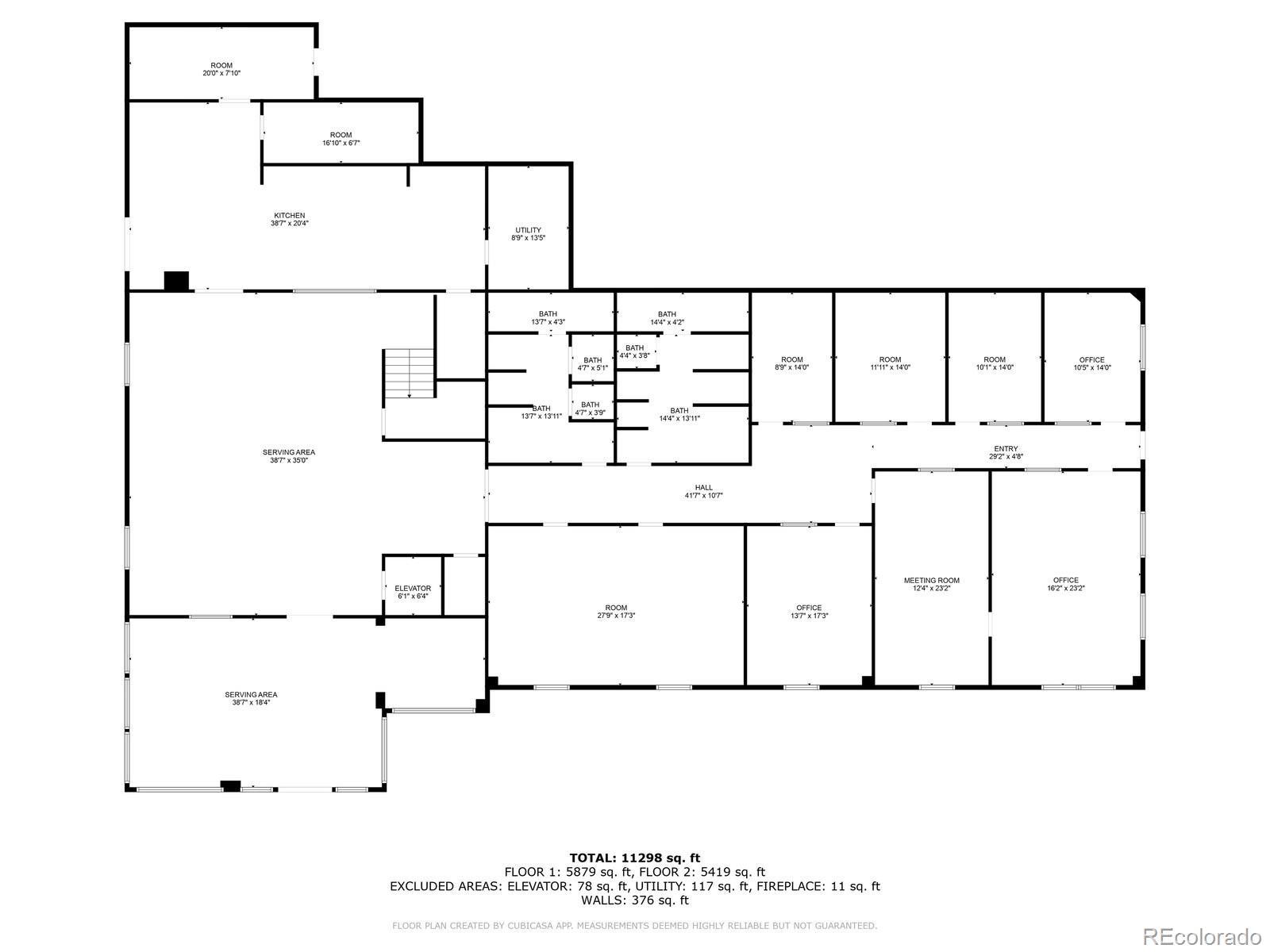
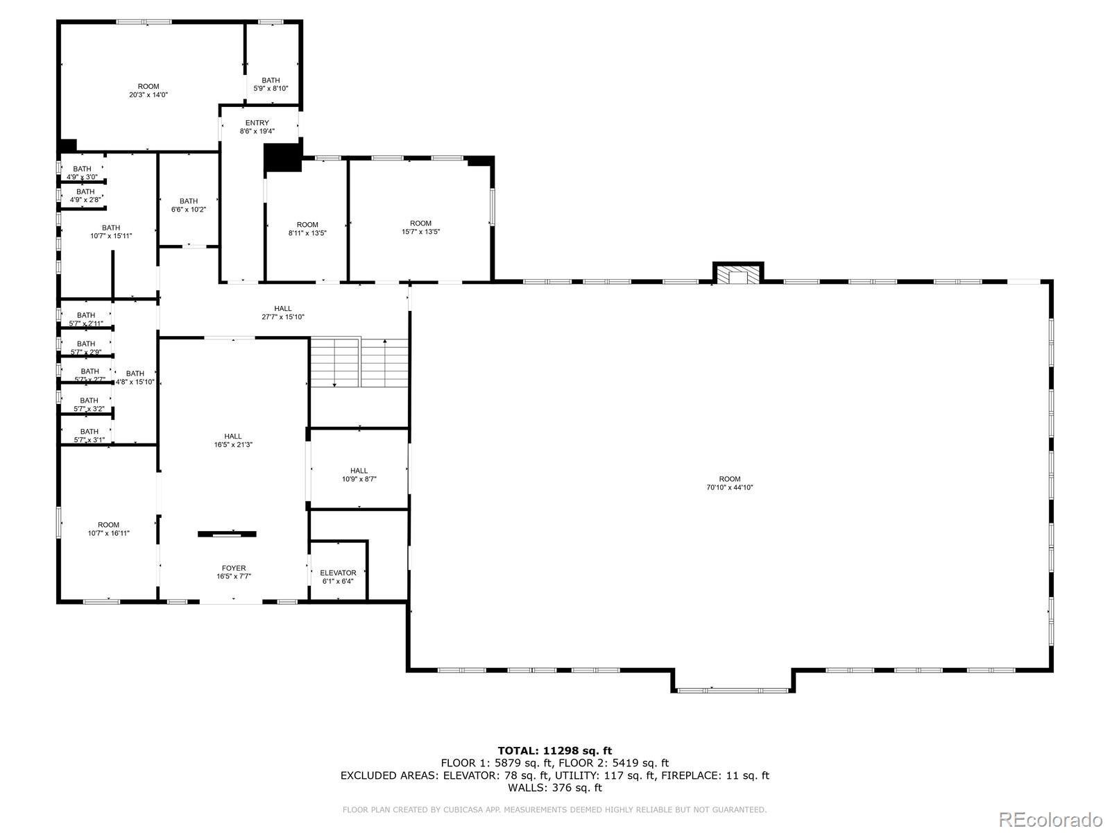
Price reduction! Rare opportunity to buy The Blazing Mountain Retreat Center. Beautifully situated in the majestic Sangre de Cristo Mountains near Crestone, an International Dark Skies Community. Offering an ideal setting for retreats, workshops, and training programs. The campus consists of three main structures: a two-level Main Building, a separate three-level Residence Hall and small cabin. The Main Hall spans 3,100 square feet and accommodates up to 120 people for meetings. This stunning space offers panoramic views of the San Luis Valley to the west and south, and breathtaking vistas of the Sangre de Cristo peaks to the east. A/V systems and soundproofing. A large covered deck on the west side extends the indoor meeting area, to blend indoor comfort with outdoor beauty. In addition, a large commercial kitchen, dining hall and hot drink station can provide the food needs of participants. Support facilities include seven auxiliary rooms used for conferences, business center, divisible break out rooms, private quarters with kitchenette and bath. A firepit and amphitheater add to the outdoor experience.The Residence hall is 200 yards from the Main Building for convenience and can accommodate 98 people comfortably. This includes single and double rooms with private baths(16) and dorm style accommodations as well. Rooms have either queen, double, twin or bunk beds. Private disabled accommodations available. Areas to congregate on all levels including a kitchenette on the main floor and extra storage. The lowest level of Residence Hall includes a special meals kitchen along with commercial laundry facility. Most furnishings stay with the property. Crestone has 2 grocery stores, post office, coffee shop and a few restaurants. An international destination itself. Secluded yet located one hour to the Alamosa CO airport for convenience. This campus has everything needed to support conferences or teachings in a serene setting. Price per square foot is unbelievable!

Listing Office: Realty 57 Ltd

Essential Information

  • MLS® #6029812
  • Price$3,500,000
  • Bathrooms0.00
  • Square Footage27,540
  • Acres23.08
  • Year Built2007
  • TypeCommercial Sale
  • Sub-TypeSpecial Purpose
  • StyleMountain Contemporary
  • StatusActive

Features

Conference Facility, Freight Elevator(s), Fixtures/Equipment Included, Food Service, On Site Management, Storage, Wi-Fi

Community Information

  • Address2538 Carefree Way
  • CityCrestone
  • CountySaguache
  • StateCO
  • Zip Code81131

Amenities

  • Parking Spaces20
  • ParkingGravel

Utilities

Electricity Connected, Internet Access (Wired), Propane, Sewer Connected

Exterior

  • RoofMetal

Lot Description

Corner Lot, Foothills, Landscaped

Additional Information

  • Date ListedAugust 25th, 2025
  • ZoningInstitutional 2

Listing Details

  • Realty 57 Ltd
Please provide a valid email address.

Terms and Conditions: The content relating to real estate for sale in this Web site comes in part from the Internet Data eXchange ("IDX") program of METROLIST, INC., DBA RECOLORADO® Real estate listings held by brokers other than RE/MAX Professionals are marked with the IDX Logo. This information is being provided for the consumers personal, non-commercial use and may not be used for any other purpose. All information subject to change and should be independently verified.

Copyright 2025 METROLIST, INC., DBA RECOLORADO® -- All Rights Reserved 6455 S. Yosemite St., Suite 500 Greenwood Village, CO 80111 USA

Listing information last updated on December 18th, 2025 at 7:33am MST.