Connect

5365 Quail Street, Arvada, CO – $640,000

  • 2 Beds
  • 3 Baths
  • 1,854 Sqft
  • .04 Acres
  • 2 Beds
  • 3 Baths
  • 1,854 Sqft
  • .04 Acres

New Search X

5365 Quail Street

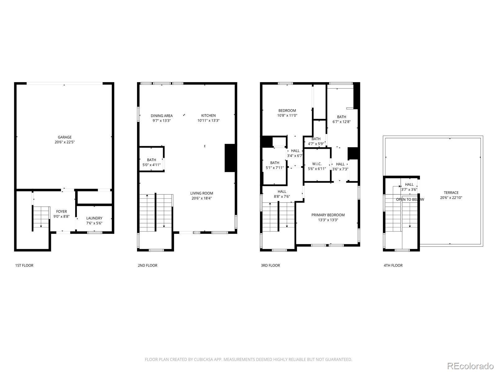
Perched above it all with sweeping views of downtown Denver and the nearby foothills, this 2023-built standalone residence in Haskins Station offers elevated outdoor living and a streamlined, modern lifestyle. At the top, a private rooftop terrace sets the stage for open-air entertaining or quiet evenings with a mountain backdrop and city lights on the horizon. Inside, three levels of well-proportioned space showcase thoughtful design and quality finishes. The main level features an open-concept layout where a spacious family room flows into an oversized kitchen—ideal for gatherings and daily living. The kitchen boasts quartz counters, upgraded appliances, a full tile backsplash, and a large island with ample prep space. A conveniently located powder room serves this main living area, and expansive windows bring in abundant natural light. Upstairs, the primary suite is a standout with a massive walk-in closet and a spa-inspired en suite bath featuring an oversized shower with multiple showerheads, including a rainfall fixture. A second bedroom with its own full bath offers flexibility for guests or workspace needs. Laundry is located on the entry level near the attached two-car garage, making drop-off and organization a breeze. The front yard is landscaped and equipped with a sprinkler system for low-maintenance care. Additional highlights include central air, wood, tile, and carpet flooring, double-pane windows, and a radon mitigation system. With its rooftop mountain views, modern design, and close proximity to light rail, Olde Town Arvada, downtown, and the mountains, this home offers a truly elevated everyday experience.

Listing Office: Compass - Denver

Essential Information

  • MLS® #6075243
  • Price$640,000
  • Bedrooms2
  • Bathrooms3.00
  • Full Baths1
  • Half Baths1
  • Square Footage1,854
  • Acres0.04
  • Year Built2023
  • TypeResidential
  • Sub-TypeSingle Family Residence
  • StyleContemporary
  • StatusActive

Community Information

  • Address5365 Quail Street
  • SubdivisionHaskins Station
  • CityArvada
  • CountyJefferson
  • StateCO
  • Zip Code80002

Amenities

  • AmenitiesPark, Playground, Trail(s)
  • Parking Spaces2
  • ParkingConcrete
  • # of Garages2
  • ViewCity, Mountain(s)

Utilities

Cable Available, Electricity Connected, Internet Access (Wired), Natural Gas Connected, Phone Available

Interior

  • HeatingForced Air
  • CoolingCentral Air
  • StoriesThree Or More

Interior Features

Ceiling Fan(s), Eat-in Kitchen, Entrance Foyer, Kitchen Island, Open Floorplan, Pantry, Primary Suite, Quartz Counters, Radon Mitigation System, Smoke Free, Walk-In Closet(s)

Appliances

Cooktop, Dishwasher, Disposal, Dryer, Microwave, Oven, Range Hood, Refrigerator, Sump Pump, Washer

Exterior

  • RoofShingle, Composition
  • FoundationSlab

Exterior Features

Balcony, Gas Valve, Rain Gutters

Lot Description

Irrigated, Landscaped, Level, Near Public Transit, Open Space, Sprinklers In Front

Windows

Double Pane Windows, Window Coverings

School Information

  • DistrictJefferson County R-1
  • ElementaryVanderhoof
  • MiddleDrake
  • HighArvada West

Additional Information

  • Date ListedFebruary 12th, 2026
  • ZoningRES

Listing Details

  • Compass - Denver
Please provide a valid email address.

Terms and Conditions: The content relating to real estate for sale in this Web site comes in part from the Internet Data eXchange ("IDX") program of METROLIST, INC., DBA RECOLORADO® Real estate listings held by brokers other than RE/MAX Professionals are marked with the IDX Logo. This information is being provided for the consumers personal, non-commercial use and may not be used for any other purpose. All information subject to change and should be independently verified.

Copyright 2026 METROLIST, INC., DBA RECOLORADO® -- All Rights Reserved 6455 S. Yosemite St., Suite 500 Greenwood Village, CO 80111 USA

Listing information last updated on February 19th, 2026 at 1:03pm MST.