Connect

13691 E Marina Drive 405, Aurora, CO – $335,000

  • $335k Price
  • 2 Beds
  • 2 Baths
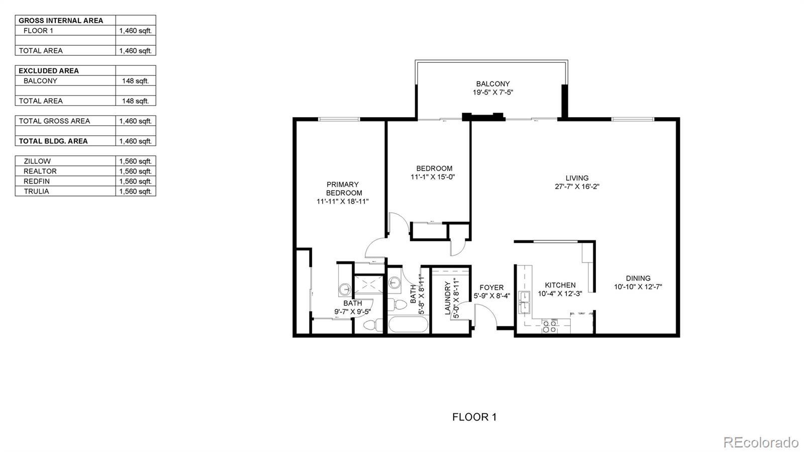
  • 1,560 Sqft
  • $335k Price
  • 2 Beds
  • 2 Baths
  • 1,560 Sqft

New Search X

13691 E Marina Drive 405

Remodeled 2-bedroom, 2-bath corner unit in Heather Gardens, an active independent adult, resort-style, 55+, secured, quiet, and security-patrolled community. This 4th-floor home offers an east-facing orientation for morning sun and cooler evenings, along with a beautiful view of the community yard and treetops. Secured and quiet interior building situated on the golf course, with elevator access. Updated kitchen features recessed lighting, granite counters, stainless steel appliances, newer cabinetry, and bonus pantry storage. The spacious great room provides flexible living and dining areas with access to a covered patio through newer double sliding doors. The large primary bedroom easily accommodates a king bed, includes built-in storage, and offers an en-suite bathroom and patio access. Both bathrooms and the kitchen have been updated with newer cabinetry. Home features dark wood-grain luxury vinyl flooring, newer windows, and four newer room A/C units. A sizable utility room provides additional storage and in-unit laundry. Includes one secured community garage parking space with a storage cage and an additional secured storage unit. Heather Gardens offers a clubhouse, indoor and outdoor pools, fitness center, restaurant, golf course, and a full calendar of activities and events. Amazing community to enjoy retirement, low-maintenance lifestyle, lock-and-leave, etc. Located in the southeast Denver Metro area, less than a mile from interstate 225, Cherry Creek State Park, Light Rail, hospitals and medical offices, Starbucks, casual and upscale dining and plenty of entertainment venue.

Listing Office: Kentwood Real Estate Cherry Creek

Essential Information

  • MLS® #6079596
  • Price$335,000
  • Bedrooms2
  • Bathrooms2.00
  • Full Baths1
  • Square Footage1,560
  • Acres0.00
  • Year Built1977
  • TypeResidential
  • Sub-TypeCondominium
  • StatusActive

Community Information

  • Address13691 E Marina Drive 405
  • SubdivisionHeather Gardens
  • CityAurora
  • CountyArapahoe
  • StateCO
  • Zip Code80014

Amenities

  • Parking Spaces1
  • # of Garages1

Amenities

Business Center, Clubhouse, Coin Laundry, Elevator(s), Fitness Center, Front Desk, Garden Area, Golf Course, On Site Management, Parking, Pond Seasonal, Pool, Sauna, Security, Spa/Hot Tub, Storage, Tennis Court(s), Trail(s)

Interior

  • HeatingBaseboard, Hot Water
  • CoolingAir Conditioning-Room
  • StoriesOne

Interior Features

Built-in Features, Ceiling Fan(s), Granite Counters, No Stairs, Open Floorplan, Pantry, Primary Suite, Walk-In Closet(s)

Appliances

Dishwasher, Disposal, Microwave, Oven, Refrigerator

Exterior

  • Exterior FeaturesBalcony
  • Lot DescriptionOn Golf Course
  • WindowsDouble Pane Windows
  • RoofComposition

School Information

  • DistrictCherry Creek 5
  • ElementaryPolton
  • MiddlePrairie
  • HighOverland

Additional Information

  • Date ListedOctober 7th, 2025

Listing Details

Kentwood Real Estate Cherry Creek

Please provide a valid email address.

Terms and Conditions: The content relating to real estate for sale in this Web site comes in part from the Internet Data eXchange ("IDX") program of METROLIST, INC., DBA RECOLORADO® Real estate listings held by brokers other than RE/MAX Professionals are marked with the IDX Logo. This information is being provided for the consumers personal, non-commercial use and may not be used for any other purpose. All information subject to change and should be independently verified.

Copyright 2025 METROLIST, INC., DBA RECOLORADO® -- All Rights Reserved 6455 S. Yosemite St., Suite 500 Greenwood Village, CO 80111 USA

Listing information last updated on December 21st, 2025 at 5:33pm MST.