Connect

10221 York Place, Thornton, CO – $400,000

  • $400k Price
  • 1.76 Acres
  • $400k Price
  • 1.76 Acres

New Search X

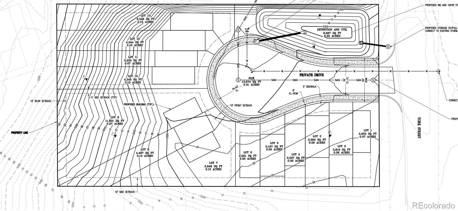
10221 York Place

Rare Opportunity, this piece of land is located around 102nd ave and York St! This beautiful land offers great mountain view to the west. Build your dream home here or subdivide into single family homes or townhouse. With the approval and rezone from city zoning department, you can subdivide perhaps up to 6 Single family (More might be possible but please follow the direction and standards from the city and zoning) or built up to 11- 13 townhouses. Lots of potentials here. Hurry and schedule your showings today!

Listing Office: HomeSmart

Essential Information

  • MLS® #6437408
  • Price$400,000
  • Bathrooms0.00
  • Acres1.76
  • TypeLand
  • Sub-TypeUnimproved Land
  • StatusActive

Community Information

  • Address10221 York Place
  • SubdivisionHarvest Ridge
  • CityThornton
  • CountyAdams
  • StateCO
  • Zip Code80229

Exterior

  • Lot DescriptionSloped, Subdividable

School Information

  • DistrictAdams 12 5 Star Schl

Additional Information

  • Date ListedApril 22nd, 2025
  • ZoningRES ACG

Listing Details

  • HomeSmart
Please provide a valid email address.

Terms and Conditions: The content relating to real estate for sale in this Web site comes in part from the Internet Data eXchange ("IDX") program of METROLIST, INC., DBA RECOLORADO® Real estate listings held by brokers other than RE/MAX Professionals are marked with the IDX Logo. This information is being provided for the consumers personal, non-commercial use and may not be used for any other purpose. All information subject to change and should be independently verified.

Copyright 2025 METROLIST, INC., DBA RECOLORADO® -- All Rights Reserved 6455 S. Yosemite St., Suite 500 Greenwood Village, CO 80111 USA

Listing information last updated on December 27th, 2025 at 1:03am MST.