Connect

3644 Wabash Street, Denver, CO – $699,500

  • 3 Beds
  • 3 Baths
  • 1,704 Sqft
  • .08 Acres
  • 3 Beds
  • 3 Baths
  • 1,704 Sqft
  • .08 Acres

New Search X

3644 Wabash Street

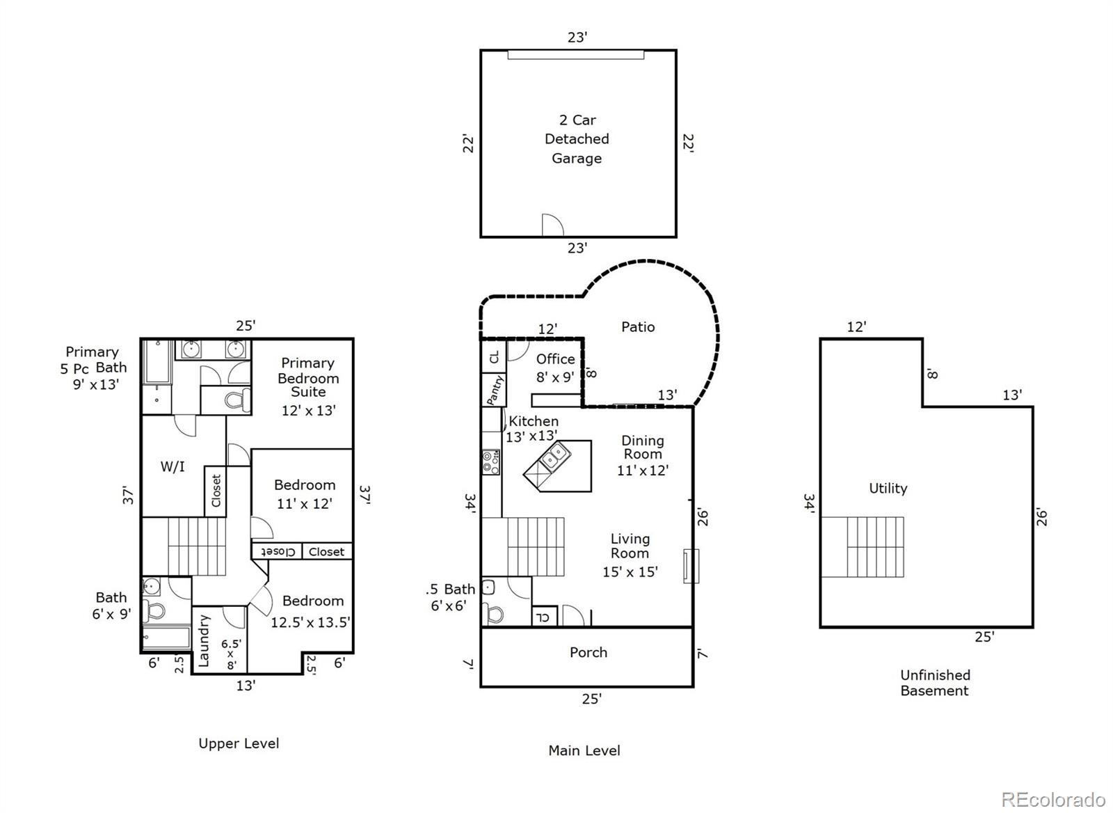
Charming Craftsman-Style Home in the Heart of Central Park. Experience the perfect blend of comfort, convenience, and energy efficiency in this beautifully maintained home located in Denver’s sought-after Central Park neighborhood. Ideally situated just moments from the Central Park light rail station, The Shops at Northfield, Square Line Town Center, Stanley Marketplace, and Denver International Airport, this home puts everything you need within easy reach. Step onto the spacious front porch, relax and enjoy a tranquil water feature before heading into a light-filled open floor plan, featuring a cozy gas fireplace, designated dining area, and a convenient main-level powder room. The modern kitchen flows seamlessly into a built-in office nook—ideal for remote work or study—which opens to a low-maintenance backyard oasis complete with a flagstone patio and covered back porch with artificial turf and a built-in sprinkler system. Eco-conscious buyers will appreciate the transferrable Tesla solar panels, Tesla EV charging station, and Vivint smart security system. The oversized, detached two-car garage offers ample storage and functionality. Upstairs, the generous primary suite features a large walk-in closet, while two additional bedrooms include custom Elfa shelving. All bedrooms are equipped with blackout shades, and the laundry room is conveniently located on the same level. The unfinished basement offers endless potential for customization—whether you're dreaming of a home gym, media room, or extra living space. Don't miss the opportunity to own this low-maintenance, energy-efficient gem in one of Denver's most vibrant communities!

Listing Office: Compass - Denver

Essential Information

  • MLS® #6644552
  • Price$699,500
  • Bedrooms3
  • Bathrooms3.00
  • Full Baths2
  • Half Baths1
  • Square Footage1,704
  • Acres0.08
  • Year Built2010
  • TypeResidential
  • Sub-TypeSingle Family Residence
  • StatusPending

Community Information

  • Address3644 Wabash Street
  • SubdivisionCentral Park
  • CityDenver
  • CountyDenver
  • StateCO
  • Zip Code80238

Amenities

  • Parking Spaces2
  • Parking220 Volts
  • # of Garages2

Interior

  • HeatingForced Air
  • CoolingCentral Air
  • FireplaceYes
  • # of Fireplaces1
  • FireplacesGas
  • StoriesTwo

Interior Features

Ceiling Fan(s), Jack & Jill Bathroom, Kitchen Island, Open Floorplan, Smoke Free, Walk-In Closet(s)

Appliances

Dishwasher, Disposal, Dryer, Oven, Range, Refrigerator, Washer

Exterior

  • Lot DescriptionLevel
  • RoofComposition

Exterior Features

Private Yard, Smart Irrigation, Water Feature

School Information

  • DistrictDenver 1
  • ElementarySwigert International
  • MiddleDSST: Conservatory Green
  • HighNorthfield

Additional Information

  • Date ListedJune 4th, 2025
  • ZoningR-MU-20

Listing Details

  • Compass - Denver
Please provide a valid email address.

Terms and Conditions: The content relating to real estate for sale in this Web site comes in part from the Internet Data eXchange ("IDX") program of METROLIST, INC., DBA RECOLORADO® Real estate listings held by brokers other than RE/MAX Professionals are marked with the IDX Logo. This information is being provided for the consumers personal, non-commercial use and may not be used for any other purpose. All information subject to change and should be independently verified.

Copyright 2025 METROLIST, INC., DBA RECOLORADO® -- All Rights Reserved 6455 S. Yosemite St., Suite 500 Greenwood Village, CO 80111 USA

Listing information last updated on November 3rd, 2025 at 8:33am MST.