Connect

5128 Preserve Place, Firestone, CO – $699,000

  • 4 Beds
  • 3 Baths
  • 2,533 Sqft
  • .22 Acres
  • 4 Beds
  • 3 Baths
  • 2,533 Sqft
  • .22 Acres

New Search X

5128 Preserve Place

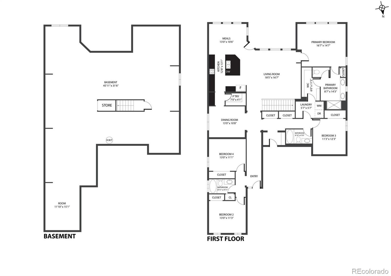
Discover the perfect blend of luxury, space, and community in this beautifully upgraded 4-bedroom, 3-bathroom ranch in sought-after Barefoot Lakes. Situated on a professionally landscaped 9,736 sq ft lot, this home showcases modern finishes, an open-concept layout, and exceptional indoor-outdoor living. The bright main level features a spacious chef’s kitchen with quartz countertops, stainless steel appliances, a large pantry, breakfast nook, and oversized eat-in island—ideal for everyday living and entertaining. A generous dining area and mudroom off the garage add both style and function. Step outside to enjoy the covered deck, pergola, and expansive concrete patio—perfect for gatherings or relaxing evenings The private primary suite offers a large walk-in closet, dual vanities, and convenient direct access to the laundry room. Three additional bedrooms and two full baths provide flexible space for guests, family, or a home office. The low-maintenance backyard is spacious and full of potential for play, pets, or gardening. Enjoy all that Barefoot Lakes has to offer, including miles of scenic trails, over 100 acres of water for paddle-boarding and fishing, and The Cove clubhouse featuring a resort-style pool, fitness center, courts, and community spaces. Colorado living at its finest—this one is not to be missed!

Listing Office: Redfin Corporation

Essential Information

  • MLS® #6809251
  • Price$699,000
  • Bedrooms4
  • Bathrooms3.00
  • Full Baths2
  • Square Footage2,533
  • Acres0.22
  • Year Built2021
  • TypeResidential
  • Sub-TypeSingle Family Residence
  • StatusActive

Community Information

  • Address5128 Preserve Place
  • SubdivisionBarefoot Lakes
  • CityFirestone
  • CountyWeld
  • StateCO
  • Zip Code80504

Amenities

  • Parking Spaces3
  • ParkingConcrete, Insulated Garage
  • # of Garages3
  • ViewMountain(s)

Amenities

Fitness Center, Park, Playground, Tennis Court(s), Trail(s)

Utilities

Electricity Connected, Natural Gas Connected

Interior

  • HeatingElectric
  • CoolingCentral Air
  • StoriesOne

Interior Features

Breakfast Bar, Granite Counters, Kitchen Island, Open Floorplan, Pantry, Primary Suite, Radon Mitigation System, Walk-In Closet(s)

Appliances

Dishwasher, Disposal, Dryer, Range, Refrigerator, Sump Pump, Washer

Exterior

  • Exterior FeaturesPrivate Yard, Rain Gutters
  • RoofComposition

Windows

Storm Window(s), Window Treatments

School Information

  • DistrictSt. Vrain Valley RE-1J
  • ElementaryMead
  • MiddleMead
  • HighMead

Additional Information

  • Date ListedFebruary 20th, 2026

Listing Details

  • Redfin Corporation
Please provide a valid email address.

Terms and Conditions: The content relating to real estate for sale in this Web site comes in part from the Internet Data eXchange ("IDX") program of METROLIST, INC., DBA RECOLORADO® Real estate listings held by brokers other than RE/MAX Professionals are marked with the IDX Logo. This information is being provided for the consumers personal, non-commercial use and may not be used for any other purpose. All information subject to change and should be independently verified.

Copyright 2026 METROLIST, INC., DBA RECOLORADO® -- All Rights Reserved 6455 S. Yosemite St., Suite 500 Greenwood Village, CO 80111 USA

Listing information last updated on February 28th, 2026 at 3:03am MST.