Connect

6711 W Portland Place, Littleton, CO – $875,000

  • 5 Beds
  • 4 Baths
  • 3,764 Sqft
  • ¼ Acres
  • 5 Beds
  • 4 Baths
  • 3,764 Sqft
  • ¼ Acres

New Search X

6711 W Portland Place

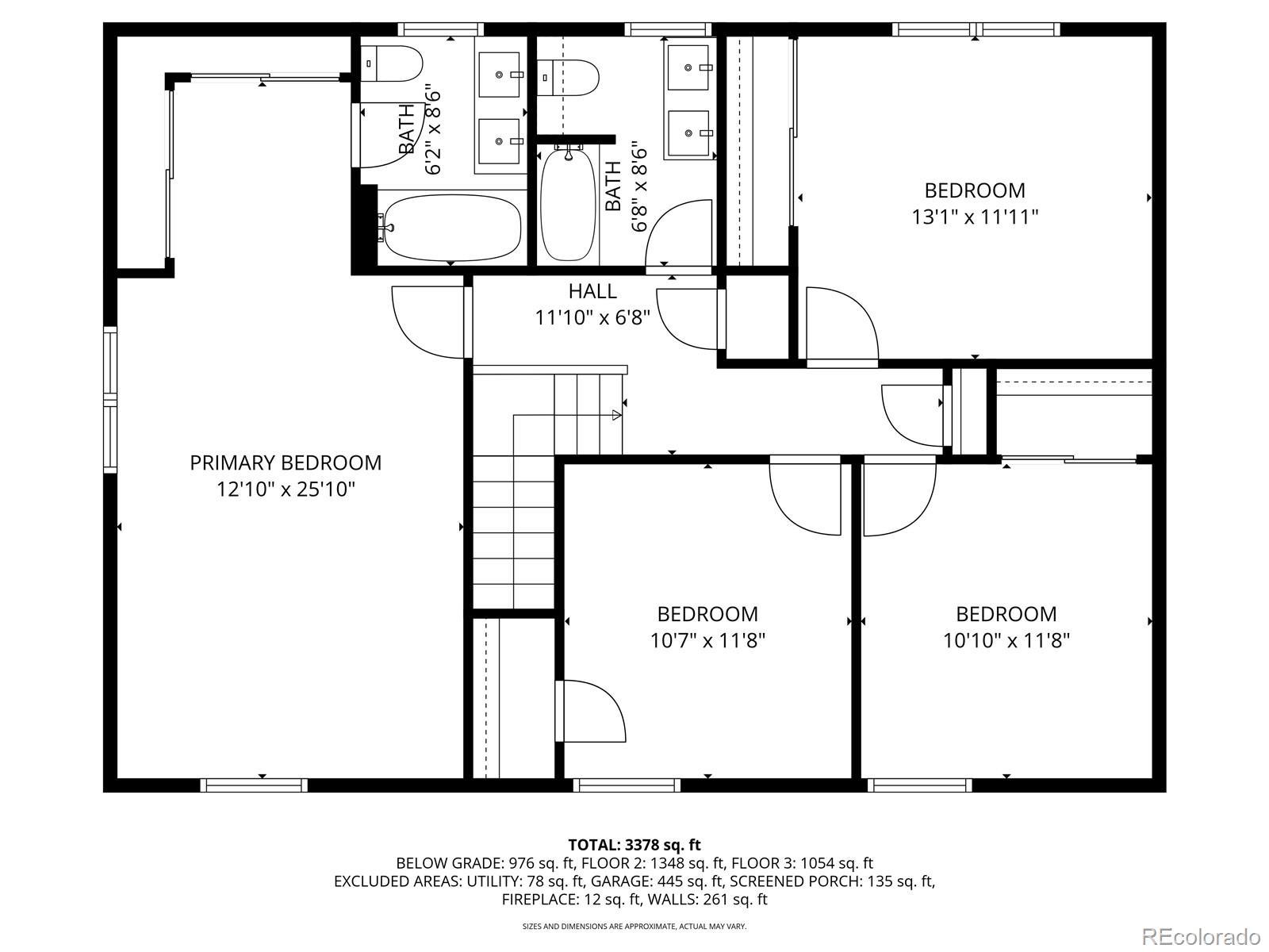
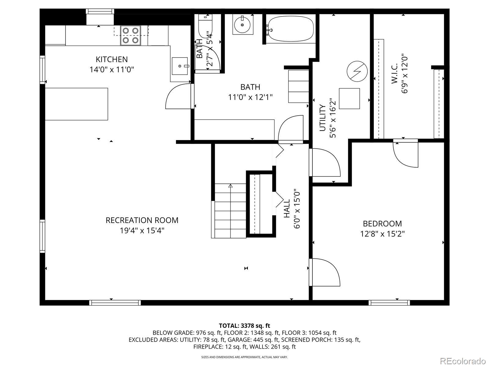
Welcome to this beautifully updated two-story brick home, perfectly situated on a quiet cul-de-sac in the highly sought-after Columbine Knolls community. This residence offers the perfect blend of timeless character, modern updates, and a warm, inviting feel—set among wide tree-lined streets and surrounded by friendly neighbors. Step inside to discover an elegant and functional layout with newer wood flooring on the main level and abundant natural light streaming through the home’s expansive windows. The updated kitchen features solid-surface countertops, newer cabinetry, built-in microwave, and pantry—seamlessly connecting to a bright family room centered around a stunning gas fireplace. A formal dining room, adjoining living area, and a private study with french doors and custom built-ins complete the main level, offering versatile spaces for both everyday living and entertaining. Upstairs, you’ll find four spacious bedrooms and two full baths, including a generous primary suite with ample closet space and a serene en-suite bathroom. The finished basement extends the home’s living space, featuring a large recreation area, full kitchen, full bath, and an additional bedroom with a walk-in closet—perfect for guests, extended family, or a playroom. Step outside to enjoy a large, private backyard with mature landscaping, fenced garden area, and covered patio—ideal for summer gatherings or quiet relaxation. Located near parks, playgrounds, schools, and shopping, this home captures the best of suburban comfort and community spirit. Spacious, sun-filled, and perfectly maintained—this Columbine Knolls gem is ready to welcome you home!

Listing Office: RE/MAX of Cherry Creek

Essential Information

  • MLS® #6864664
  • Price$875,000
  • Bedrooms5
  • Bathrooms4.00
  • Full Baths3
  • Half Baths1
  • Square Footage3,764
  • Acres0.25
  • Year Built1972
  • TypeResidential
  • Sub-TypeSingle Family Residence
  • StatusActive

Community Information

  • Address6711 W Portland Place
  • SubdivisionColumbine Knolls
  • CityLittleton
  • CountyJefferson
  • StateCO
  • Zip Code80128

Amenities

  • Parking Spaces2
  • # of Garages2

Interior

  • HeatingForced Air
  • CoolingCentral Air
  • FireplaceYes
  • # of Fireplaces1
  • FireplacesFamily Room
  • StoriesTwo

Exterior

  • RoofComposition
  • FoundationSlab

School Information

  • DistrictJefferson County R-1
  • ElementaryNormandy
  • MiddleKen Caryl
  • HighColumbine

Additional Information

  • Date ListedOctober 28th, 2025
  • ZoningR-1A

Listing Details

  • RE/MAX of Cherry Creek
Please provide a valid email address.

Terms and Conditions: The content relating to real estate for sale in this Web site comes in part from the Internet Data eXchange ("IDX") program of METROLIST, INC., DBA RECOLORADO® Real estate listings held by brokers other than RE/MAX Professionals are marked with the IDX Logo. This information is being provided for the consumers personal, non-commercial use and may not be used for any other purpose. All information subject to change and should be independently verified.

Copyright 2025 METROLIST, INC., DBA RECOLORADO® -- All Rights Reserved 6455 S. Yosemite St., Suite 500 Greenwood Village, CO 80111 USA

Listing information last updated on November 8th, 2025 at 4:35am MST.