Connect

2761 S Salida Way, Aurora, CO – $510,000

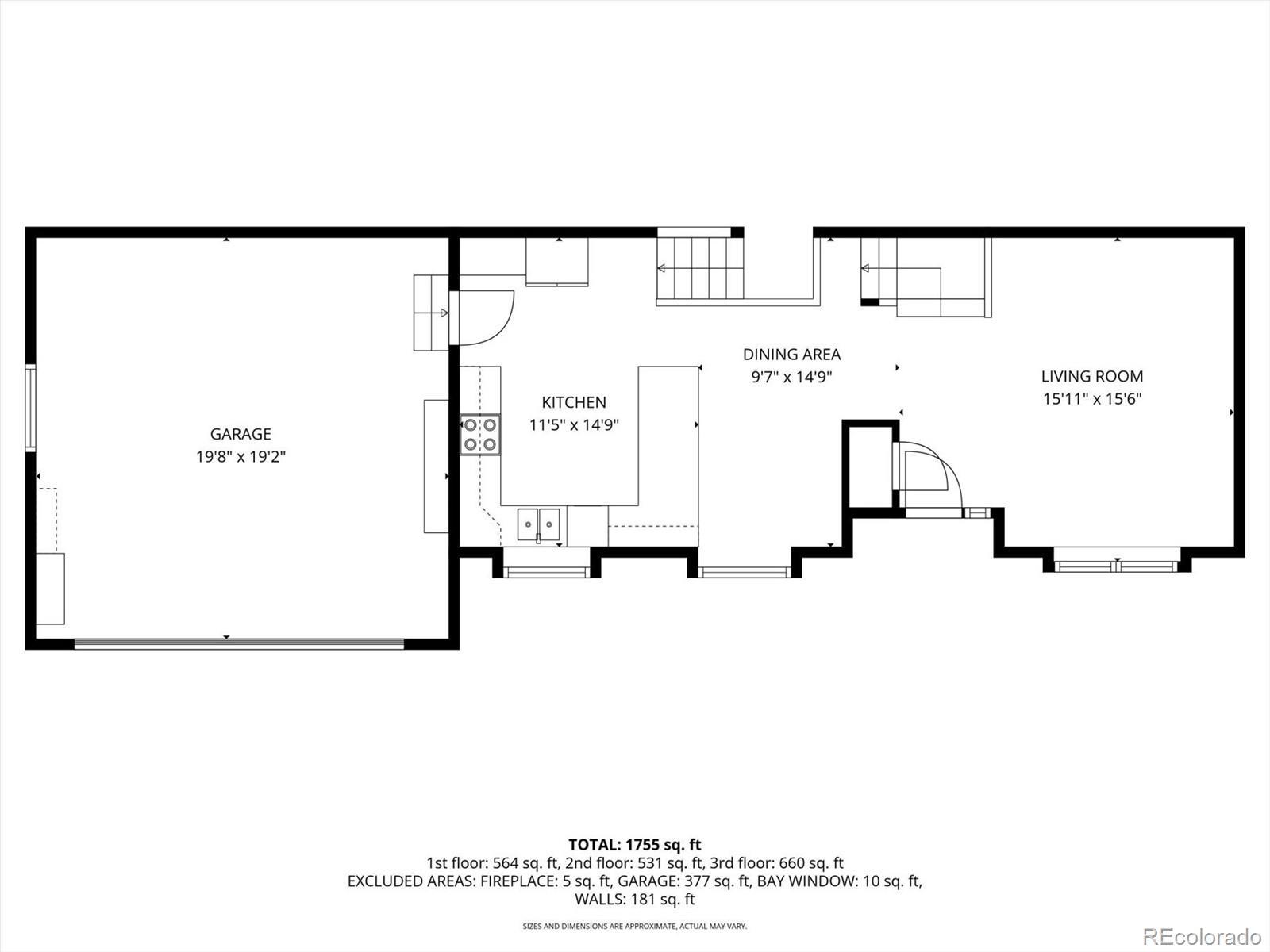
  • 4 Beds
  • 2 Baths
  • 1,856 Sqft
  • .17 Acres
  • 4 Beds
  • 2 Baths
  • 1,856 Sqft
  • .17 Acres

New Search X

2761 S Salida Way

This is one of those homes that just feels right the second you walk in. Located in the established Aurora Knolls neighborhood, this thoughtfully updated home brings together smart updates, flexible living space, and a location that makes everyday life easy. The refreshed kitchen features stainless steel appliances and clean finishes — a space that works just as well for busy weeknight dinners as it does for hosting friends. The open flow between the main and lower levels gives you options: multiple living areas, room to spread out, space for movie nights, a playroom, or a home office setup. Downstairs, the cozy wood-burning fireplace anchors the family room and makes Colorado winters feel exactly how they should. Upstairs, the spacious primary suite offers a true retreat with its own private bathroom and walk-in closet. The bathrooms have been updated with a polished, modern feel, and the washer and dryer are included for added convenience. Out back, the deck is ready for morning coffee, evening unwinding, or weekend grilling. It’s the kind of outdoor space that gets used — not just looked at. Aurora Knolls is a neighborhood people stay in for a reason. You’re close to parks, trails, shopping, dining, and major commuter routes. Cherry Creek, local green space, and everyday conveniences are all within easy reach — giving you access without sacrificing that established neighborhood feel. Updated. Functional. In a location that makes sense. This one is easy to love.

Listing Office: 8z Real Estate

Essential Information

  • MLS® #7096785
  • Price$510,000
  • Bedrooms4
  • Bathrooms2.00
  • Full Baths1
  • Square Footage1,856
  • Acres0.17
  • Year Built1980
  • TypeResidential
  • Sub-TypeSingle Family Residence
  • StyleTraditional
  • StatusActive

Community Information

  • Address2761 S Salida Way
  • SubdivisionAurora Knolls
  • CityAurora
  • CountyArapahoe
  • StateCO
  • Zip Code80013

Amenities

  • Parking Spaces2
  • # of Garages2

Interior

  • Interior FeaturesEat-in Kitchen
  • HeatingForced Air
  • CoolingCentral Air
  • FireplaceYes
  • # of Fireplaces1
  • FireplacesFamily Room
  • StoriesTri-Level

Appliances

Dishwasher, Dryer, Oven, Range, Refrigerator, Washer

Exterior

  • RoofComposition

School Information

  • DistrictAdams-Arapahoe 28J
  • ElementaryDalton
  • MiddleColumbia
  • HighRangeview

Additional Information

  • Date ListedFebruary 20th, 2026

Listing Details

  • 8z Real Estate
Please provide a valid email address.

Terms and Conditions: The content relating to real estate for sale in this Web site comes in part from the Internet Data eXchange ("IDX") program of METROLIST, INC., DBA RECOLORADO® Real estate listings held by brokers other than RE/MAX Professionals are marked with the IDX Logo. This information is being provided for the consumers personal, non-commercial use and may not be used for any other purpose. All information subject to change and should be independently verified.

Copyright 2026 METROLIST, INC., DBA RECOLORADO® -- All Rights Reserved 6455 S. Yosemite St., Suite 500 Greenwood Village, CO 80111 USA

Listing information last updated on February 28th, 2026 at 12:19am MST.