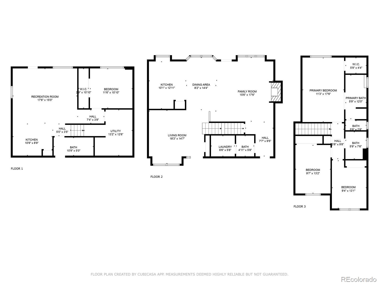
Welcome to your dream home—where modern upgrades, versatile living space, and panoramic views of Pikes Peak come together in perfect harmony. This immaculate property features brand new carpet and luxury vinyl flooring throughout the main and upper levels. The beautifully updated kitchen includes Quartz countertops, premium KitchenAid appliances (including a counter-depth refrigerator), and a charming butcher block island. Enjoy cozy evenings in the spacious family room with a gas log fireplace and new stone surround. Additional interior features include plantation shutters throughout, central air, a central vacuum system on all three floors, and dimmer switches in nearly every room. The primary suite is a true retreat, boasting vaulted ceilings, a luxurious 5-piece ensuite, walk-in closet, and stunning mountain views. Two more well-sized bedrooms and a full guest bath are located upstairs, all with Quartz countertops. The walk-out basement includes a full mother-in-law suite with a second kitchen, perfect for multigenerational living and opens to a 30x12 covered concrete patio. Step outside to a gorgeous 30x12 Trex deck with unobstructed mountain views and two awnings with covers—perfect for relaxing and entertaining. The fully landscaped yard is bursting with colorful flowers, mature maple and shade trees, a sandbox play area, and a convenient storage shed. A welcoming front patio offers the perfect spot for your morning coffee. This home is located in a friendly neighborhood with low HOA fees and access to fantastic amenities including a community pool, basketball and pickleball courts, and fun year-round events. You’re just minutes from Villa Sport Gym, top-rated schools, scenic walking trails, shopping, hospitals, and military installations. This exceptional property offers flexibility, function, and unbeatable mountain views—ideal for multigenerational families or savvy investors. Schedule your private showing today!
Listing Office: Park Avenue Properties Of Colorado Springs Llc  
 
Butcher Counters, Ceiling Fan(s), Central Vacuum, Five Piece Bath, Kitchen Island, Pantry, Quartz Counters, Walk-In Closet(s)
Dishwasher, Disposal, Microwave, Oven, Refrigerator

Park Avenue Properties Of Colorado Springs Llc
 Terms and Conditions: The content relating to real estate for sale in this Web site comes in  part from the Internet Data eXchange ("IDX") program of METROLIST, INC., DBA RECOLORADO® Real estate listings held by brokers other than RE/MAX Professionals are marked with the IDX Logo. This information is being  provided for the consumers personal, non-commercial use and may not be  used for any other purpose. All information subject to change and  should be independently verified.
 Terms and Conditions: The content relating to real estate for sale in this Web site comes in  part from the Internet Data eXchange ("IDX") program of METROLIST, INC., DBA RECOLORADO® Real estate listings held by brokers other than RE/MAX Professionals are marked with the IDX Logo. This information is being  provided for the consumers personal, non-commercial use and may not be  used for any other purpose. All information subject to change and  should be independently verified.
Copyright 2025 METROLIST, INC., DBA RECOLORADO® -- All Rights Reserved 6455 S. Yosemite St., Suite 500 Greenwood Village, CO 80111 USA
Listing information last updated on October 31st, 2025 at 10:04am MDT.