Connect

1700 Peninsula Circle, Castle Rock, CO – $849,500

  • 5 Beds
  • 5 Baths
  • 4,460 Sqft
  • .26 Acres
  • 5 Beds
  • 5 Baths
  • 4,460 Sqft
  • .26 Acres

New Search X

1700 Peninsula Circle

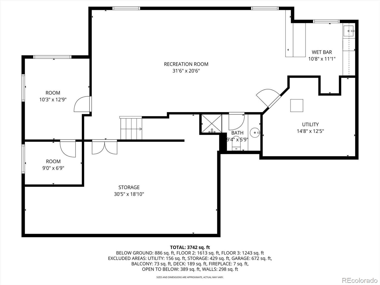
Opportunity meets lifestyle in this expansive two-story residence, where thoughtful design and timeless character create a home ready for every chapter. With five bedrooms, five baths, and a flexible main-level study, the layout offers exceptional versatility for growing families, multi-generational living, or those who simply crave room to live, work, and unwind. Sunlit interiors, soaring ceilings, and an effortless open flow set the stage for memorable gatherings, while the chef’s kitchen—with its generous island, full appliance suite, and seating for a crowd—invites connection over everyday meals and holiday celebrations alike. The serene primary suite provides a private retreat, complete with a beautifully customized walk-in closet and a spa-inspired bath awaiting your personal finishing touches. The fully finished lower level expands your possibilities even further, offering a wet bar, recreation space, and comfortable accommodations for guests or extended family. Step outside to a brand-new deck designed for easy entertaining and quiet evenings under Colorado’s wide-open skies. Nestled near Plum Creek Golf Course, scenic trails, parks, and the vibrant shops and dining of downtown Castle Rock, this home blends tranquility with convenience in one of the area’s most desirable settings. Priced to welcome your vision and future equity, it’s a rare opportunity to create a home that reflects your lifestyle, your needs, and your next adventure.

Listing Office: Workman & Associates

Essential Information

  • MLS® #7160013
  • Price$849,500
  • Bedrooms5
  • Bathrooms5.00
  • Full Baths3
  • Half Baths1
  • Square Footage4,460
  • Acres0.26
  • Year Built2000
  • TypeResidential
  • Sub-TypeSingle Family Residence
  • StyleContemporary
  • StatusPending

Community Information

  • Address1700 Peninsula Circle
  • SubdivisionPlum Creek Fairway
  • CityCastle Rock
  • CountyDouglas
  • StateCO
  • Zip Code80104

Amenities

  • Parking Spaces3
  • ParkingConcrete
  • # of Garages3
  • ViewMountain(s)

Utilities

Cable Available, Electricity Available, Natural Gas Connected

Interior

  • HeatingForced Air, Natural Gas
  • CoolingCentral Air
  • FireplaceYes
  • # of Fireplaces2
  • FireplacesFamily Room, Living Room
  • StoriesTwo

Interior Features

Breakfast Bar, Ceiling Fan(s), Eat-in Kitchen, Five Piece Bath, Granite Counters, High Ceilings, Jack & Jill Bathroom, Kitchen Island, Open Floorplan, Primary Suite, Walk-In Closet(s), Wet Bar

Appliances

Dishwasher, Microwave, Oven, Range, Refrigerator

Exterior

  • RoofComposition

Lot Description

Sprinklers In Front, Sprinklers In Rear

Windows

Double Pane Windows, Egress Windows

School Information

  • DistrictDouglas RE-1
  • ElementarySouth Ridge
  • MiddleMesa
  • HighDouglas County

Additional Information

  • Date ListedJanuary 14th, 2026
  • ZoningPUD

Listing Details

  • Workman & Associates
Please provide a valid email address.

Terms and Conditions: The content relating to real estate for sale in this Web site comes in part from the Internet Data eXchange ("IDX") program of METROLIST, INC., DBA RECOLORADO® Real estate listings held by brokers other than RE/MAX Professionals are marked with the IDX Logo. This information is being provided for the consumers personal, non-commercial use and may not be used for any other purpose. All information subject to change and should be independently verified.

Copyright 2026 METROLIST, INC., DBA RECOLORADO® -- All Rights Reserved 6455 S. Yosemite St., Suite 500 Greenwood Village, CO 80111 USA

Listing information last updated on January 22nd, 2026 at 12:18am MST.