Connect

25994 E Peakview Place, Aurora, CO – $755,000

  • 5 Beds
  • 3 Baths
  • 3,201 Sqft
  • .17 Acres
  • 5 Beds
  • 3 Baths
  • 3,201 Sqft
  • .17 Acres

New Search X

25994 E Peakview Place

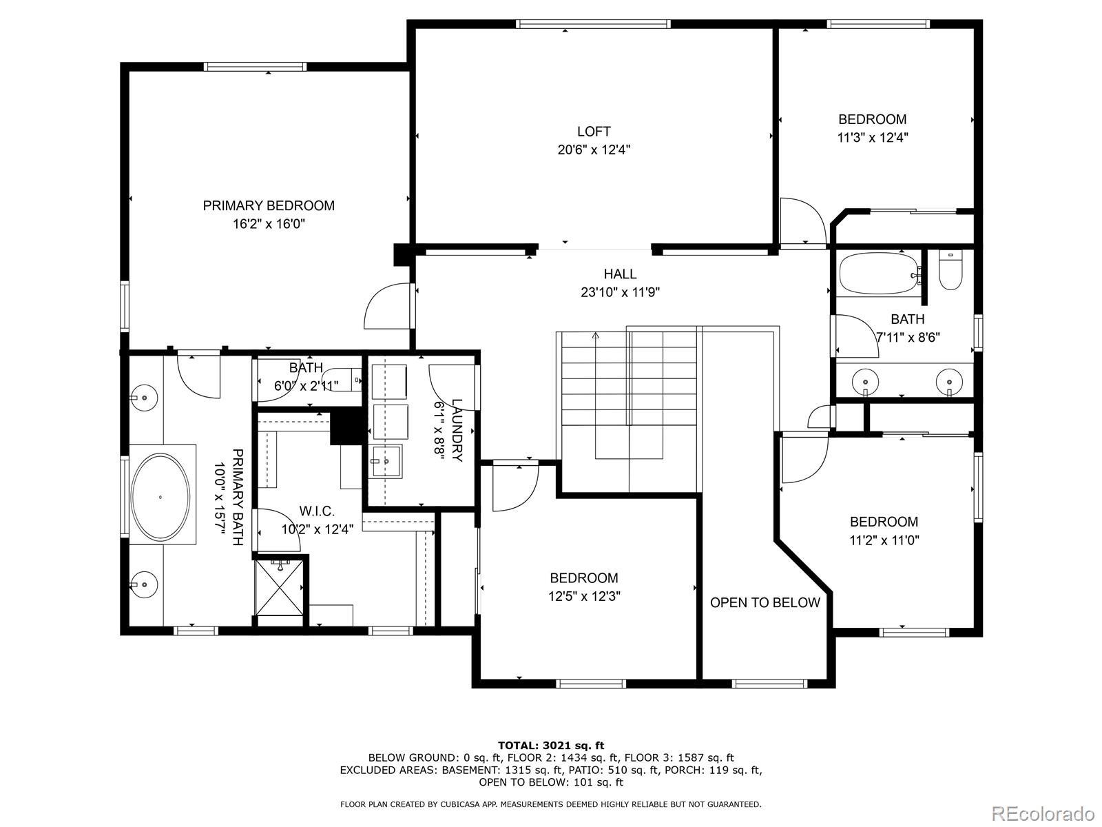
Welcome to your dream home in the heart of Beacon Point! This beautifully maintained residence features an open-concept floor plan designed for modern living & effortless entertaining. From the moment you step inside, you're greeted by rich wood flooring that flows seamlessly throughout the main level. Just off the entry, a versatile office space awaits—perfect as a home office/sitting area/or formal living room. Across the hall, the elegant formal dining room is ideal for hosting gatherings & special occasions. The spacious great room is the heart of the home, featuring large windows providing natural light, ceiling fan for year-round comfort & a cozy gas fireplace. The adjoining gourmet kitchen is a chef’s dream, boasting stainless steel appliances, double ovens, gas cooktop, granite countertops, a generous island with seating, ample cabinetry, & a large pantry. Main level bedroom! Upstairs, the serene primary suite offers a peaceful retreat, walk-in closet & a luxurious en-suite bath complete with dual vanities, a soaking tub, separate shower & private water closet. 3 additional spacious bedrooms & a full bathroom with dual sinks complete the 2nd floor, providing plenty of space for family and guests. The unfinished basement, with 3 egress windows, offers endless potential—add a home gym, media room, extra bedrooms, or your dream entertainment space. Step outside to a nice landscaped backyard with an expansive concrete patio—perfect for summer BBQs or relaxing evenings. BONUS: offering assumable loan with a very attractive rate AND Solar panels are is currently being REPLACED and will transfer to Buyer Pre-Paid! Enjoy all that Beacon Point has to offer, community pool, fitness center, trails/nearby parks. Located in a welcoming neighborhood, you’re just minutes from shopping, dining/entertainment at Southlands, convenient access to E-470. Don’t miss your chance to call this exceptional property home. Schedule your private tour today & imagine the possibilities!

Listing Office: HomeSmart

Essential Information

  • MLS® #7223110
  • Price$755,000
  • Bedrooms5
  • Bathrooms3.00
  • Full Baths3
  • Square Footage3,201
  • Acres0.17
  • Year Built2011
  • TypeResidential
  • Sub-TypeSingle Family Residence
  • StyleTraditional
  • StatusActive

Community Information

  • Address25994 E Peakview Place
  • SubdivisionBeacon Point
  • CityAurora
  • CountyArapahoe
  • StateCO
  • Zip Code80016

Amenities

  • Parking Spaces3
  • ParkingConcrete, Oversized, Tandem
  • # of Garages3

Amenities

Clubhouse, Fitness Center, Pool, Tennis Court(s), Trail(s)

Interior

  • HeatingForced Air
  • CoolingCentral Air
  • FireplaceYes
  • # of Fireplaces1
  • FireplacesGas Log, Great Room
  • StoriesTwo

Interior Features

Ceiling Fan(s), Eat-in Kitchen, Entrance Foyer, Five Piece Bath, Granite Counters, Kitchen Island, Open Floorplan, Primary Suite, Smoke Free, Solid Surface Counters, Vaulted Ceiling(s), Walk-In Closet(s)

Appliances

Cooktop, Dishwasher, Disposal, Double Oven, Gas Water Heater, Humidifier, Microwave, Refrigerator, Sump Pump

Exterior

  • WindowsDouble Pane Windows
  • RoofComposition

School Information

  • DistrictCherry Creek 5
  • ElementaryPine Ridge
  • MiddleInfinity
  • HighCherokee Trail

Additional Information

  • Date ListedMay 1st, 2025

Listing Details

  • HomeSmart
Please provide a valid email address.

Terms and Conditions: The content relating to real estate for sale in this Web site comes in part from the Internet Data eXchange ("IDX") program of METROLIST, INC., DBA RECOLORADO® Real estate listings held by brokers other than RE/MAX Professionals are marked with the IDX Logo. This information is being provided for the consumers personal, non-commercial use and may not be used for any other purpose. All information subject to change and should be independently verified.

Copyright 2025 METROLIST, INC., DBA RECOLORADO® -- All Rights Reserved 6455 S. Yosemite St., Suite 500 Greenwood Village, CO 80111 USA

Listing information last updated on October 22nd, 2025 at 1:04am MDT.