Connect

11987 N Peyton Highway, Peyton, CO – $1,500,000

  • 6 Beds
  • 4 Baths
  • 4,023 Sqft
  • 80 Acres
  • 6 Beds
  • 4 Baths
  • 4,023 Sqft
  • 80 Acres

New Search X

11987 N Peyton Highway

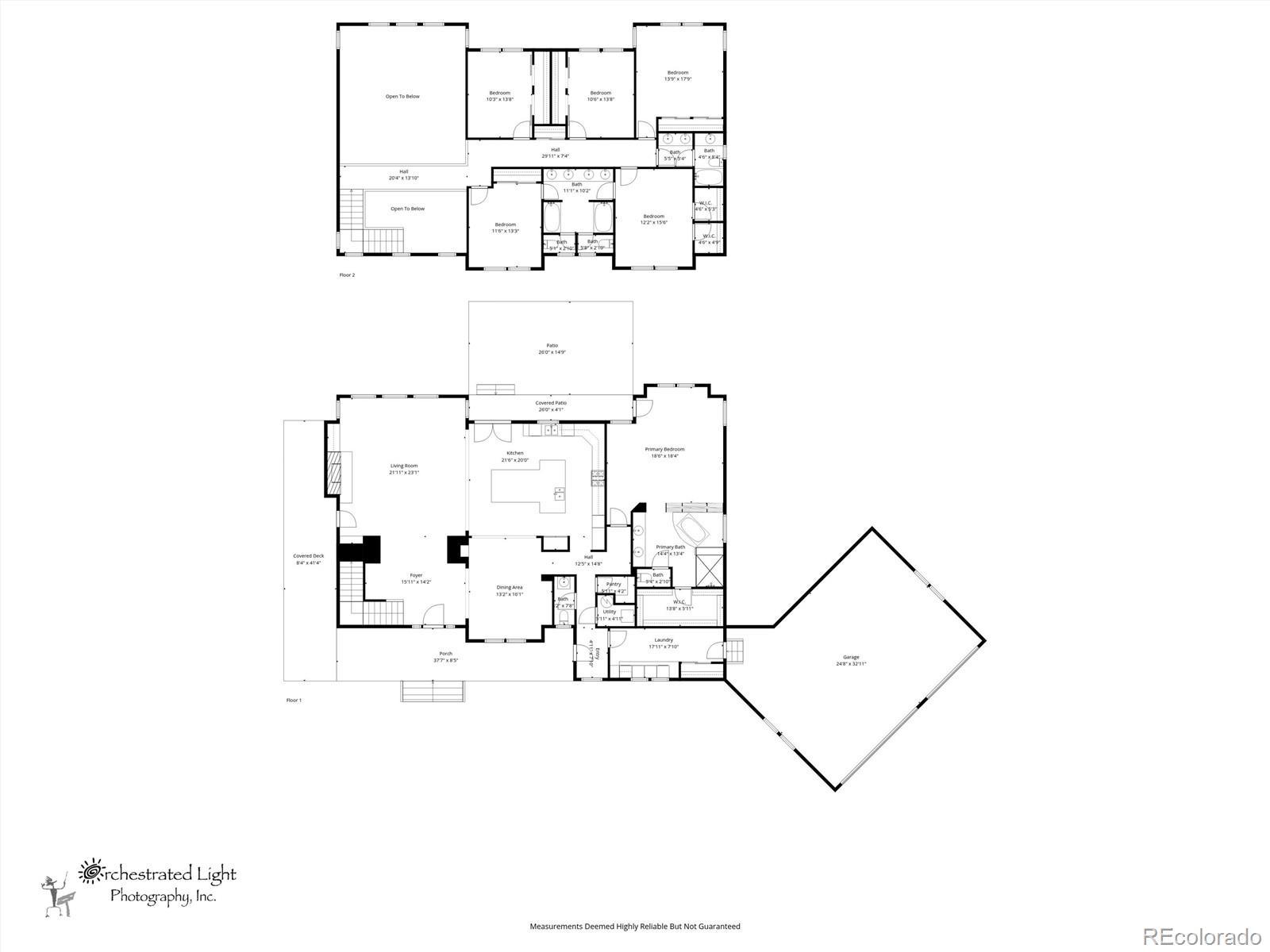
Over 125 years of love and laughter are woven into this landmark 4000 SF 6 bdrm/3 ½ bath custom home and school house on 80 acres. Built to accommodate a family of 9, this legacy ranch includes multiple barns, historic grain silo, personal picnic area and pond, irrigation cistern and endless acres to explore. More than 400 trees, planted by WPA when property was first homesteaded, now create a natural forest buffer—offering privacy, shade, and a peaceful setting for picnics and fireside gatherings near the secluded pond. The memories made here are preserved in a lovingly curated scrapbook for your perusal. The home’s interior honors its western roots, blending rustic charm with modern comforts. You’ll find a stamped tin ceiling in the kitchen, dark wood cabinetry, a river rock two-story fireplace, and arched passageways—all paying homage to the Old West. The chef's kitchen can easily cater a crowd including double dishwashers, double sinks, double ovens,extensive prep area and expansive island all with granite counters. Main floor primary suite offers a cozy 2-sided fireplace, sitting area and access to the secluded deck. Each bedroom is uniquely designed with themes reflecting the western lifestyle—dressage, rodeo, and ranching—and includes thoughtful custom touches like horse stall closet doors. Upstairs Jack and Jill bath has 4 sinks and two tub/showers. The other hall bath has three sinks and separate tub/shower area for efficient shared use. The 600 SF school house with its own bath and drinking fountain offers potential as a guest cottage or second dwelling unit. Several concrete block barns originally used for a dairy operation remain with new 2023 roofs, storage rooms, grain loft, tack rooms and several run in sheds for livestock. The large grain silo is a regional landmark and is in excellent condition. The property is completely fenced and cross fenced. There is a new 75-gal water heater, new 2023 roofs (all outbuildings), and fresh exterior paint.

Listing Office: Courtney Associates

Essential Information

  • MLS® #7408618
  • Price$1,500,000
  • Bedrooms6
  • Bathrooms4.00
  • Full Baths3
  • Half Baths1
  • Square Footage4,023
  • Acres80.00
  • Year Built2005
  • TypeResidential
  • Sub-TypeSingle Family Residence
  • StyleRustic
  • StatusActive

Community Information

  • Address11987 N Peyton Highway
  • SubdivisionNone
  • CityPeyton
  • CountyElbert
  • StateCO
  • Zip Code80831

Amenities

  • Parking Spaces2
  • # of Garages2
  • ViewMountain(s), Plains
  • Is WaterfrontYes
  • WaterfrontPond

Utilities

Electricity Connected, Propane

Interior

  • HeatingForced Air, Propane
  • CoolingCentral Air
  • FireplaceYes
  • # of Fireplaces2
  • StoriesTwo

Interior Features

Built-in Features, Entrance Foyer, Five Piece Bath, Granite Counters, High Ceilings, Jack & Jill Bathroom, Kitchen Island, Open Floorplan, Pantry, Primary Suite, Smoke Free, Vaulted Ceiling(s), Walk-In Closet(s)

Appliances

Cooktop, Dishwasher, Disposal, Double Oven, Dryer, Microwave, Range Hood, Refrigerator, Washer

Fireplaces

Gas Log, Great Room, Primary Bedroom

Exterior

  • RoofComposition
  • FoundationConcrete Perimeter

Exterior Features

Fire Pit, Garden, Lighting, Rain Gutters, Water Feature

Lot Description

Irrigated, Landscaped, Level, Many Trees, Meadow, Sprinklers In Front, Subdividable

Windows

Double Pane Windows, Window Treatments

School Information

  • DistrictPeyton 23-JT
  • ElementaryPeyton
  • MiddlePeyton
  • HighPeyton

Additional Information

  • Date ListedOctober 9th, 2025
  • ZoningA-35

Listing Details

  • Courtney Associates
Please provide a valid email address.

Terms and Conditions: The content relating to real estate for sale in this Web site comes in part from the Internet Data eXchange ("IDX") program of METROLIST, INC., DBA RECOLORADO® Real estate listings held by brokers other than RE/MAX Professionals are marked with the IDX Logo. This information is being provided for the consumers personal, non-commercial use and may not be used for any other purpose. All information subject to change and should be independently verified.

Copyright 2025 METROLIST, INC., DBA RECOLORADO® -- All Rights Reserved 6455 S. Yosemite St., Suite 500 Greenwood Village, CO 80111 USA

Listing information last updated on November 13th, 2025 at 11:04am MST.