Connect

233 Eagle Ridge Circle, Granby, CO – $699,999

  • $700k Price
  • 3 Beds
  • 4 Baths
  • 1,728 Sqft
  • $700k Price
  • 3 Beds
  • 4 Baths
  • 1,728 Sqft

New Search X

233 Eagle Ridge Circle

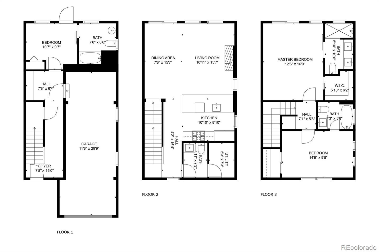
Tucked against a serene hillside in the coveted Grand Elk golf community, this brand-new 3-bedroom townhome offers the perfect blend of luxury, comfort, and convenience—ideal as a primary residence or a second home getaway. Thoughtfully designed with high-end finishes throughout, it features GE appliances, quartz countertops, and elegant modern touches. Each of the three bedrooms is a private suite, providing comfort and seclusion for family and guests. Enjoy peekaboo mountain views and every level has a walkout balcony or deck that invite you to relax and take in that mountain sunshine Located within walking distance to the Grand Elk Clubhouse, residents have easy access to exceptional amenities including the golf course, pro shop, restaurant, swimming pool and hot tub. Design & Customization • Customizable floors and countertops with Good, Better, Best options • Real hardwood floors with choice of stain • Floating bathroom cabinets with touch mirrors • Black hardware accents throughout • Ceiling beams for architectural detail Kitchen Excellence • Wider kitchen island — comfortably seats four • Panel Ready Refrigerator • All Bosch appliances included • 30-inch range with microwave over range • Farm house sink (optional) single or double bowl Living & Entertaining • Limestone fireplace surround with 4’ x 6’ metal mantle • Under stairs glass enclosed wine storage • Ceiling fans in the great room and primary bedroom Outdoor Features • Stone composite deck — slip resistant and heat resistant • Contemporary railings • Optional swing bench at entry Additional Features • Tankless hot water heater • Blinds and washer/dryer included • Additional lighting for enhanced ambiance indoor and outdoor

Listing Office: Coldwell Banker Realty 24

Essential Information

  • MLS® #7435921
  • Price$699,999
  • Bedrooms3
  • Bathrooms4.00
  • Full Baths3
  • Half Baths1
  • Square Footage1,728
  • Acres0.00
  • Year Built2023
  • TypeResidential
  • Sub-TypeTownhouse
  • StyleModular
  • StatusActive

Community Information

  • Address233 Eagle Ridge Circle
  • SubdivisionGrand Elk
  • CityGranby
  • CountyGrand
  • StateCO
  • Zip Code80446

Amenities

  • Parking Spaces2
  • ParkingOversized
  • # of Garages2
  • Has PoolYes
  • PoolOutdoor Pool

Amenities

Clubhouse, Golf Course, Pool, Spa/Hot Tub

Interior

  • HeatingRadiant
  • CoolingNone
  • FireplaceYes
  • # of Fireplaces1
  • StoriesThree Or More

Interior Features

Kitchen Island, Open Floorplan, Quartz Counters

Appliances

Dishwasher, Microwave, Refrigerator

Exterior

  • Exterior FeaturesBalcony
  • RoofShingle

Lot Description

Landscaped, Master Planned, Mountainous, Near Ski Area, On Golf Course, Open Space

School Information

  • DistrictEast Grand 2
  • ElementaryFraser Valley
  • MiddleEast Grand
  • HighMiddle Park

Additional Information

  • Date ListedSeptember 11th, 2025

Listing Details

  • Coldwell Banker Realty 24
Please provide a valid email address.

Terms and Conditions: The content relating to real estate for sale in this Web site comes in part from the Internet Data eXchange ("IDX") program of METROLIST, INC., DBA RECOLORADO® Real estate listings held by brokers other than RE/MAX Professionals are marked with the IDX Logo. This information is being provided for the consumers personal, non-commercial use and may not be used for any other purpose. All information subject to change and should be independently verified.

Copyright 2025 METROLIST, INC., DBA RECOLORADO® -- All Rights Reserved 6455 S. Yosemite St., Suite 500 Greenwood Village, CO 80111 USA

Listing information last updated on December 1st, 2025 at 10:33am MST.