Connect

17294 Highway 52, Fort Lupton, CO – $349,999

  • $350k Price
  • 5.01 Acres
  • $350k Price
  • 5.01 Acres

New Search X

17294 Highway 52

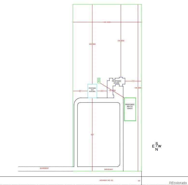
This 5acre parcel is ready for you to build your dream home! The current owners have already done the hard work! Well Permit Portal Plot Plan, Hydrogeological Services, House plot plan with potential Septic and Well locations, High Plains Engineering & Design for Subsurface Investigation and Foundation Recommendations, House Structural Engineering and Arch Plans, Invoice and Receipt for approved new building residential construction, Easement Electrical Site Map, Electrical Permit – Work completed, High Plains Engineering & Design – Septic Design, Septic Permit. See supplemental docs

Listing Office: Key Team Real Estate Corp.

Essential Information

  • MLS® #7481390
  • Price$349,999
  • Bathrooms0.00
  • Acres5.01
  • TypeLand
  • Sub-TypeUnimproved Land
  • StatusActive

Community Information

  • Address17294 Highway 52
  • SubdivisionFort Lupton
  • CityFort Lupton
  • CountyWeld
  • StateCO
  • Zip Code80621

School Information

  • DistrictWeld County RE 3-J

Additional Information

  • Date ListedApril 13th, 2025
  • ZoningAg & Residential

Listing Details

  • Key Team Real Estate Corp.

Office Contact

Cristina@TheKey.Team,720-280-8311

Please provide a valid email address.

Terms and Conditions: The content relating to real estate for sale in this Web site comes in part from the Internet Data eXchange ("IDX") program of METROLIST, INC., DBA RECOLORADO® Real estate listings held by brokers other than RE/MAX Professionals are marked with the IDX Logo. This information is being provided for the consumers personal, non-commercial use and may not be used for any other purpose. All information subject to change and should be independently verified.

Copyright 2025 METROLIST, INC., DBA RECOLORADO® -- All Rights Reserved 6455 S. Yosemite St., Suite 500 Greenwood Village, CO 80111 USA

Listing information last updated on November 27th, 2025 at 11:18pm MST.