Connect

2819 Summer Day Avenue, Castle Rock, CO – $599,500

  • 3 Beds
  • 3 Baths
  • 2,000 Sqft
  • .09 Acres
  • 3 Beds
  • 3 Baths
  • 2,000 Sqft
  • .09 Acres

New Search X

2819 Summer Day Avenue

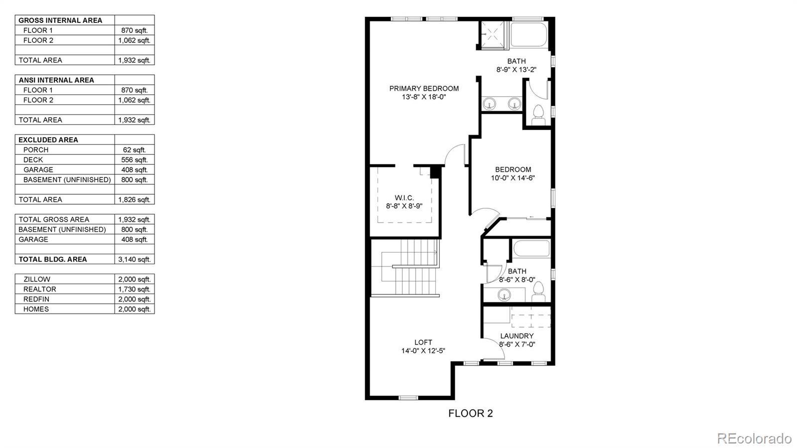
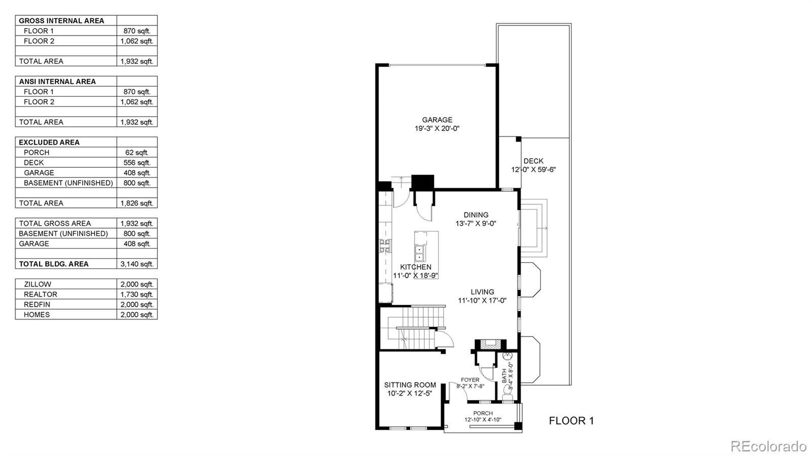
Exquisitely upgraded 2,900 SF home on the greenbelt! Pride of ownership, 3 beds, (one non-conforming main floor bed/ office/ study) + loft, 3-bath, 2 car garage and a large unfinished basement. Thoughtfully designed interior combines open living w/ comfortable private spaces, extensive improvements, ideal for entertaining and everyday life. Step through the foyer to a sparkling show home setting and living room highlighted by expansive windows with plantation shutters throughout, lots of natural light, with stylish hand scraped laminate flooring, & cozy marble surround fireplace. The gourmet kitchen features oversized island, quartz counters, stainless appliances, double oven, gas stove, wine refrigerator, upgraded faucet and lighting, plus pantry. Beautiful dining area with barnwood wall, capped off by a crystal chandelier w/ plenty of room and easy access to the backyard. Meander outside to your private yard and custom Trex deck with views. Upstairs, the primary suite provides a peaceful retreat with a spacious bedroom, large walk-in closet w/ custom storage, en-suite bathroom with dual sinks and step-in shower. Large 2nd bedroom is generously sized and well-suited for family/ guests. A versatile loft area adds flexibility, perfect for many uses. Upper floor laundry with extra storage. Large basement for more space and storage, tankless water heater. Stroll the numerous nearby parks, walking trails, and access to community amenities. Top-rated Douglas County schools. Just minutes away, explore Downtown Castle Rock with charming shops, restaurants, and year-round events, or take advantage of nearby outdoor destinations such as Philip S. Miller Park with its trails, adventure park, and sports fields. Convenient shopping and dining. Combining a beautifully designed interior with a prime location, this property delivers both comfort and lifestyle in one of Castle Rock’s most desirable communities -The Meadows! Better than new, schedule a showing today, it's worth it!

Listing Office: Good Neighbor Living

Essential Information

  • MLS® #7622478
  • Price$599,500
  • Bedrooms3
  • Bathrooms3.00
  • Full Baths2
  • Half Baths1
  • Square Footage2,000
  • Acres0.09
  • Year Built2018
  • TypeResidential
  • Sub-TypeSingle Family Residence
  • StyleTraditional
  • StatusPending

Community Information

  • Address2819 Summer Day Avenue
  • SubdivisionThe Meadows
  • CityCastle Rock
  • CountyDouglas
  • StateCO
  • Zip Code80109

Amenities

  • Parking Spaces2
  • # of Garages2
  • ViewMountain(s)
  • Has PoolYes
  • PoolOutdoor Pool

Amenities

Clubhouse, Park, Pool, Tennis Court(s), Trail(s)

Utilities

Electricity Connected, Natural Gas Connected

Parking

Concrete, Dry Walled, Finished Garage, Floor Coating

Interior

  • HeatingForced Air
  • CoolingCentral Air
  • FireplaceYes
  • # of Fireplaces1
  • FireplacesLiving Room
  • StoriesTwo

Interior Features

Built-in Features, Ceiling Fan(s), Central Vacuum, Entrance Foyer, Five Piece Bath, High Ceilings, Kitchen Island, Open Floorplan, Pantry, Quartz Counters, Smoke Free

Appliances

Dishwasher, Disposal, Double Oven, Dryer, Gas Water Heater, Microwave, Range, Range Hood, Refrigerator, Self Cleaning Oven, Tankless Water Heater, Washer, Wine Cooler

Exterior

  • Exterior FeaturesGas Valve, Private Yard
  • RoofComposition
  • FoundationSlab

Lot Description

Greenbelt, Landscaped, Master Planned, Sprinklers In Front

Windows

Double Pane Windows, Window Coverings

School Information

  • DistrictDouglas RE-1
  • ElementaryMeadow View
  • MiddleCastle Rock
  • HighCastle View

Additional Information

  • Date ListedAugust 21st, 2025

Listing Details

  • Good Neighbor Living
Please provide a valid email address.

Terms and Conditions: The content relating to real estate for sale in this Web site comes in part from the Internet Data eXchange ("IDX") program of METROLIST, INC., DBA RECOLORADO® Real estate listings held by brokers other than RE/MAX Professionals are marked with the IDX Logo. This information is being provided for the consumers personal, non-commercial use and may not be used for any other purpose. All information subject to change and should be independently verified.

Copyright 2025 METROLIST, INC., DBA RECOLORADO® -- All Rights Reserved 6455 S. Yosemite St., Suite 500 Greenwood Village, CO 80111 USA

Listing information last updated on December 11th, 2025 at 2:03pm MST.