Connect

4816 S Zang Way, Morrison, CO – $725,000

  • 3 Beds
  • 3 Baths
  • 1,649 Sqft
  • .16 Acres
  • 3 Beds
  • 3 Baths
  • 1,649 Sqft
  • .16 Acres

New Search X

4816 S Zang Way

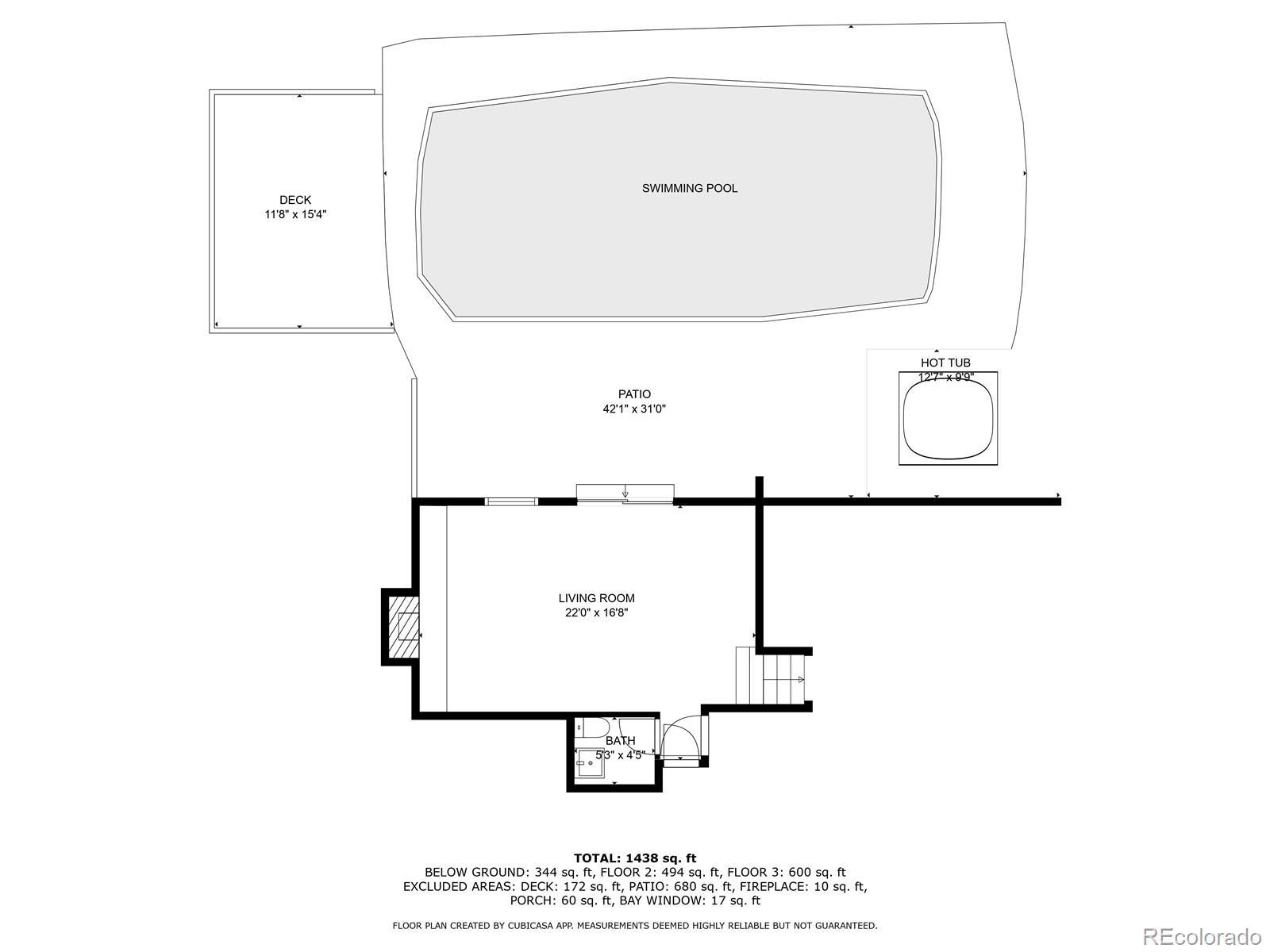
This beautifully maintained multi level home offers the perfect balance of comfort, style, and Colorado living. With 3 bedrooms and 3 bathrooms, the floor plan is both functional and inviting. As you walk into the entry of the home it features a bright and open flex room (currently used as a dining room) with vaulted ceilings and a window seat with storage. The updated kitchen boasts granite tile countertops, stainless steel appliances including GE cafe range and microwave and a Bosch dishwasher, ample cabinetry, and a breakfast nook overlooking the backyard oasis. One level down features a large family room with a gorgeous fireplace that has a beautiful wood burning stove with blower. This level also has a lovely 1/2 bath. Upstairs, the spacious primary suite includes a custom close & private updated en-suite bathroom. Additional bedrooms are generously sized, perfect for family, guests, or a home office. The basement is unfinished and is home to the laundry and work out area - it also has ample storage. Step outside to your own private retreat—complete with a sparkling salt-water pool, hot tub, and expansive patio for outdoor dining and entertaining. Mature landscaping, perennial flower gardens, fully fenced yard, deck, dog run, and vegetable garden make the backyard a true standout feature. Additional amenities include a two-car garage, LVP flooring, and Karastan carpet in the bedrooms. Owner has installed plenty of newer upgrades including furnace, evaporative cooler, hot water heater, pool heater, roof, fireplace insert, and appliances. Located in a quiet neighborhood with easy access to C-470, Hwy 285, and the Rocky Mountain foothills, this home is just minutes from Red Rocks Amphitheatre, Bear Creek Lake Park, and miles of scenic hiking and biking trails. Don’t miss the opportunity to own this exceptional Morrison home with rare outdoor amenities, a spacious floor plan, and an unbeatable location. Owned by Colorado Real Estate Agents.

Listing Office: Spirit Bear Realty

Essential Information

  • MLS® #7641457
  • Price$725,000
  • Bedrooms3
  • Bathrooms3.00
  • Full Baths1
  • Half Baths1
  • Square Footage1,649
  • Acres0.16
  • Year Built1977
  • TypeResidential
  • Sub-TypeSingle Family Residence
  • StyleTraditional
  • StatusActive

Community Information

  • Address4816 S Zang Way
  • SubdivisionFriendly Hills
  • CityMorrison
  • CountyJefferson
  • StateCO
  • Zip Code80465

Amenities

  • Parking Spaces2
  • # of Garages2
  • ViewMountain(s)
  • Has PoolYes
  • PoolOutdoor Pool, Private

Utilities

Cable Available, Electricity Available, Electricity Connected, Internet Access (Wired), Natural Gas Connected, Phone Connected

Parking

Concrete, Lighted, Oversized, Storage

Interior

  • CoolingEvaporative Cooling
  • FireplaceYes
  • # of Fireplaces1
  • StoriesMulti/Split

Interior Features

Ceiling Fan(s), Eat-in Kitchen, Pantry, Primary Suite, Smart Thermostat, Smoke Free, Hot Tub, Tile Counters

Appliances

Dishwasher, Disposal, Microwave, Range, Refrigerator

Heating

Forced Air, Natural Gas, Wood Stove

Fireplaces

Family Room, Insert, Wood Burning

Exterior

  • RoofComposition
  • FoundationSlab

Exterior Features

Dog Run, Garden, Gas Grill, Gas Valve, Private Yard, Rain Gutters, Spa/Hot Tub

Lot Description

Landscaped, Level, Sprinklers In Front, Sprinklers In Rear

Windows

Bay Window(s), Double Pane Windows, Skylight(s), Window Coverings

School Information

  • DistrictJefferson County R-1
  • ElementaryKendallvue
  • MiddleCarmody
  • HighBear Creek

Additional Information

  • Date ListedSeptember 19th, 2025
  • ZoningP-D

Listing Details

  • Spirit Bear Realty
Please provide a valid email address.

Terms and Conditions: The content relating to real estate for sale in this Web site comes in part from the Internet Data eXchange ("IDX") program of METROLIST, INC., DBA RECOLORADO® Real estate listings held by brokers other than RE/MAX Professionals are marked with the IDX Logo. This information is being provided for the consumers personal, non-commercial use and may not be used for any other purpose. All information subject to change and should be independently verified.

Copyright 2025 METROLIST, INC., DBA RECOLORADO® -- All Rights Reserved 6455 S. Yosemite St., Suite 500 Greenwood Village, CO 80111 USA

Listing information last updated on October 17th, 2025 at 12:48am MDT.