Connect

11074 Grayledge Circle, Highlands Ranch, CO – $975,000

  • 4 Beds
  • 4 Baths
  • 4,576 Sqft
  • .18 Acres
  • 4 Beds
  • 4 Baths
  • 4,576 Sqft
  • .18 Acres

New Search X

11074 Grayledge Circle

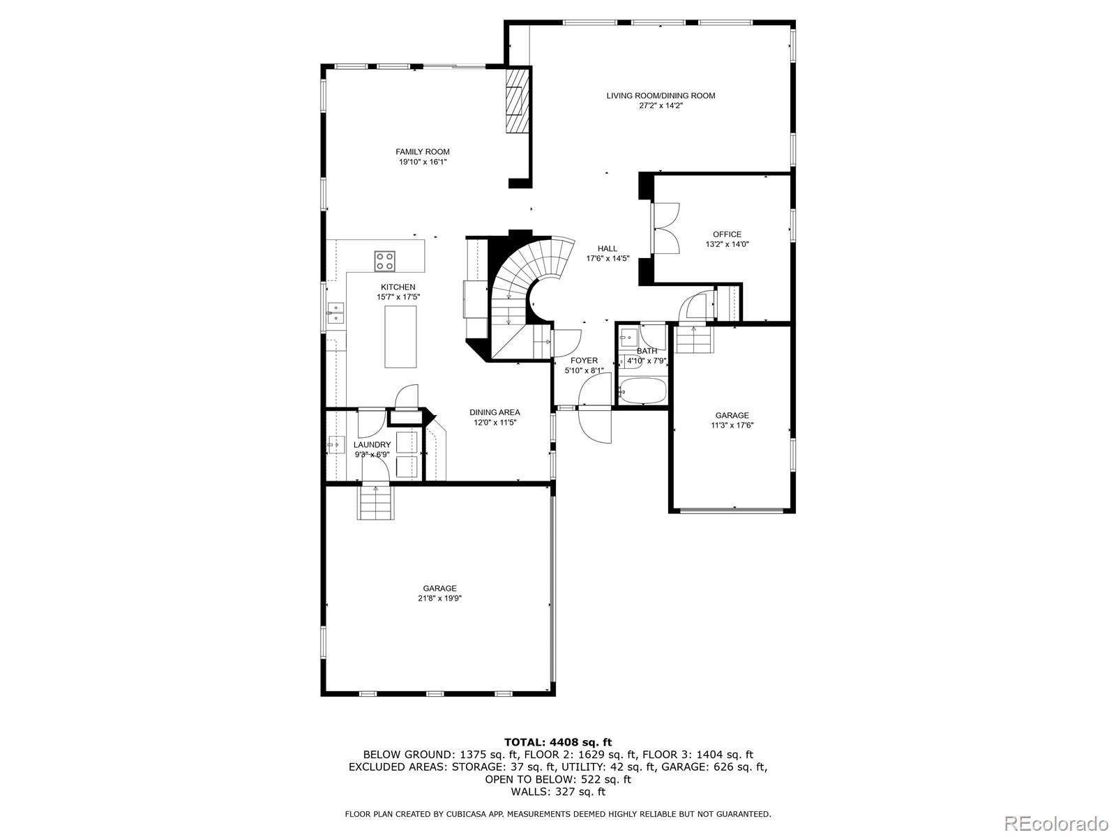
Perfectly positioned on one of the neighborhood’s most coveted streets, this exceptional home offers front-row access to hundreds of acres of open space and future trail systems just steps from your front door. Inside, you’ll find gleaming hardwood floors across the main level, brand-new upstairs carpet, and an abundance of natural light throughout. The main floor is thoughtfully designed with a full bath, a spacious office with French doors, and a warm, inviting family room centered around a cozy fireplace. The kitchen is both functional and elegant, featuring granite countertops, stainless steel appliances, an induction cooktop, double ovens, and a sunny breakfast nook with a butler’s pantry. Upstairs, an open loft with built-ins and a mini fridge overlooks peaceful open space, creating a flexible retreat or hangout area. It could also easily be converted to a bedroom if extra space is needed. Two front bedrooms capture beautiful views, one with a walk-in closet, while a full bath serves the level. The primary suite is a true sanctuary with two walk-in closets and a luxurious five-piece bath complete with dual sinks and a soaking tub. The finished basement is built for entertaining, offering a wet bar, home theater setup, and generous space for games. A pool table, foosball table, and home theater equipment are all included. Outside, relax on the covered patio with ceiling fan, ideal for summer evenings. Additional highlights include a three-car garage, plantation shutters, main-floor laundry, new exterior paint, and access to top-rated schools, extensive trail systems, and all four community recreation centers. From porch-side elk sightings and neighborhood block parties to nearby parks and rec centers, this home truly delivers the Colorado lifestyle at its best.

Listing Office: RE/MAX Leaders

Essential Information

  • MLS® #7649450
  • Price$975,000
  • Bedrooms4
  • Bathrooms4.00
  • Full Baths3
  • Square Footage4,576
  • Acres0.18
  • Year Built2005
  • TypeResidential
  • Sub-TypeSingle Family Residence
  • StatusPending

Community Information

  • Address11074 Grayledge Circle
  • SubdivisionThe Hearth
  • CityHighlands Ranch
  • CountyDouglas
  • StateCO
  • Zip Code80130

Amenities

  • Parking Spaces3
  • # of Garages3
  • ViewMeadow

Amenities

Fitness Center, Playground, Pool, Sauna, Spa/Hot Tub, Tennis Court(s)

Interior

  • HeatingForced Air
  • CoolingCentral Air
  • FireplaceYes
  • # of Fireplaces1
  • FireplacesFamily Room, Gas
  • StoriesTwo

Interior Features

Breakfast Bar, Ceiling Fan(s), Five Piece Bath, Granite Counters, High Ceilings, Kitchen Island, Pantry, Radon Mitigation System, Walk-In Closet(s), Wet Bar

Appliances

Bar Fridge, Convection Oven, Cooktop, Dishwasher, Disposal, Double Oven, Microwave, Refrigerator

Exterior

  • RoofComposition
  • FoundationSlab

Windows

Double Pane Windows, Window Coverings

School Information

  • DistrictDouglas RE-1
  • ElementaryWildcat Mountain
  • MiddleRocky Heights
  • HighRock Canyon

Additional Information

  • Date ListedJanuary 10th, 2026
  • ZoningPDU

Listing Details

  • RE/MAX Leaders
Please provide a valid email address.

Terms and Conditions: The content relating to real estate for sale in this Web site comes in part from the Internet Data eXchange ("IDX") program of METROLIST, INC., DBA RECOLORADO® Real estate listings held by brokers other than RE/MAX Professionals are marked with the IDX Logo. This information is being provided for the consumers personal, non-commercial use and may not be used for any other purpose. All information subject to change and should be independently verified.

Copyright 2026 METROLIST, INC., DBA RECOLORADO® -- All Rights Reserved 6455 S. Yosemite St., Suite 500 Greenwood Village, CO 80111 USA

Listing information last updated on January 18th, 2026 at 2:18pm MST.