Connect

2831 Overton Road, Pueblo, CO – $524,000

  • 5 Beds
  • 3 Baths
  • 3,206 Sqft
  • 6.3 Acres
  • 5 Beds
  • 3 Baths
  • 3,206 Sqft
  • 6.3 Acres

New Search X

2831 Overton Road

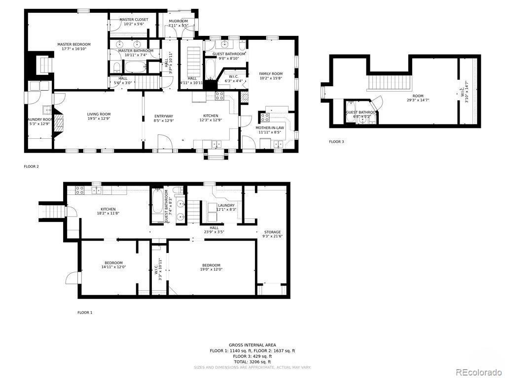
Come see this Texas-Style property, on 6.3 acres of land, 3,200 sf of living space and 8 garage spaces plus. As you walk up to the covered porch, you will find a spacious, comfortable sitting area for entertaining or enjoying the beautiful views. Once you walk through the front door you will land in an open kitchen & dining area, with a nice loft-style mother-in-law space which includes a full kitchen, bath, walk-in closet and fireplace. The living room is outfitted with a cozy fireplace and ceiling fan. This home is equipped with three kitchens, two laundry rooms; one on the main and the other in the basement. Upper floor can be used as a kid's playroom and has a full bath. Has set-up for avid car enthusiasts or mechanics, with a hydraulic industrial grade lift in the garage and enough room for a monster truck and a detached paint booth. Lean-to-Shed that houses the Monster Truck (not included in the sale). Mountain Views and is zoned AG 1 - Fenced-in backyard with above ground pool off the deck. Also, you will find a big chicken coop, a sizeable shed that can be converted into a Tiny Home. Two wells serving this property, full filtered water system. Room for RV parking. Lots of possibilities with this property are endless. Inclusions: Refrigerator, Electric Stove, Microwave & Dishwasher. GE Electric Stove, Fridge. Washer & Dryer, Kenmore Electric Stove, Dishwasher. Central air conditioning, Solar panels (paid off).

Listing Office: Keller Williams Performance Realty

Essential Information

  • MLS® #7672974
  • Price$524,000
  • Bedrooms5
  • Bathrooms3.00
  • Full Baths2
  • Square Footage3,206
  • Acres6.30
  • Year Built1930
  • TypeResidential
  • Sub-TypeSingle Family Residence
  • StatusActive

Community Information

  • Address2831 Overton Road
  • SubdivisionNone
  • CityPueblo
  • CountyPueblo
  • StateCO
  • Zip Code81008

Amenities

  • Parking Spaces11
  • # of Garages11

Interior

  • HeatingForced Air, Natural Gas
  • CoolingCentral Air
  • StoriesTwo

Exterior

  • RoofComposition

School Information

  • DistrictPueblo County 70
  • ElementaryVineland
  • MiddleThe Connect School
  • HighPueblo County

Additional Information

  • Date ListedMarch 18th, 2025

Listing Details

Keller Williams Performance Realty

Please provide a valid email address.

Terms and Conditions: The content relating to real estate for sale in this Web site comes in part from the Internet Data eXchange ("IDX") program of METROLIST, INC., DBA RECOLORADO® Real estate listings held by brokers other than RE/MAX Professionals are marked with the IDX Logo. This information is being provided for the consumers personal, non-commercial use and may not be used for any other purpose. All information subject to change and should be independently verified.

Copyright 2025 METROLIST, INC., DBA RECOLORADO® -- All Rights Reserved 6455 S. Yosemite St., Suite 500 Greenwood Village, CO 80111 USA

Listing information last updated on November 8th, 2025 at 3:37am MST.