Connect

503 Bonfoy Avenue, Colorado Springs, CO – $285,000

  • 2 Beds
  • 1 Bath
  • 1,284 Sqft
  • .1 Acres
  • 2 Beds
  • 1 Bath
  • 1,284 Sqft
  • .1 Acres

New Search X

503 Bonfoy Avenue

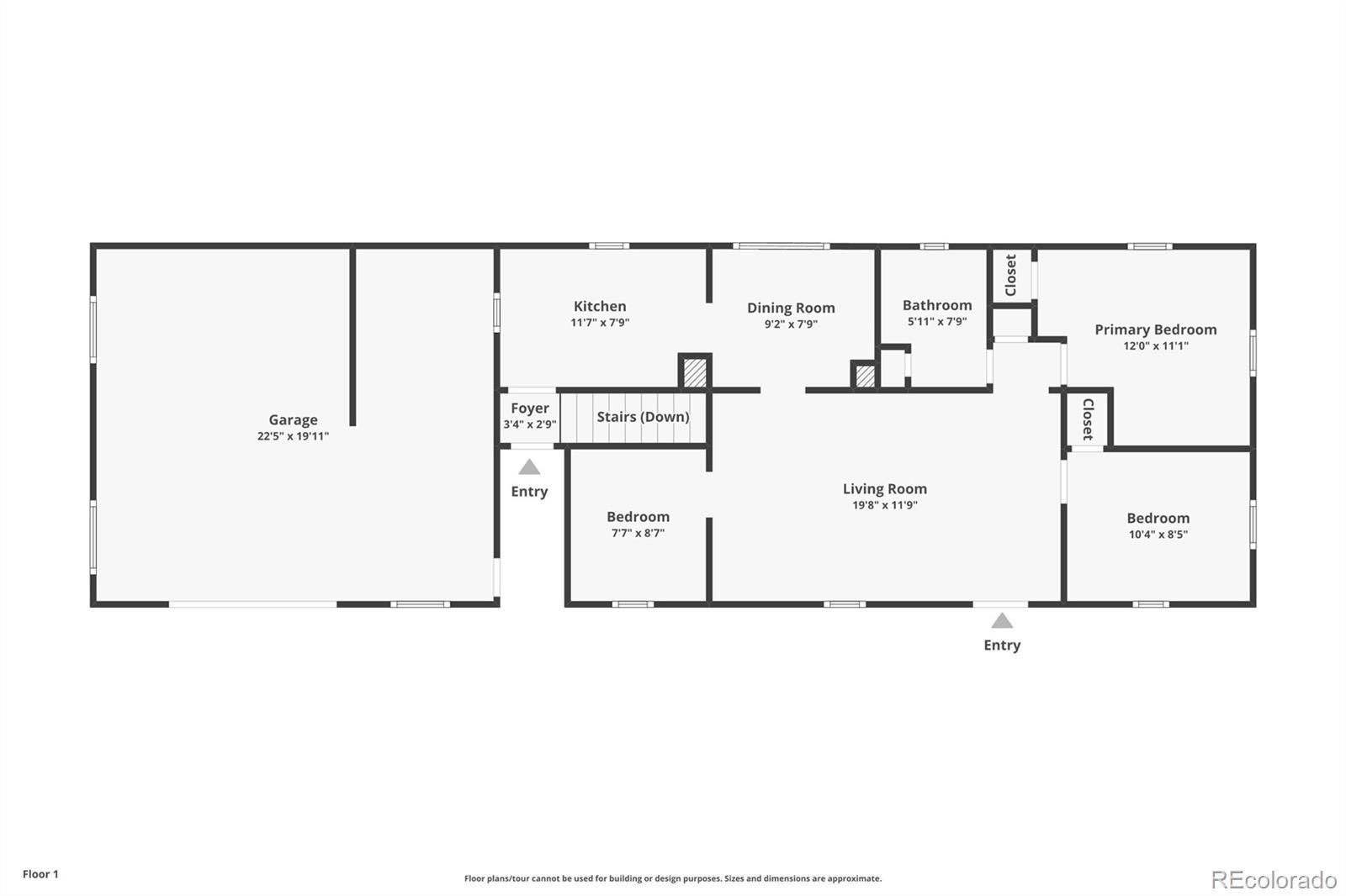
Charming 1940s 2-bedroom, 1-bathroom home situated on a corner lot! This Knob Hill gem is filled with character and timeless appeal. Step through the beautiful glass front door with the original skeleton key into a warm and inviting living space featuring arched doorways, built-in bookshelves, and original hardwood floors. Fresh new paint highlights the home’s vintage details, while the clawfoot tub adds a touch of classic elegance. The basement offers great potential with an additional living room and a bonus room, ideal for storage, hobbies, or a workshop, plus a laundry area with a utility shower for added convenience. Outside, enjoy the spacious side yard, perfect for gardening or entertaining, along with an oversized 1-car detached garage providing ample parking and storage space. Conveniently located near Downtown Colorado Springs and all of its amenities, as well as Memorial Hospital, parks, schools, shopping, and dining, this 1940s gem blends historic charm with modern comfort in a wonderful neighborhood setting. Schedule your showing today- this home is bursting with potential!

Listing Office: eXp Realty, LLC

Essential Information

  • MLS® #7815551
  • Price$285,000
  • Bedrooms2
  • Bathrooms1.00
  • Full Baths1
  • Square Footage1,284
  • Acres0.10
  • Year Built1941
  • TypeResidential
  • Sub-TypeSingle Family Residence
  • StatusActive

Community Information

  • Address503 Bonfoy Avenue
  • SubdivisionKnob Hill
  • CityColorado Springs
  • CountyEl Paso
  • StateCO
  • Zip Code80909

Amenities

  • UtilitiesElectricity Connected
  • Parking Spaces1
  • ParkingOversized
  • # of Garages1

Interior

  • AppliancesDryer, Washer
  • HeatingForced Air
  • CoolingNone
  • StoriesOne

Exterior

  • Lot DescriptionLevel
  • RoofComposition

School Information

  • DistrictColorado Springs 11
  • ElementaryRogers
  • MiddleGalileo
  • HighPalmer

Additional Information

  • Date ListedOctober 30th, 2025

Listing Details

  • eXp Realty, LLC
Please provide a valid email address.

Terms and Conditions: The content relating to real estate for sale in this Web site comes in part from the Internet Data eXchange ("IDX") program of METROLIST, INC., DBA RECOLORADO® Real estate listings held by brokers other than RE/MAX Professionals are marked with the IDX Logo. This information is being provided for the consumers personal, non-commercial use and may not be used for any other purpose. All information subject to change and should be independently verified.

Copyright 2025 METROLIST, INC., DBA RECOLORADO® -- All Rights Reserved 6455 S. Yosemite St., Suite 500 Greenwood Village, CO 80111 USA

Listing information last updated on November 23rd, 2025 at 12:03am MST.