Connect

357 Smith Circle, Erie, CO – $400,000

  • 3 Beds
  • 2 Baths
  • 1,240 Sqft
  • .04 Acres
  • 3 Beds
  • 2 Baths
  • 1,240 Sqft
  • .04 Acres

New Search X

357 Smith Circle

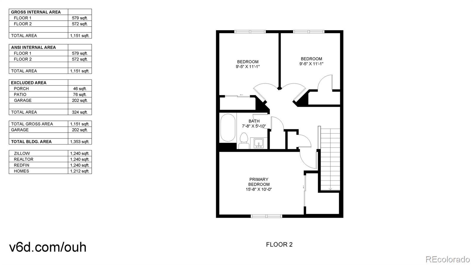
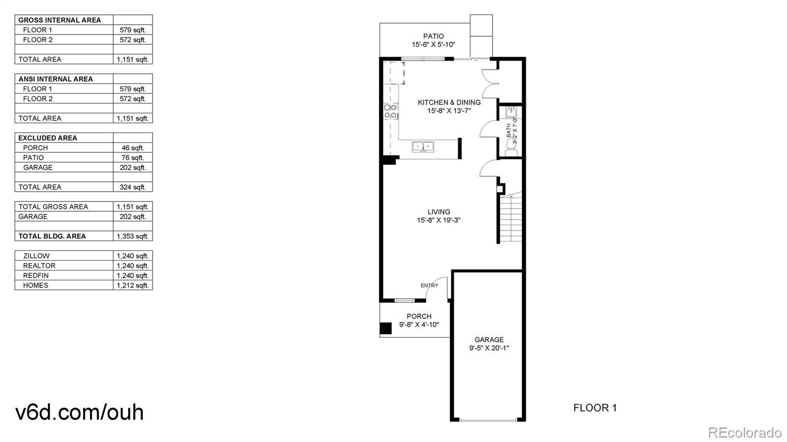
Completely reimagined and move-in ready, this stunning townhome feels brand new from top to bottom! Nearly every surface has been touched with thoughtful updates and high-quality finishes throughout. Step inside to discover new engineered hardwood floors on the main level, fresh paint with Sherwin-Williams Emerald acrylic, new baseboards, and upgraded LED lighting. The kitchen was taken down to the studs and beautifully rebuilt with new Merillat soft-close cabinetry, Cambria Whittendale quartz countertops, roll-out shelves, a bar-height counter, and new stainless Frigidaire appliances. The new Blanco undermount sink, Delta faucet, and contemporary fixtures complete the look. Upstairs, new Luxor carpeting and plush padding provide warmth and comfort throughout all bedrooms. The reconfigured primary closet offers custom shelving and double hanging rods. Both bathrooms were remodeled with new Merillat vanities, quartz countertops, Delta faucets, LED lighting, new Toto toilets, and elegant tilework. The jetted tub was refinished and enhanced with a new Delta shower system and handheld sprayer. All windows were replaced with energy-efficient Gerkin vinyl windows, trimmed in wood for a polished finish. The HVAC system was serviced, new vents and returns were added, and a new keyless front entry was installed for modern convenience. Outside, enjoy a private fenced yard and patio that backs to a greenbelt and neighborhood park—perfect for relaxing or entertaining. The one-car attached garage features extra storage, including repurposed cabinetry, and a brand-new garage door that is on order. Located just minutes from Old Town Erie’s shops, dining, and recreation, this turnkey townhome blends style, comfort, and convenience in one of Weld County’s most desirable communities.

Listing Office: Berkshire Hathaway HomeServices Colorado Real Estate, LLC

Essential Information

  • MLS® #7878989
  • Price$400,000
  • Bedrooms3
  • Bathrooms2.00
  • Full Baths1
  • Half Baths1
  • Square Footage1,240
  • Acres0.04
  • Year Built2003
  • TypeResidential
  • Sub-TypeTownhouse
  • StyleContemporary
  • StatusPending

Community Information

  • Address357 Smith Circle
  • SubdivisionGrandview
  • CityErie
  • CountyWeld
  • StateCO
  • Zip Code80516

Amenities

  • Parking Spaces1
  • ParkingConcrete
  • # of Garages1

Interior

  • HeatingForced Air
  • CoolingCentral Air
  • StoriesTwo

Exterior

  • Exterior FeaturesRain Gutters
  • Lot DescriptionGreenbelt, Open Space
  • RoofComposition

School Information

  • DistrictSt. Vrain Valley RE-1J
  • ElementaryRed Hawk
  • MiddleErie
  • HighErie

Additional Information

  • Date ListedNovember 6th, 2025

Listing Details

Berkshire Hathaway HomeServices Colorado Real Estate, LLC

Please provide a valid email address.

Terms and Conditions: The content relating to real estate for sale in this Web site comes in part from the Internet Data eXchange ("IDX") program of METROLIST, INC., DBA RECOLORADO® Real estate listings held by brokers other than RE/MAX Professionals are marked with the IDX Logo. This information is being provided for the consumers personal, non-commercial use and may not be used for any other purpose. All information subject to change and should be independently verified.

Copyright 2025 METROLIST, INC., DBA RECOLORADO® -- All Rights Reserved 6455 S. Yosemite St., Suite 500 Greenwood Village, CO 80111 USA

Listing information last updated on November 30th, 2025 at 5:18pm MST.