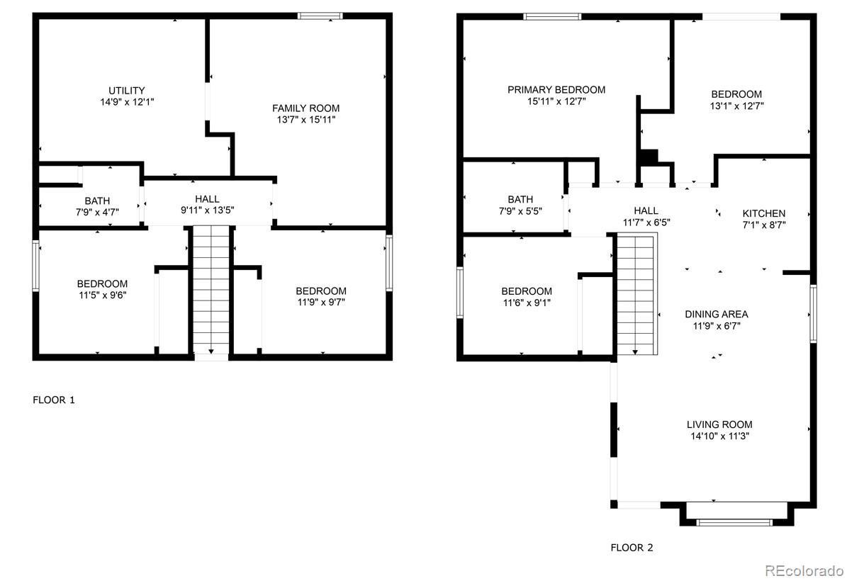
Welcome to this charming ranch-style home in the established Heritage neighborhood, perfectly located near parks, schools, and shopping. This move-in ready property offers 4 bedrooms, 2 bathrooms, and over 1,700 finished square feet of living space. Step inside to find a bright and open living room with large windows that fill the space with natural light. The main level features two bedrooms, a full bathroom, and a cozy dining area off the kitchen. The kitchen is equipped with solid surface countertops and all major appliances, making meal prep a breeze.You’ll also find a bonus room with a sliding glass door leading to the backyard, adding flexibility for hobbies, workouts, or an extra entertainment space. Downstairs, the finished basement provides even more living space with an additional two bedrooms, full bath, laundry area, and a spacious family room—perfect for guests, a home office, or movie nights. Step outside and enjoy Colorado evenings in your fenced backyard featuring a composite deck, an above-ground pool, and plenty of space for summer barbecues and outdoor fun. This home also comes equipped with paid-off solar panels, helping keep utility costs low year-round. Additional highlights include central air conditioning, ceiling fans, vinyl windows, and a 2-car attached garage. Located in Harrison School District 2, this home is within walking distance to Centennial Elementary, Panorama Middle, and Sierra High School, making it a convenient choice for families. With easy access to Academy Blvd and nearby shopping centers, this home balances comfort and convenience. This Bowman Court gem has it all—schedule your private showing today!
Listing Office: eXp Realty, LLC  
 
Electricity Connected, Natural Gas Connected
Ceiling Fan(s), High Speed Internet, Open Floorplan
 eXp Realty, LLC
eXp Realty, LLC Terms and Conditions: The content relating to real estate for sale in this Web site comes in  part from the Internet Data eXchange ("IDX") program of METROLIST, INC., DBA RECOLORADO® Real estate listings held by brokers other than RE/MAX Professionals are marked with the IDX Logo. This information is being  provided for the consumers personal, non-commercial use and may not be  used for any other purpose. All information subject to change and  should be independently verified.
 Terms and Conditions: The content relating to real estate for sale in this Web site comes in  part from the Internet Data eXchange ("IDX") program of METROLIST, INC., DBA RECOLORADO® Real estate listings held by brokers other than RE/MAX Professionals are marked with the IDX Logo. This information is being  provided for the consumers personal, non-commercial use and may not be  used for any other purpose. All information subject to change and  should be independently verified.
Copyright 2025 METROLIST, INC., DBA RECOLORADO® -- All Rights Reserved 6455 S. Yosemite St., Suite 500 Greenwood Village, CO 80111 USA
Listing information last updated on October 31st, 2025 at 10:04am MDT.