Connect

39 S Grant Street, Denver, CO – $685,000

  • 3 Beds
  • 2 Baths
  • 1,250 Sqft
  • ½ Acres
  • 3 Beds
  • 2 Baths
  • 1,250 Sqft
  • ½ Acres

New Search X

39 S Grant Street

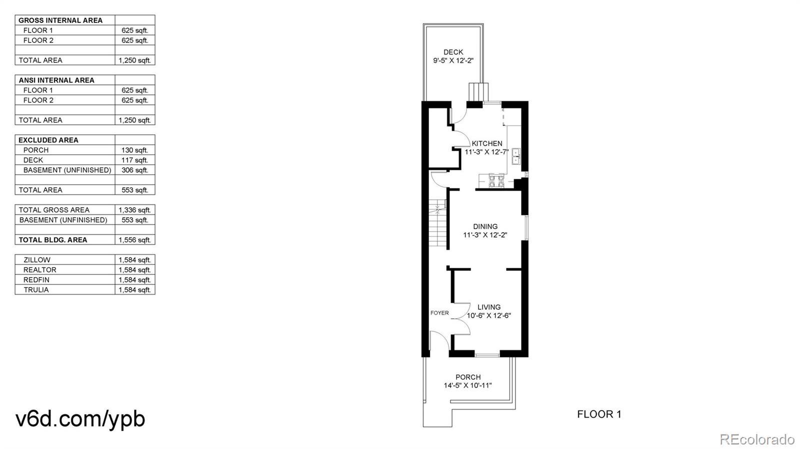
Fresh opportunity! This Historic 1895 residence is newly positioned as a single-family duplex, offering privacy, a generous yard, and timeless character rarely found this close to Wash Park West and nestled in the heart of Denver. This charming home sits along tree-lined Grant Street, offering timeless architecture and a true neighborhood feel. Just blocks from vibrant South Broadway and its sought-after shops, restaurants, and cafés, you’re moments from Baker, Wash Park, Cherry Creek North, Downtown Denver, and some of the city’s best dining, shopping, and entertainment, yet surrounded by peaceful, residential serenity. Inside, this 3bed, 2bath home beautifully blends 1895 craftsmanship with modern comfort. Sparkling original hardwood floors, transom windows, solid wood doors, preserved trim work, and classic proportions speak to the home’s historic character, while updated wiring and plumbing support today’s lifestyle. The sun filled kitchen features granite countertops and opens to a private, fenced backyard retreat, ideal for morning coffee, evening relaxation, entertaining guests, or providing a secure outdoor space for pets. The oversized primary bedroom offers a rare and comfortable retreat for a historic home, while a main-level bathroom with a walk-in shower adds everyday convenience and doubles as a functional mudroom perfect for cleaning up after pets or outdoor adventures. A basement provides valuable additional storage, a highly sought-after feature in historic properties. Rare for the area, off-street parking further enhances convenience in this highly walkable neighborhood. With a Walk Score of 93, enjoy easy access to boutiques, cafés, live music venues, lush parks, light rail, and quick downtown commuting by bike or car. If you’re drawn to historic charm, urban convenience, or a strong sense of community this home offers a rare opportunity to own a beautifully preserved piece of Denver’s architectural story.

Listing Office: Coldwell Banker Global Luxury Denver

Essential Information

  • MLS® #8253871
  • Price$685,000
  • Bedrooms3
  • Bathrooms2.00
  • Full Baths1
  • Square Footage1,250
  • Acres0.05
  • Year Built1895
  • TypeResidential
  • Sub-TypeSingle Family Residence
  • StatusActive

Community Information

  • Address39 S Grant Street
  • SubdivisionSpeer
  • CityDenver
  • CountyDenver
  • StateCO
  • Zip Code80209

Amenities

  • Parking Spaces2

Interior

  • HeatingForced Air
  • CoolingOther
  • FireplaceYes
  • # of Fireplaces1
  • FireplacesLiving Room
  • StoriesTwo

Interior Features

Ceiling Fan(s), Entrance Foyer, Granite Counters, High Ceilings, Kitchen Island, Primary Suite, Smoke Free

Appliances

Dishwasher, Disposal, Dryer, Microwave, Oven, Refrigerator, Washer

Exterior

  • Exterior FeaturesPrivate Yard, Rain Gutters
  • RoofComposition

Lot Description

Historical District, Landscaped

School Information

  • DistrictDenver 1
  • ElementaryDora Moore
  • MiddleGrant
  • HighSouth

Additional Information

  • Date ListedFebruary 4th, 2026
  • ZoningU-TU-B2

Listing Details

Coldwell Banker Global Luxury Denver

Please provide a valid email address.

Terms and Conditions: The content relating to real estate for sale in this Web site comes in part from the Internet Data eXchange ("IDX") program of METROLIST, INC., DBA RECOLORADO® Real estate listings held by brokers other than RE/MAX Professionals are marked with the IDX Logo. This information is being provided for the consumers personal, non-commercial use and may not be used for any other purpose. All information subject to change and should be independently verified.

Copyright 2026 METROLIST, INC., DBA RECOLORADO® -- All Rights Reserved 6455 S. Yosemite St., Suite 500 Greenwood Village, CO 80111 USA

Listing information last updated on February 6th, 2026 at 10:18pm MST.