Connect

4179 S Fraser Circle E, Aurora, CO – $439,000

  • 3 Beds
  • 2 Baths
  • 2,328 Sqft
  • .06 Acres
  • 3 Beds
  • 2 Baths
  • 2,328 Sqft
  • .06 Acres

New Search X

4179 S Fraser Circle E

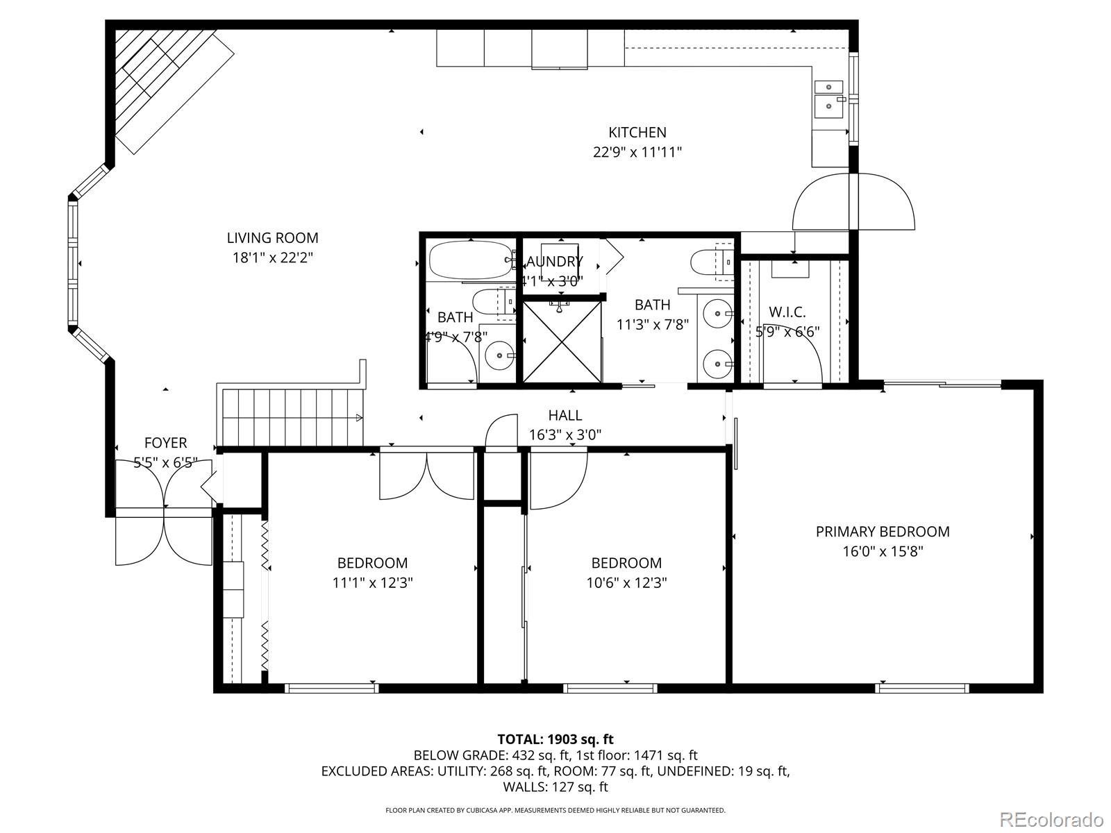
Welcome home to Popular Summit Park—where a rare ranch-style townhome gives you the comfort of true main-level living in a private end-unit setting. From the moment you walk in, the home feels open, bright, and welcoming, with a vaulted ceiling, a beautiful bay window, and five skylights that fill the space with natural light. The gourmet kitchen has been completely remodeled and redesigned, featuring gorgeous cherry cabinets and silestone quartz countertops, double-trivection ovens, a large center island with a sink, and tons of cabinet space, creating a warm space that’s perfect for everyday living and easy entertaining. You’ll appreciate the brand-new carpet throughout, the fully remodeled bathrooms, and the peace of mind that comes with all windows and doors replaced, plus a newer, updated electrical panel. The layout is both spacious and practical with convenient main-level laundry, three large bedrooms, and a relaxing primary suite featuring a walk-in closet, a large wheelchair-accessible shower, and a private access door to the covered patio—ideal for quiet mornings or unwinding at the end of the day. The finished basement adds valuable bonus space and plenty of storage, and the complete appliance package is included so you can move right in. Enjoy the convenience of a two-car garage with storage cabinets, guest parking across from the unit, and a community where the maintenance fee includes water, plus great amenities like two pools and two tennis courts. With a newer roof and siding already in place and an outstanding location close to Cherry Creek Reservoir, light rail station, I-225, I-25, the Denver Tech Center, golf courses, Buckley Air Force Base, Anschutz Medical Center, and DIA, this is a hard-to-find opportunity to own a beautifully updated, move-in-ready home in one of the area’s most connected locations

Listing Office: RE/MAX Professionals

Essential Information

  • MLS® #8325688
  • Price$439,000
  • Bedrooms3
  • Bathrooms2.00
  • Full Baths1
  • Square Footage2,328
  • Acres0.06
  • Year Built1983
  • TypeResidential
  • Sub-TypeTownhouse
  • StyleContemporary
  • StatusActive

Community Information

  • Address4179 S Fraser Circle E
  • SubdivisionSummit Park
  • CityAurora
  • CountyArapahoe
  • StateCO
  • Zip Code80014

Amenities

  • Parking Spaces2
  • # of Garages2
  • Has PoolYes
  • PoolOutdoor Pool

Amenities

Pool, Tennis Court(s), Trail(s)

Utilities

Electricity Connected, Natural Gas Connected

Parking

Exterior Access Door, Oversized, Storage

Interior

  • HeatingForced Air
  • CoolingCentral Air
  • FireplaceYes
  • # of Fireplaces1
  • FireplacesGas, Living Room
  • StoriesOne

Interior Features

High Ceilings, Open Floorplan, Pantry, Primary Suite, Quartz Counters, Smoke Free, Vaulted Ceiling(s), Walk-In Closet(s)

Appliances

Cooktop, Dishwasher, Double Oven, Dryer, Gas Water Heater, Microwave, Oven, Refrigerator, Washer

Exterior

  • Exterior FeaturesTennis Court(s)
  • Lot DescriptionCul-De-Sac, Master Planned
  • RoofComposition
  • FoundationConcrete Perimeter

Windows

Bay Window(s), Double Pane Windows, Egress Windows, Skylight(s), Window Coverings

School Information

  • DistrictCherry Creek 5
  • ElementaryIndependence
  • MiddleLaredo
  • HighSmoky Hill

Additional Information

  • Date ListedJanuary 27th, 2026

Listing Details

  • RE/MAX Professionals
Please provide a valid email address.

Terms and Conditions: The content relating to real estate for sale in this Web site comes in part from the Internet Data eXchange ("IDX") program of METROLIST, INC., DBA RECOLORADO® Real estate listings held by brokers other than RE/MAX Professionals are marked with the IDX Logo. This information is being provided for the consumers personal, non-commercial use and may not be used for any other purpose. All information subject to change and should be independently verified.

Copyright 2026 METROLIST, INC., DBA RECOLORADO® -- All Rights Reserved 6455 S. Yosemite St., Suite 500 Greenwood Village, CO 80111 USA

Listing information last updated on February 1st, 2026 at 2:03am MST.