Connect

9256 W Ontario Drive, Littleton, CO – $319,000

  • 3 Beds
  • 2 Baths
  • 1,116 Sqft
  • .02 Acres
  • 3 Beds
  • 2 Baths
  • 1,116 Sqft
  • .02 Acres

New Search X

9256 W Ontario Drive

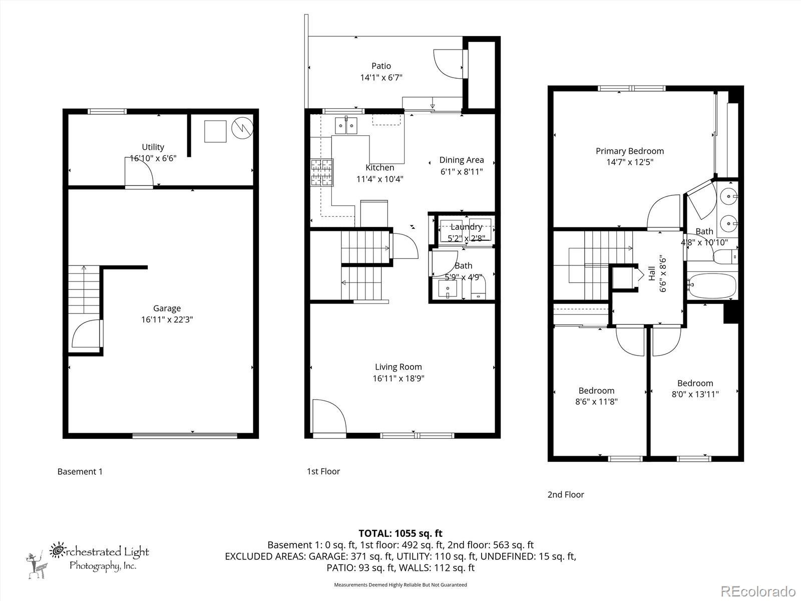
End-unit townhome in the desirable Dutch Ridge community with privacy and open shared space behind — no direct backyard neighbors! Ideally positioned close to trails linking to scenic greenbelts and outdoor spaces, and just minutes to foothills recreation and C-470 access for easy commuting and weekend mountain escapes. The home has fresh interior paint and new carpet, making it move-in ready. The attached single garage with additional side storage, plus a dedicated parking space and room for an additional vehicle in the driveway, makes this home even more appealing. Beyond the garage is a versatile interior room — perfect for a workshop, fitness area, extra storage or hobby space. Upstairs features a primary bedroom with an attached full bath plus two additional bedrooms, creating a highly functional layout at this price point. Plus, a lovely patio area looking out onto professionally landscaped lawn means you get the benefit of having a yard without the maintenance! Residents enjoy access to a community pool, playgrounds, and neighborhood paths, enhancing lifestyle in this well-established Littleton community. Close to parks, shopping, and dining, and highly rated Jeffco schools. Don’t miss this rare package in Dutch Ridge!

Listing Office: NextHome Aspire

Essential Information

  • MLS® #8373587
  • Price$319,000
  • Bedrooms3
  • Bathrooms2.00
  • Full Baths1
  • Half Baths1
  • Square Footage1,116
  • Acres0.02
  • Year Built1982
  • TypeResidential
  • Sub-TypeTownhouse
  • StatusPending

Community Information

  • Address9256 W Ontario Drive
  • SubdivisionDutch Ridge
  • CityLittleton
  • CountyJefferson
  • StateCO
  • Zip Code80128

Amenities

  • Parking Spaces3
  • ParkingStorage
  • # of Garages1

Amenities

Clubhouse, Parking, Playground, Pool, Trail(s)

Utilities

Electricity Available, Natural Gas Connected

Interior

  • HeatingForced Air
  • CoolingNone
  • StoriesTwo

Interior Features

Breakfast Bar, Ceiling Fan(s), Pantry, Tile Counters, Vaulted Ceiling(s)

Appliances

Cooktop, Dishwasher, Dryer, Gas Water Heater, Oven, Range Hood, Refrigerator, Washer, Water Softener

Exterior

  • Lot DescriptionLandscaped
  • RoofComposition

School Information

  • DistrictJefferson County R-1
  • ElementaryStony Creek
  • MiddleDeer Creek
  • HighChatfield

Additional Information

  • Date ListedJanuary 30th, 2026
  • ZoningP-D

Listing Details

  • NextHome Aspire
Please provide a valid email address.

Terms and Conditions: The content relating to real estate for sale in this Web site comes in part from the Internet Data eXchange ("IDX") program of METROLIST, INC., DBA RECOLORADO® Real estate listings held by brokers other than RE/MAX Professionals are marked with the IDX Logo. This information is being provided for the consumers personal, non-commercial use and may not be used for any other purpose. All information subject to change and should be independently verified.

Copyright 2026 METROLIST, INC., DBA RECOLORADO® -- All Rights Reserved 6455 S. Yosemite St., Suite 500 Greenwood Village, CO 80111 USA

Listing information last updated on March 4th, 2026 at 1:48pm MST.