Connect

1749 N Williams Street 2, Denver, CO – $799,000

  • 3 Beds
  • 4 Baths
  • 1,825 Sqft
  • .04 Acres
  • 3 Beds
  • 4 Baths
  • 1,825 Sqft
  • .04 Acres

New Search X

1749 N Williams Street 2

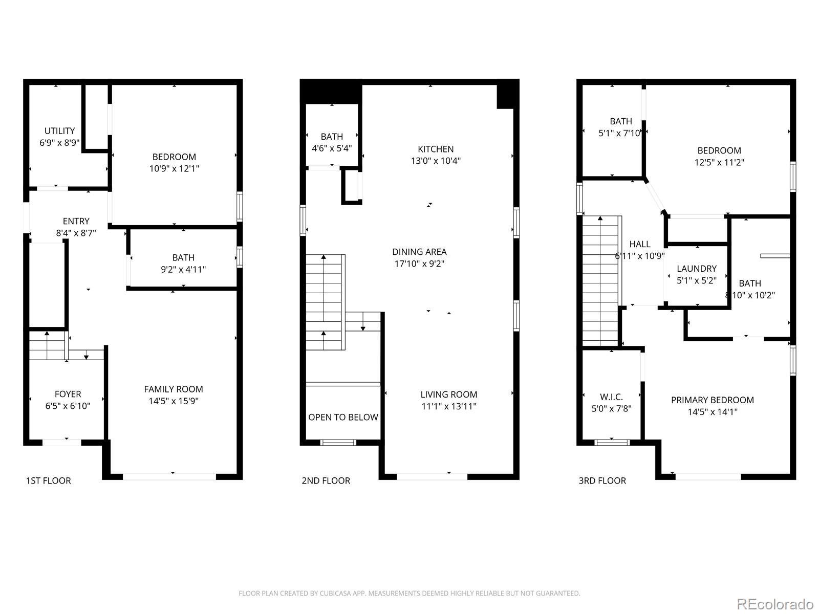
BUILDER LIMITED RELEASE PRICING | BEST VALUE IN UPTOWN. Builder is offering a limited release price on this new constructed home to establish early sales momentum. This pricing reflects unit position within the development and project launch strategy — not condition or quality. Experience brand-new city living in this thoughtfully designed 3-bedroom, 3.5-bath half-duplex offering exceptional value in Uptown Denver. This rear-position home is intentionally priced as the project’s value entry point, creating a rare opportunity to own new construction at a compelling price compared to nearby resale homes. Designed for efficiency and long-term savings, this home features upgraded energy performance with an impressive HERS rating of 46 — translating to lower utility costs and long-term value. Inside, enjoy high ceilings, contemporary design, and elevated finishes throughout, including designer lighting by Visual Comfort. The open second-level living space is ideal for entertaining, featuring a chef-inspired kitchen with generous storage and prep space flowing seamlessly into the living area and private balcony. The upper level offers a true primary retreat with spa-inspired bath and custom walk-in closet, plus an additional en-suite bedroom perfect for guests or family. The lower level includes a third bedroom and full bath adjacent to a bonus family or media room — ideal for a home office, gym, or guest suite. Step outside to your private fenced patio — a perfect extension of the lower-level living space for relaxing or entertaining. Enjoy immediate access to Denver’s top dining, shopping, and transit while benefiting from brand-new construction, modern energy efficiency, and low maintenance ownership. ***Taxes are estimated and will be determined prior to closing ***Party Wall agreement with no HOA*** Each home has own parcel ***Agent Owner Developer

Listing Office: Parkview Real Estate

Essential Information

  • MLS® #8397189
  • Price$799,000
  • Bedrooms3
  • Bathrooms4.00
  • Full Baths3
  • Half Baths1
  • Square Footage1,825
  • Acres0.04
  • Year Built2025
  • TypeResidential
  • Sub-TypeSingle Family Residence
  • StatusActive

Style

Traditional, Urban Contemporary

Community Information

  • Address1749 N Williams Street 2
  • SubdivisionMcCulloughs
  • CityDenver
  • CountyDenver
  • StateCO
  • Zip Code80218

Amenities

  • Parking Spaces1
  • # of Garages1

Utilities

Cable Available, Electricity Connected, Internet Access (Wired), Natural Gas Available, Phone Available

Parking

Concrete, Electric Vehicle Charging Station(s), Exterior Access Door, Lighted, Smart Garage Door

Interior

  • HeatingElectric, Forced Air
  • CoolingCentral Air
  • StoriesThree Or More

Interior Features

Entrance Foyer, High Ceilings, High Speed Internet, In-Law Floorplan, Open Floorplan, Pantry, Primary Suite, Quartz Counters, Radon Mitigation System, Smart Thermostat, Smoke Free, Solid Surface Counters, Walk-In Closet(s), Wired for Data

Appliances

Dishwasher, Disposal, Electric Water Heater, Freezer, Microwave, Range, Range Hood, Refrigerator, Sump Pump

Exterior

  • RoofShingle, Membrane

Exterior Features

Balcony, Lighting, Rain Gutters

Lot Description

Landscaped, Level, Near Public Transit, Sprinklers In Front

Windows

Double Pane Windows, Egress Windows

Foundation

Concrete Perimeter, Structural

School Information

  • DistrictDenver 1
  • ElementaryWhittier E-8
  • MiddleWhittier E-8
  • HighEast

Additional Information

  • Date ListedFebruary 3rd, 2026
  • ZoningG-RO-3

Listing Details

  • Parkview Real Estate
Please provide a valid email address.

Terms and Conditions: The content relating to real estate for sale in this Web site comes in part from the Internet Data eXchange ("IDX") program of METROLIST, INC., DBA RECOLORADO® Real estate listings held by brokers other than RE/MAX Professionals are marked with the IDX Logo. This information is being provided for the consumers personal, non-commercial use and may not be used for any other purpose. All information subject to change and should be independently verified.

Copyright 2026 METROLIST, INC., DBA RECOLORADO® -- All Rights Reserved 6455 S. Yosemite St., Suite 500 Greenwood Village, CO 80111 USA

Listing information last updated on February 26th, 2026 at 5:03am MST.